St Pauls Road, Staines-upon-Thames, TW18
By Gregory Brown
£ 465,000
Reviews
3 out of 5 stars
Gregory Brown says ..
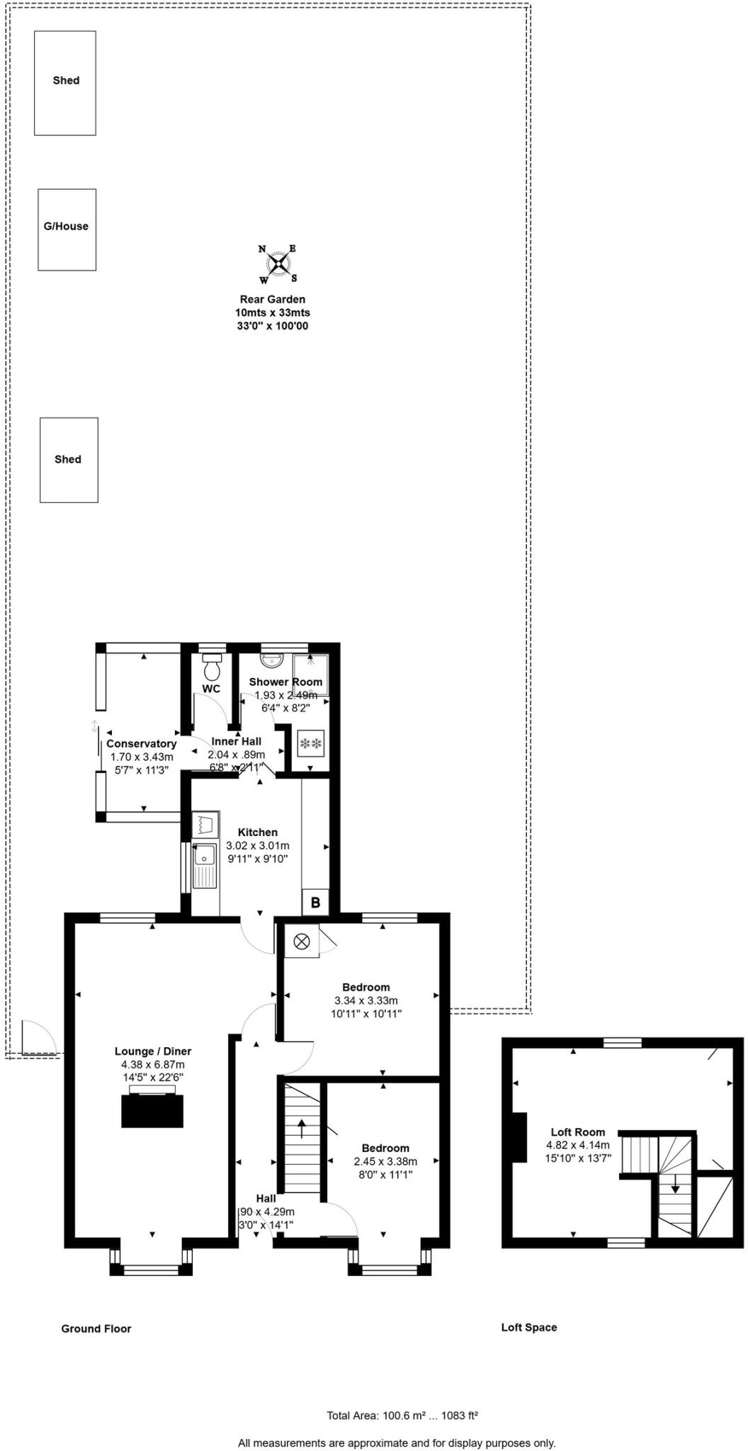
OFFERING GREAT SCOPE FOR IMPROVEMENT & EXTENSION (S.T.R.P.P) IS THIS SPACIOUS DETACHED BUNGALOW SITUATED ON AN EXTENSIVE PLOT IDEALLY POSITIONED FOR EASY ACCESS TO BOTH STAINES & EGHAM TOWN CENTRES, LOCAL SHOPS & SCHOOLS AND PROVIDING EASY ACCESS TO MOTORWAY NETWORKS. The property ...
Property Oracle says ..
This property is located on St Pauls Road in Staines-upon-Thames, an area with a mix of housing types. The property itself is a bungalow that requires modernisation. While the location benefits from proximity to local schools like The Magna Carta School (0.17km) and Hythe Primary School (0.32km), both rated as ‘Good’ by Ofsted, and is also relatively close to Staines train station (1.95km), the property itself is in need of significant updating. The kitchen and bathroom are dated, and the interior decor is outdated. The garden, however, is a positive aspect, offering a good-sized outdoor space. Given the average house price in the area is £502,366 and the average price per sqft is £338, the listing price of £465,000 for a 1,082.85 sqft property seems reasonable considering its condition, though a higher price might be achieved post-modernisation. Nearby comparable properties show a range of prices, indicating some variability in the market.
Therefore, we give this property 6 / 10. *Disclaimer: This is our option and does constitute a recommendation or financial advice. Do your own research. *
- Price
- 6
- Condition
- 4
- Location
- 7
- Land
- 7
- Bedrooms
- 2
- Bathrooms
- 1
- Sqft (est)
- 1,082.85
The heatmap indicates the level of crime in the area. The color of the heatmap indicates the crime severity and recency.
Metrics Year-on-Year
- Average area value
- 497,268.00 £Increased by 4.06 %
- Est sale value
- 545,756.40 £Increased by 51.81 %
- Average area rental value
- 2,350.00 £/moIncreased by 60.19 %
- Est letting value
- 2,165.70 £/moIncreased by 100.00 %
- Est rental Yield
- 5.67 %Increased by 54.08 %
- Crime Rate
- 6.00 %Unchanged by 0.00 %
Agent Activity
Gregory Brown marked this listing as sold.
Gregory Brown created the listing.
Nearby Schools
| Name | Type | Ofsted | Distance |
|---|---|---|---|
| The Magna Carta School | Academy Converter | Good | 0.17 KM |
| The Haven Sure Start Children'S Centre | Children's Centre | 0.19 KM | |
| Hythe Primary School | Community School | Good | 0.32 KM |
| Thorpe Lea Primary School | Community School | Good | 0.63 KM |
| Our Lady Of The Rosary Rc Primary School | Voluntary Aided School | Good | 1.82 KM |
Images
Nearby Streets
| Name | Average Price | Average Sqft | Distance |
|---|---|---|---|
| Cumberland Street | £ 0 | 0 | 0.00 KM |
| Staines Bridge | £ 230,000 | 0 | 0.00 KM |
| Knights Close | £ 0 | 0 | 0.00 KM |
| Rochester Road | £ 225,000 | 0 | 0.00 KM |
| Wendover Place | £ 0 | 0 | 0.00 KM |
Nearby Transport
| Name | NLC | TLC | Distance |
|---|---|---|---|
| Staines | 5670 | SNS | 1.95 KM |
| Egham | 5669 | EGH | 2.89 KM |
| Wraysbury | 5673 | WRY | 4.01 KM |
| Chertsey | 5553 | CHY | 4.79 KM |
| Virginia Water | 5676 | VIR | 5.50 KM |
Nearby Listings
| Address | Price | Type | Score | Distance |
|---|---|---|---|---|
| St Pauls Road, Staines-upon-Thames, TW18 | £ 465,000 | BUY | 6 / 10 | 0.00 KM |
| Meadow Gardens, Staines-upon-Thames, Surrey, TW18 | £ 525,000 | BUY | 6 / 10 | 0.07 KM |
| Meadow Gardens, Staines-upon-Thames | £ 750,000 | BUY | 6 / 10 | 0.10 KM |
| Meadow Gardens, Derbyshire, DE75 | £ 270,000 | BUY | 7 / 10 | 0.11 KM |
| Goring Road, Staines-upon-Thames, Surrey, TW18 | £ 850,000 | BUY | 7 / 10 | 0.11 KM |
Nearby Properties
| Address | Price | Distance |
|---|---|---|
| 21 St Pauls Road | £ 560,000 | 0.02 KM |
| 23 St Pauls Road | £ 450,000 | 0.02 KM |
| 27 St Pauls Road | £ 380,000 | 0.02 KM |
| 25 St Pauls Road | £ 200,000 | 0.02 KM |
| 14 Meadow Gardens | £ 278,000 | 0.07 KM |