Milland Road, Hailsham
Stevens & Carter logo

Milland Road, Hailsham

By Stevens & Carter

£ 325,000

Reviews

3 out of 5 stars

Stevens & Carter says ..

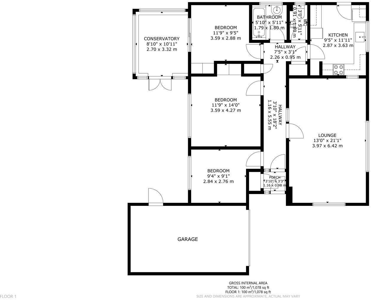
3D Tour I No Onward Chain I In Need Of Some Cosmetic Updating I Detached Bungalow I Three Bedrooms I Front and Rear Garden I Off Road Parking I Garage I Viewing Advised I Stevens and Carter are delighted to bring to the market this detached bungalow situated in this prime position. Altho...

Property Oracle says ..

This is a three-bedroom detached bungalow located on Milland Road, Hailsham Central. The property is conveniently located near several schools and is within a reasonable distance of Polegate train station. The property requires renovation, particularly in the kitchen, bathroom, and conservatory. The property includes a garden and a detached garage. Considering the location and the need for renovation, the asking price of £325,000 seems reasonable.

Therefore, we give this property 6 / 10. *Disclaimer: This is our option and does constitute a recommendation or financial advice. Do your own research. *

Price
7
Condition
4
Location
7
Land
6
Bedrooms
3
Bathrooms
1

The heatmap indicates the level of crime in the area. The color of the heatmap indicates the crime severity and recency.

Metrics Year-on-Year

Average area value
1,332,494.00 £
Increased by 19.68 %
from 1,113,335.00 £
Average area rental value
1,800.00 £/mo
Decreased by 54.11 %
from 3,922.00 £/mo
Est rental Yield
1.62 %
Decreased by 61.70 %
from 4.23 %
Crime Rate
1.00 %
Unchanged by 0.00 %
from 1.00 %

Agent Activity

  • Stevens & Carter created the listing.

Nearby Schools

NameTypeOfstedDistance
Grovelands Community Primary SchoolFoundation SchoolGood0.62 KM
Hawkes Farm AcademyAcademy Sponsor LedGood0.63 KM
Hailsham Community CollegeAcademy ConverterGood0.72 KM
The Ropemakers' AcademyFree Schools Special1.05 KM
White House AcademyAcademy Sponsor LedGood1.41 KM

Images

IMG_6050.JPG IMG_6039.JPG IMG_6008.JPG IMG_6012.JPG IMG_6030.JPG IMG_6020.JPG IMG_5994.JPG IMG_6003.JPG IMG_6027.JPG IMG_6042.JPG IMG_6036.JPG IMG_6023.JPG IMG_6045.JPG IMG_5997.JPG IMG_6000.JPG IMG_6011.JPG IMG_6015.JPG IMG_6048.JPG IMG_6024.JPG IMG_6033.JPG IMG_6046.JPG

Nearby Streets

NameAverage PriceAverage SqftDistance
Carriers Path £ 000.00 KM
Hawkstown Gardens £ 373,75000.00 KM
A295 £ 000.00 KM
Firecrest Avenue £ 000.00 KM
Redpoll Road £ 400,00000.00 KM

Nearby Transport

NameNLCTLCDistance
Polegate5455PLG5.68 KM
Hampden Park (Sussex)5450HMD8.90 KM

Nearby Listings

AddressPriceTypeScoreDistance
Milland Road, Hailsham £ 325,000BUY6 / 100.00 KM
Milland Road, Hailsham £ 385,000BUY7 / 100.05 KM
Milland Road, Hailsham, BN27 £ 450,000BUY7 / 100.09 KM
38a Hawks Road, Hailsham £ 475,000BUY7 / 100.09 KM
Blossom Walk, Hailsham £ 325,000BUY7 / 100.16 KM

Nearby Properties

AddressPriceDistance
74 Milland Road £ 317,0000.05 KM
71 Milland Road £ 285,0000.05 KM
78 Milland Road £ 190,0000.05 KM
65 Milland Road £ 308,0000.05 KM
64 Milland Road £ 250,0000.05 KM