Turpie & Co says ..
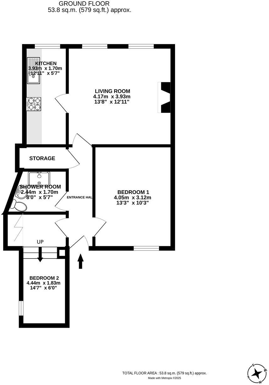
**Some images have been virtually staged for marketing purposes only** Just a short walk from Linlithgow Loch, the historic Palace, and the train station, this two-bedroom first floor apartment enjoys a prime position on Linlithgow High Street within the designated Conservation Area.< (cont.)
Property Oracle says ..
Therefore, we give this property 7 / 10. *Disclaimer: This is our option and does constitute a recommendation or financial advice. Do your own research. *
- Price
- 9
- Condition
- 8
- Location
- 8
- Land
- 3
- Bedrooms
- 2
- Bathrooms
- 1
- Sqft (est)
- 579.10
The heatmap indicates the level of crime in the area. The color of the heatmap indicates the crime severity and recency.
Metrics Year-on-Year
- Average area value
- 712,500.00 £Increased by 63.65 %
- Est sale value
- 206,159.60 £Increased by 11.95 %
- Average area rental value
- 1,330.00 £/moIncreased by 17.28 %
- Est letting value
- 0.00 £/mo
- Est rental Yield
- 2.24 %Decreased by 28.43 %
- Crime Rate
- 0.00 %
from 435,374.00 £
from 184,153.80 £
from 1,134.00 £/mo
from 0.00 £/mo
from 3.13 %
from 0.00 %
Agent Activity
Turpie & Co created the listing.
Images
Nearby Streets
| Name | Average Price | Average Sqft | Distance |
|---|---|---|---|
| Whitten Lane | £ 0 | 0 | 0.00 KM |
| Union Road | £ 0 | 0 | 0.00 KM |
| Dog Well Wynd | £ 0 | 0 | 0.00 KM |
| St Ninian's Road | £ 199,000 | 0 | 0.00 KM |
| West Port | £ 80,000 | 0 | 0.00 KM |
Nearby Transport
| Name | NLC | TLC | Distance |
|---|---|---|---|
| Linlithgow | 9438 | LIN | 1.15 KM |
| Bathgate | 9311 | BHG | 9.34 KM |
Nearby Listings
| Address | Price | Type | Score | Distance |
|---|---|---|---|---|
| High Street, Linlithgow | £ 150,000 | BUY | 7 / 10 | 0.00 KM |
| High Street, Linlithgow, EH49 | £ 158,000 | BUY | 5 / 10 | 0.11 KM |
| Barkhill Road, Linlithgow, EH49 | £ 155,000 | BUY | 6 / 10 | 0.18 KM |
| Lochside Mews, Linlithgow, EH49 | £ 340,000 | BUY | 7 / 10 | 0.20 KM |
| 1a Lochside Mews, Linlithgow, EH49 7EE | £ 265,000 | BUY | 6 / 10 | 0.21 KM |