Hunters says ..
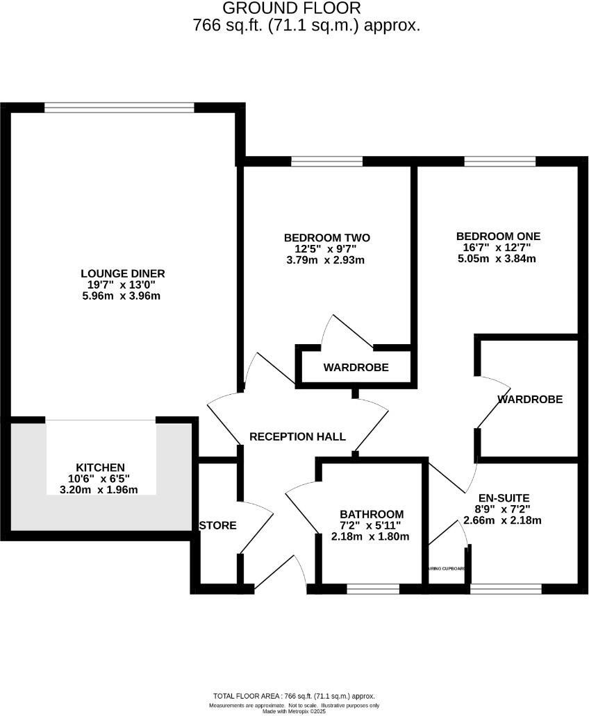
Hunters Redditch are pleased to present this well-presented, third-floor, two-bedroom apartment, located a short walk from Redditch town centre. Offered with no upward chain, it is an ideal purchase for first-time buyers or investors. Accessed via a secure entry system into the communal ...
Property Oracle says ..
This is a two-bedroom apartment located on Mount Pleasant in Redditch. The property is in generally good condition, with a modern kitchen and bathroom. It benefits from its proximity to local amenities, schools, and transportation links, including Redditch train station. The asking price of £130,000 appears reasonable, especially when compared to the average price per square foot in the area. While the apartment itself seems well-maintained, it offers limited land or garden space. The property is located centrally.
Therefore, we give this property 6 / 10. *Disclaimer: This is our option and does constitute a recommendation or financial advice. Do your own research. *
- Price
- 8
- Condition
- 7
- Location
- 7
- Land
- 3
- Bedrooms
- 2
- Bathrooms
- 1
- Sqft (est)
- 759.98
The heatmap indicates the level of crime in the area. The color of the heatmap indicates the crime severity and recency.
Metrics Year-on-Year
- Average area value
- 487,124.00 £Increased by 94.35 %
- Est sale value
- 468,147.68 £Increased by 112.41 %
- Average area rental value
- 1,220.00 £/moIncreased by 6.46 %
- Est letting value
- 759.98 £/moUnchanged by 0.00 %
- Est rental Yield
- 3.01 %Decreased by 45.17 %
- Crime Rate
- 24.00 %Unchanged by 0.00 %
Agent Activity
Hunters created the listing.
Nearby Schools
| Name | Type | Ofsted | Distance |
|---|---|---|---|
| St Luke'S Cofe First School | Voluntary Controlled School | Requires improvement | 0.65 KM |
| Heart Of Worcestershire College | Further Education | Good | 0.89 KM |
| Holyoakes Field First School | Academy Converter | 1.00 KM | |
| Trinity High School And Sixth Form Centre | Academy Converter | Good | 1.19 KM |
| Birchensale Middle School | Academy Converter | 1.43 KM |
Images
Nearby Streets
| Name | Average Price | Average Sqft | Distance |
|---|---|---|---|
| Lilac Close | £ 0 | 0 | 0.00 KM |
| South Street | £ 0 | 0 | 0.00 KM |
| Station Way | £ 0 | 0 | 0.00 KM |
| Greenfields | £ 210,000 | 0 | 0.00 KM |
| Market Walk | £ 0 | 0 | 0.00 KM |
Nearby Transport
| Name | NLC | TLC | Distance |
|---|---|---|---|
| Redditch | 1208 | RDC | 0.64 KM |
| Alvechurch | 1198 | ALV | 5.71 KM |
| Barnt Green | 1096 | BTG | 8.64 KM |
Nearby Listings
| Address | Price | Type | Score | Distance |
|---|---|---|---|---|
| Mount Pleasant, Redditch | £ 130,000 | BUY | 6 / 10 | 0.00 KM |
| Mount Pleasant, Redditch, Worcestershire, B97 | £ 190,000 | BUY | 6 / 10 | 0.01 KM |
| Mount Pleasant, Redditch, Worcestershire, B97 | £ 140,000 | BUY | 7 / 10 | 0.01 KM |
| Mount Pleasant, Redditch | £ 325,000 | BUY | 7 / 10 | 0.06 KM |
| Parsons Road, Redditch | £ 235,000 | BUY | 7 / 10 | 0.08 KM |
Nearby Properties
| Address | Price | Distance |
|---|---|---|
| 67 Mount Pleasant | £ 208,000 | 0.01 KM |
| 18 Old Crest Avenue | £ 139,950 | 0.08 KM |
| 5 Old Crest Avenue | £ 143,000 | 0.08 KM |
| 20 Old Crest Avenue | £ 135,000 | 0.08 KM |
| 11 Old Crest Avenue | £ 168,000 | 0.08 KM |