Cross Street, Caerleon, Newport. NP18 1AF
DA

Cross Street, Caerleon, Newport. NP18 1AF

By Davis & Sons

£ 400,000

Davis & Sons says ..

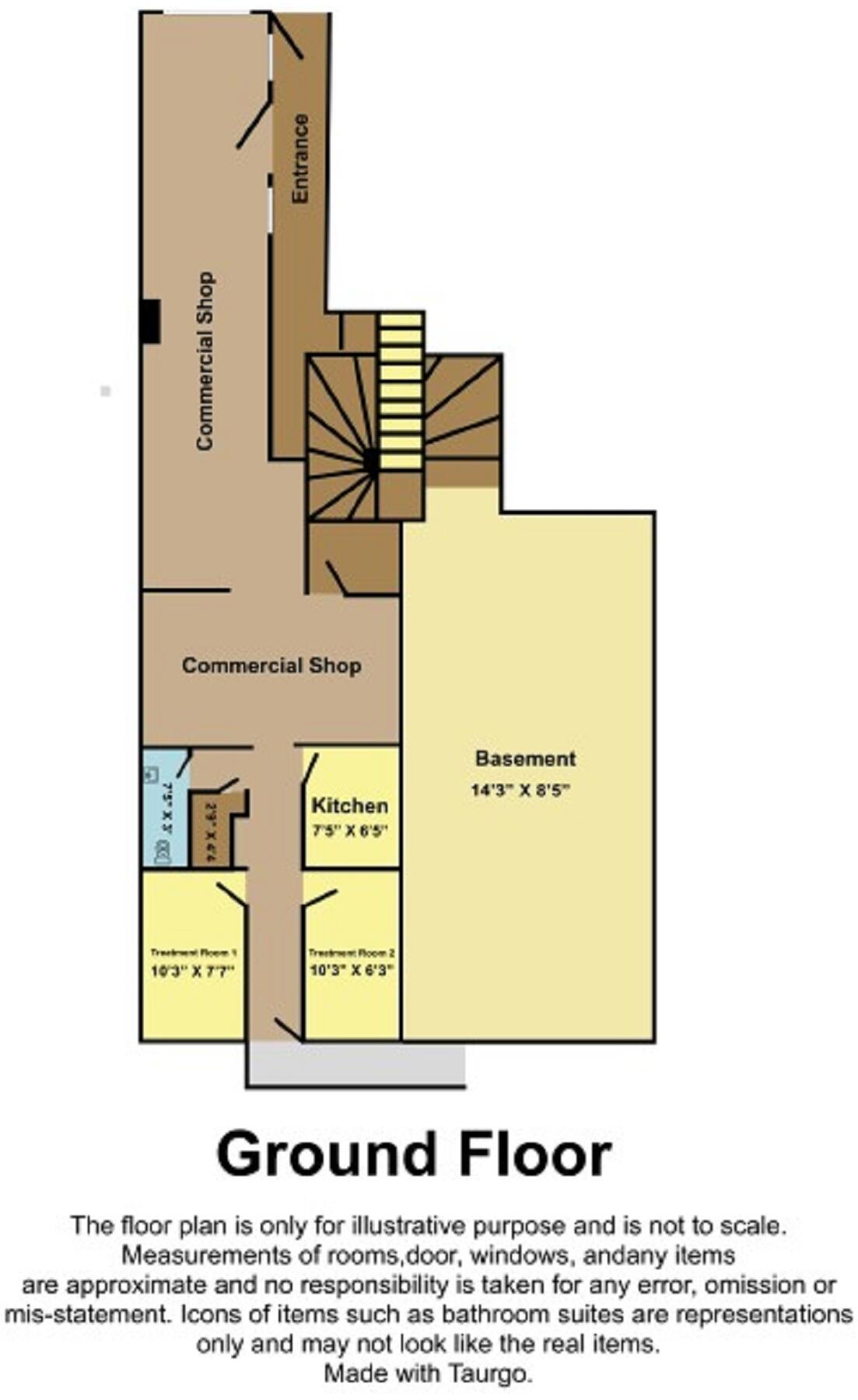
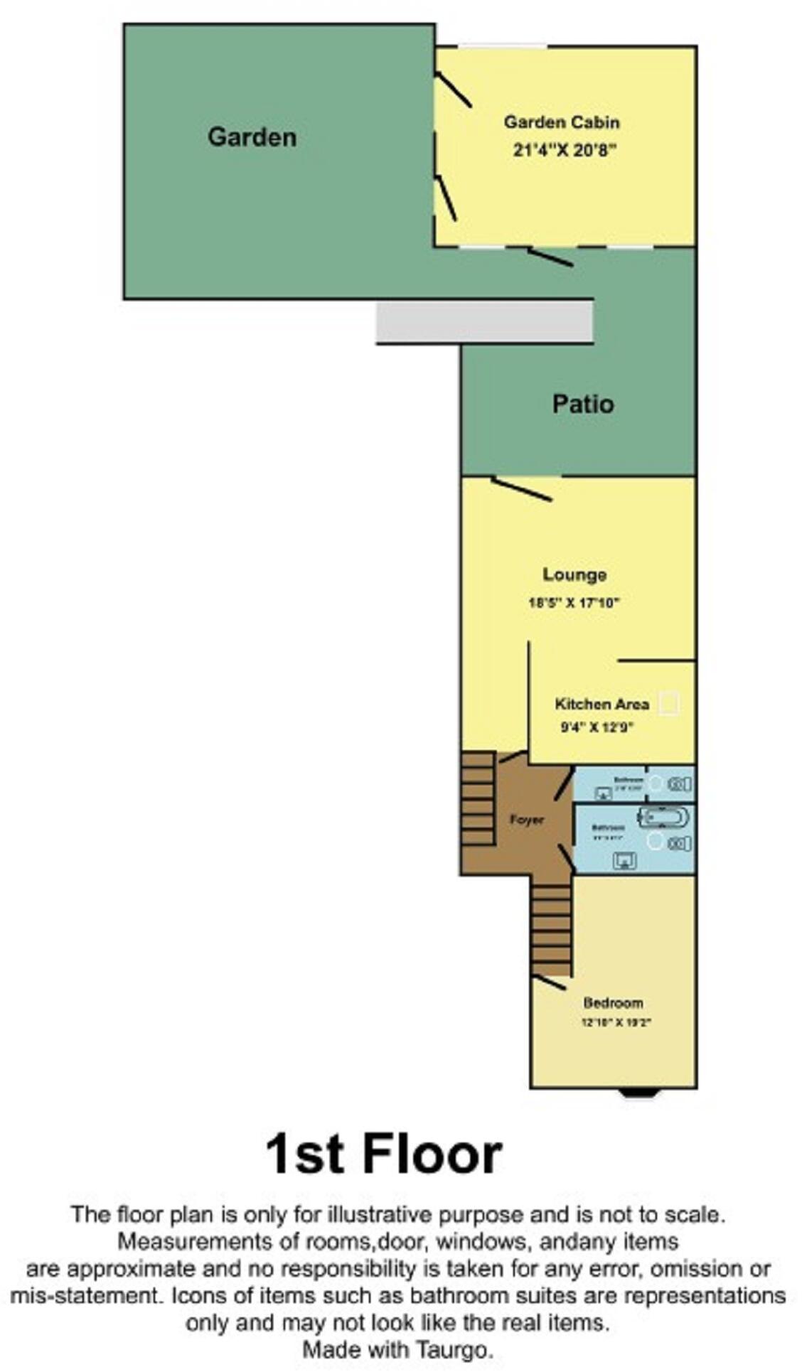
NO CHAIN. OPEN TO OFFERS.Built Approx 1800. Many properties in the village have strong connections to its Roman & medieval past. Fabulous mixed use commercial property. A1/A2 shop with a 3 bedroom maisonette style family home above, also benefiting with a private rear garden. The property ...

Bedrooms
3
Bathrooms
1

The heatmap indicates the level of crime in the area. The color of the heatmap indicates the crime severity and recency.

Metrics Year-on-Year

Average area value
360,833.00 £
Decreased by 13.57 %
from 417,504.00 £
Average area rental value
1,178.00 £/mo
Increased by 8.17 %
from 1,089.00 £/mo
Est rental Yield
3.92 %
Increased by 25.24 %
from 3.13 %
Crime Rate
33.00 %
Unchanged by 0.00 %
from 33.00 %

Agent Activity

  • Davis & Sons created the listing.

Nearby Schools

NameTypeOfstedDistance
Caerleon Comprehensive SchoolWelsh Establishment0.61 KM
Ysgol Gymraeg Nant GwenlliWelsh Establishment1.74 KM
Alway PrimaryWelsh Establishment2.68 KM
Somerton Primary SchoolWelsh Establishment2.68 KM
St Gabriel'S R.C. Primary SchoolWelsh Establishment2.70 KM

Images

Not Specified Main Image Not Specified Not Specified Not Specified Not Specified Not Specified Not Specified Not Specified Not Specified Not Specified Not Specified Not Specified Not Specified Not Specified Not Specified Not Specified Not Specified Not Specified Not Specified Not Specified Not Specified Not Specified Not Specified Not Specified Not Specified Not Specified Not Specified Not Specified Not Specified Not Specified Not Specified Not Specified Not Specified Not Specified

Nearby Streets

NameAverage PriceAverage SqftDistance
Carlton Terrace £ 425,00000.00 KM
Castle Street £ 500,00000.00 KM
Norman Terrace £ 000.00 KM
Llew-a-Dor Cwrt £ 400,00000.00 KM
Cold Bath Road £ 375,00000.00 KM

Nearby Transport

NameNLCTLCDistance
Newport (South Wales)3674NWP5.71 KM
Cwmbran3738CWM8.65 KM
Pye Corner1663PYE9.88 KM

Nearby Listings

AddressPriceTypeScoreDistance
Cross Street, Caerleon, Newport. NP18 1AF £ 400,000BUYUnknown0.00 KM
Cross Street, Newport £ 375,000BUY7 / 100.00 KM
Cross Street, Caerleon, Newport. NP18 1AF £ 400,000BUYUnknown0.00 KM
High Street, Caerleon, NP18 £ 240,000BUYUnknown0.07 KM
High Street, Caerleon. NP18 1AE £ 395,000BUY7 / 100.10 KM

Nearby Properties

AddressPriceDistance
2 Boddington Terrace £ 157,0000.07 KM
4 Boddington Terrace £ 180,0000.07 KM
3 Boddington Terrace £ 171,0000.07 KM
1 Boddington Terrace £ 88,0000.07 KM
33 High Street £ 95,0000.08 KM