Aston-on-Carrant, Tewkesbury, GL20
By Engall Castle
£ 585,000
Reviews
3 out of 5 stars
Engall Castle says ..
Beautifully presented, this detached village home is ready to move straight into
Property Oracle says ..
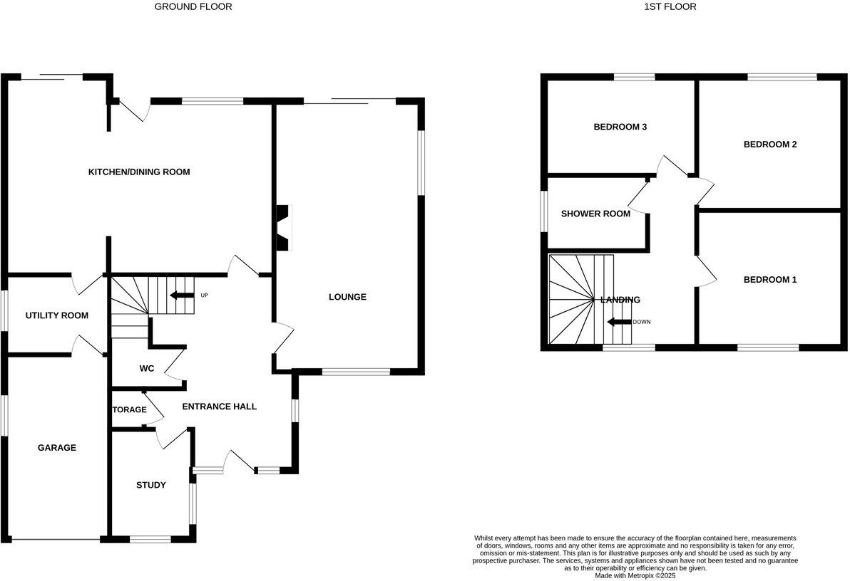
The property is a 3 bedroom, 2 bathroom detached house located in Aston-on-Carrant, Tewkesbury, Gloucestershire. It is listed at £585,000 and has 985 sqft of living space. The plot size is not specified. The property appears to be in good condition based on the provided images. The kitchen and bathrooms have been recently updated, and the property is well-maintained. There is evidence of a modern extension to the rear of the property. The location is in a quiet residential area, with good access to local amenities. There are several primary schools within a 3-4km radius, and Ashchurch for Tewkesbury train station is approximately 3.3km away. The property benefits from a good-sized garden, which is visible in the provided images. Considering the average price per sqft in the area is £343, and the property is listed at £585,000, the price seems reasonable, although slightly below average for the area. However, this may be due to the smaller size of the property compared to the average property size in the area. Nearby comparable properties range from £229,950 to £1,385,000, indicating a wide range of property values in the immediate vicinity. The lack of sqft information for these comparable properties makes a direct comparison difficult. Based on the information provided, the property appears to offer good value for money in a desirable location.
Therefore, we give this property 7 / 10. *Disclaimer: This is our option and does constitute a recommendation or financial advice. Do your own research. *
- Price
- 7
- Condition
- 8
- Location
- 7
- Land
- 7
- Bedrooms
- 3
- Bathrooms
- 2
- Sqft (est)
- 985.00
The heatmap indicates the level of crime in the area. The color of the heatmap indicates the crime severity and recency.
Metrics Year-on-Year
- Average area value
- 474,052.00 £Decreased by 7.42 %
- Est sale value
- 570,315.00 £Increased by 48.84 %
- Average area rental value
- 950.00 £/moDecreased by 46.24 %
- Est letting value
- 985.00 £/moUnchanged by 0.00 %
- Est rental Yield
- 2.40 %Decreased by 42.03 %
- Crime Rate
- 0.00 %
Agent Activity
Engall Castle created the listing.
Nearby Schools
| Name | Type | Ofsted | Distance |
|---|---|---|---|
| Ashchurch Primary School | Community School | Good | 3.07 KM |
| Overbury Cofe First School | Voluntary Controlled School | Good | 3.42 KM |
| Northway Infant School | Community School | Outstanding | 3.48 KM |
| Northway And Ashchurch Children'S Centre | Children's Centre | 3.48 KM | |
| Carrant Brook Junior School | Foundation School | Requires improvement | 3.59 KM |
Images
Nearby Streets
| Name | Average Price | Average Sqft | Distance |
|---|---|---|---|
| Penarth | £ 583,333 | 0 | 0.00 KM |
| Brook House Barns | £ 0 | 0 | 0.00 KM |
| B4079 | £ 0 | 0 | 0.00 KM |
| Aston Fields Lane | £ 0 | 0 | 0.00 KM |
| Cameron Drive | £ 0 | 0 | 0.00 KM |
Nearby Transport
| Name | NLC | TLC | Distance |
|---|---|---|---|
| Ashchurch For Tewkesbury | 4700 | ASC | 3.30 KM |
Nearby Listings
| Address | Price | Type | Score | Distance |
|---|---|---|---|---|
| Aston-on-Carrant, Tewkesbury, GL20 | £ 570,000 | BUY | 7 / 10 | 0.00 KM |
| Aston-on-Carrant, Tewkesbury, Gloucestershire | £ 675,000 | BUY | 8 / 10 | 0.07 KM |
| Aston-on-Carrant, Tewkesbury, Gloucestershire, GL20 | £ 1,295,000 | BUY | 8 / 10 | 0.09 KM |
| Aston-on-Carrant, Tewkesbury, Gloucestershire | £ 550,000 | BUY | 6 / 10 | 0.09 KM |
| Aston On Carrant, Tewkesbury, Gloucestershire | £ 1,075,000 | BUY | 7 / 10 | 0.22 KM |
Nearby Properties
| Address | Price | Distance |
|---|---|---|
| 2 Upper Oaks Court | £ 650,000 | 0.27 KM |
| 3 Upper Oaks Court | £ 523,000 | 0.28 KM |
| 19 Thirlebrook Cottages | £ 229,950 | 1.13 KM |
| 5 Thirlebrook Cottages | £ 365,000 | 1.14 KM |
| 7 Thirlebrook Cottages | £ 190,000 | 1.15 KM |