HO
Duston Road, Northampton, NN5
By Howkins & Harrison LLP
£ 395,000
Reviews
3 out of 5 stars
Howkins & Harrison LLP says ..
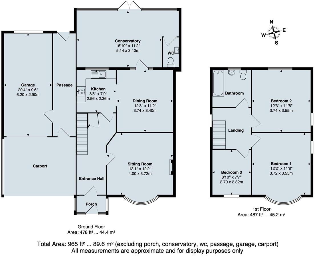
Built in 1937 by renowned local builders of their time, Messrs Chowns, this detached property occupies a substantial plot and whilst the property has been improved over the years it still gives the opportunity to extend if required.
Property Oracle says ..
Therefore, we give this property 6 / 10. *Disclaimer: This is our option and does constitute a recommendation or financial advice. Do your own research. *
- Price
- 6
- Condition
- 7
- Location
- 7
- Land
- 7
- Bedrooms
- 3
- Bathrooms
- 1
- Sqft (est)
- 1,096.30
The heatmap indicates the level of crime in the area. The color of the heatmap indicates the crime severity and recency.
Metrics Year-on-Year
- Average area value
- 304,999.00 £Increased by 7.59 %
- Est sale value
- 355,201.20 £Increased by 6.23 %
- Average area rental value
- 1,275.00 £/moIncreased by 11.06 %
- Est letting value
- 1,096.30 £/moUnchanged by 0.00 %
- Est rental Yield
- 5.02 %Increased by 3.29 %
- Crime Rate
- 3.00 %Unchanged by 0.00 %
from 283,484.00 £
from 334,371.50 £
from 1,148.00 £/mo
from 1,096.30 £/mo
from 4.86 %
from 3.00 %
Agent Activity
Howkins & Harrison LLP created the listing.
Nearby Schools
| Name | Type | Ofsted | Distance |
|---|---|---|---|
| Lyncrest Primary School | Community School | Good | 0.37 KM |
| Chiltern Primary School | Community School | Requires improvement | 0.68 KM |
| Millway Primary School | Community School | Good | 0.91 KM |
| Hopping Hill Primary School | Community School | Good | 1.34 KM |
| Duston Library And Children'S Centre | Children's Centre | 1.44 KM |
Images
Nearby Streets
| Name | Average Price | Average Sqft | Distance |
|---|---|---|---|
| Westbury Close | £ 400,000 | 0 | 0.00 KM |
| Wedmore Close | £ 0 | 0 | 0.00 KM |
| Chiltern Close | £ 275,000 | 0 | 0.00 KM |
| Stour Road | £ 0 | 0 | 0.00 KM |
| Belvedere Close | £ 0 | 0 | 0.00 KM |
Nearby Transport
| Name | NLC | TLC | Distance |
|---|---|---|---|
| Northampton | 1069 | NMP | 2.81 KM |
Nearby Listings
| Address | Price | Type | Score | Distance |
|---|---|---|---|---|
| Duston Road, Northampton, NN5 | £ 395,000 | BUY | 6 / 10 | 0.00 KM |
| Duston Road, Duston, NN5 5AR | £ 270,000 | BUY | 7 / 10 | 0.06 KM |
| Duston Road, Duston, Northampton NN5 | £ 190,000 | BUY | 6 / 10 | 0.12 KM |
| Duston Road, Northampton, Northamptonshire, NN5 | £ 190,000 | BUY | 6 / 10 | 0.14 KM |
| Ellesmere Avenue, Duston, NN5 5NW | £ 230,000 | BUY | 6 / 10 | 0.14 KM |
Nearby Properties
| Address | Price | Distance |
|---|---|---|
| 71 Duston Road | £ 172,500 | 0.13 KM |
| 11 Duston Road | £ 158,500 | 0.13 KM |
| 41 Duston Road | £ 440,000 | 0.13 KM |
| 57 Duston Road | £ 195,000 | 0.13 KM |
| 67 Duston Road | £ 50,000 | 0.13 KM |