Lancaster Gardens, Plymouth, Devon
By Bradleys
£ 90,000
Reviews
2 out of 5 stars
Bradleys says ..
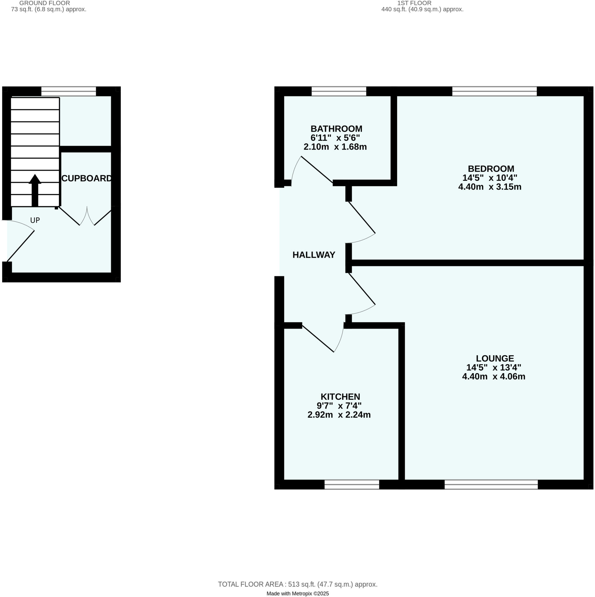
NO CHAIN!! NO CHAIN!! NO CHAIN!! Self-contained 1-bed flat with private garden and no chain. Offers great potential and would benefit from some TLC. Features a living area, kitchen, double bedroom, and bathroom. Ideal for first-time buyers or investors, close to local shops, transport...
Property Oracle says ..
This is a one-bedroom apartment in Lancaster Gardens, Plymouth. It’s listed for £90,000 and has a square footage of 513. The property is located in Budshead, with Whitleigh Community Primary School nearby. While the property is in reasonable condition, it would benefit from modernization. The apartment has a small garden or yard area. Given the location, condition, and size, the asking price seems reasonable. The average price in the area is around £231,250, and the average price per square foot is £283, making this property a potentially good value for money.
Therefore, we give this property 5 / 10. *Disclaimer: This is our option and does constitute a recommendation or financial advice. Do your own research. *
- Price
- 8
- Condition
- 5
- Location
- 6
- Land
- 4
- Bedrooms
- 1
- Bathrooms
- 1
- Sqft (est)
- 513.00
The heatmap indicates the level of crime in the area. The color of the heatmap indicates the crime severity and recency.
Metrics Year-on-Year
- Average area value
- 231,250.00 £Decreased by 12.40 %
- Est sale value
- 145,179.00 £Decreased by 10.44 %
- Average area rental value
- 1,650.00 £/moIncreased by 107.29 %
- Est letting value
- 1,026.00 £/mo
- Est rental Yield
- 8.56 %Increased by 136.46 %
- Crime Rate
- 6.00 %Unchanged by 0.00 %
Agent Activity
Bradleys created the listing.
Nearby Schools
| Name | Type | Ofsted | Distance |
|---|---|---|---|
| Whitleigh Community Primary School | Foundation School | Good | 0.14 KM |
| Woodlands School | Foundation Special School | Good | 0.54 KM |
| Whitleigh Children'S Centre | Children's Centre | 0.98 KM | |
| Woodfield Primary School | Academy Converter | Good | 1.05 KM |
| St Boniface'S Rc College | Academy Sponsor Led | Requires improvement | 1.43 KM |
Images
Nearby Streets
| Name | Average Price | Average Sqft | Distance |
|---|---|---|---|
| Silver Hill Close | £ 0 | 0 | 0.00 KM |
| Rothesay Gardens | £ 180,000 | 0 | 0.00 KM |
| Looseleigh Lane | £ 425,000 | 0 | 0.00 KM |
| Trowbridge Close | £ 105,000 | 0 | 0.00 KM |
| Frobisher Approach | £ 0 | 0 | 0.00 KM |
Nearby Transport
| Name | NLC | TLC | Distance |
|---|---|---|---|
| Plymouth | 3580 | PLY | 4.34 KM |
| Keyham | 3571 | KEY | 5.15 KM |
| St Budeaux Ferry Road | 3590 | SBF | 5.27 KM |
| St Budeaux Victoria Road | 3592 | SBV | 5.31 KM |
| Devonport | 3579 | DPT | 5.33 KM |
Nearby Listings
| Address | Price | Type | Score | Distance |
|---|---|---|---|---|
| Lancaster Gardens, Plymouth, Devon | £ 90,000 | BUY | 5 / 10 | 0.00 KM |
| Lancaster Gardens, Plymouth, Devon, PL5 | £ 60,250 | BUY | 6 / 10 | 0.01 KM |
| Whitleigh, Plymouth | £ 240,000 | BUY | 7 / 10 | 0.16 KM |
| Lancaster Gardens, Plymouth, Devon | £ 240,000 | BUY | 7 / 10 | 0.22 KM |
| Squirrel Close, Plymouth | £ 280,000 | BUY | 6 / 10 | 0.24 KM |
Nearby Properties
| Address | Price | Distance |
|---|---|---|
| 80 Lancaster Gardens | £ 80,000 | 0.01 KM |
| 84 Lancaster Gardens | £ 185,250 | 0.01 KM |
| 61 Lancaster Gardens | £ 124,000 | 0.01 KM |
| 75 Lancaster Gardens | £ 145,500 | 0.01 KM |
| 71 Lancaster Gardens | £ 136,500 | 0.01 KM |