Tatlers says ..
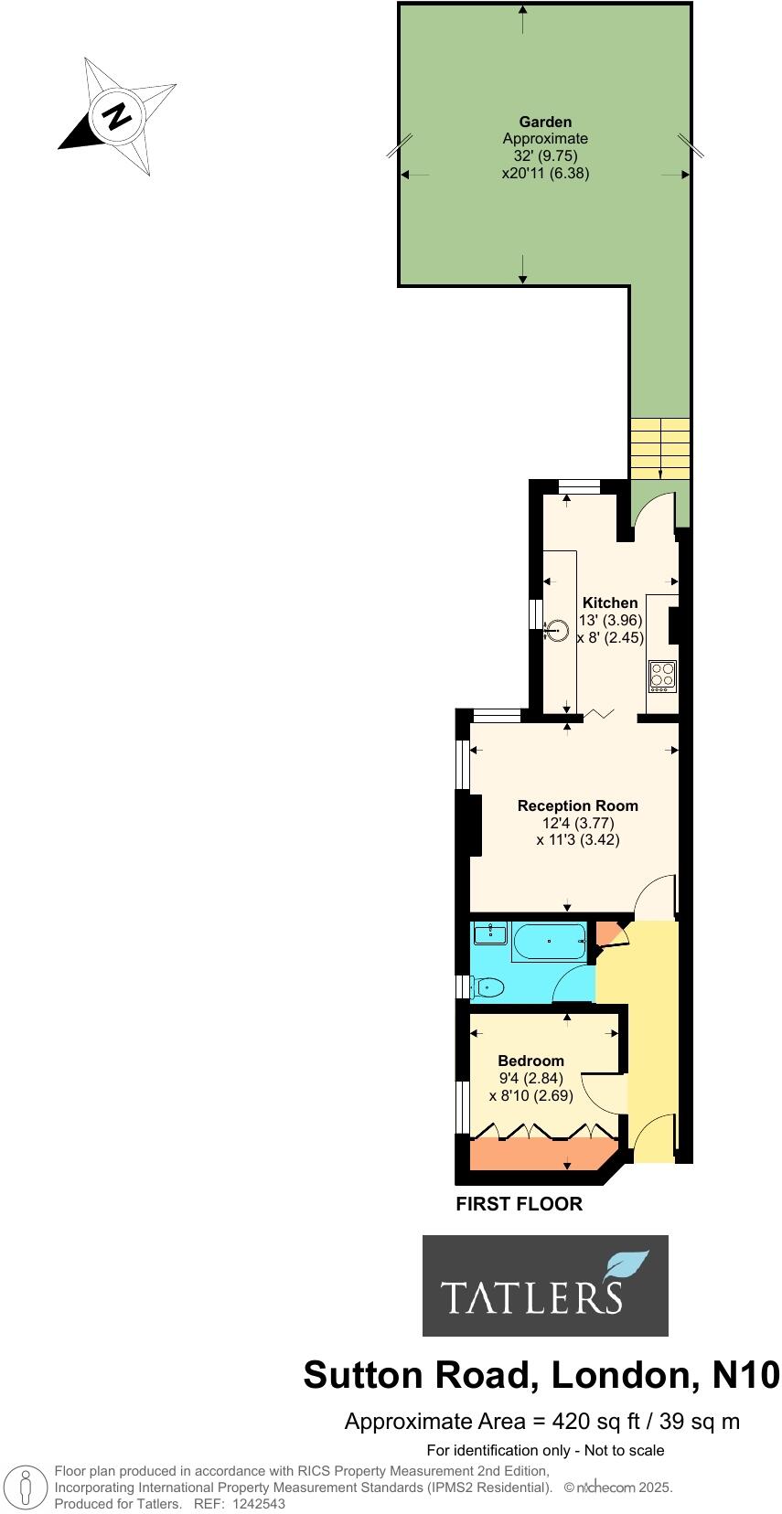
Set on the first of this mid terrace Edwardian residence is this well presented one bedroom conversion which benefits from direct access from its own section of a rear garden. Situated within a short distance from Muswell Hill Broadway and its large selection of boutique shops, restaurants and e...
Property Oracle says ..
This one-bedroom property located on Sutton Road in Friern Barnet, London, presents a good opportunity for first-time buyers or investors. The property is situated in a residential area with convenient access to transport links and well-regarded schools. The kitchen has been recently updated, giving a modern feel to this part of the property, while the remaining areas appear to be well-maintained. The inclusion of a small garden is a valuable asset, especially in a densely populated area like London. The property is a terraced house, which is a common style in the area. While the property is not excessively large, the size is appropriate for a single person or a couple. The price point appears reasonable, keeping in mind the property’s size, condition, and location within the London housing market. Potential buyers should factor in the possibility of future maintenance or renovation costs. Further investigation into the property’s specifics, including the age and condition of the boiler and other essential systems, is recommended before making a purchase decision. The lack of information regarding the square footage of nearby properties makes a precise comparison challenging, but the provided information suggests a competitive listing price.
Therefore, we give this property 6 / 10. *Disclaimer: This is our option and does constitute a recommendation or financial advice. Do your own research. *
- Price
- 7
- Condition
- 6
- Location
- 7
- Land
- 4
- Bedrooms
- 1
- Bathrooms
- 1
- Sqft (est)
- 419.79
The heatmap indicates the level of crime in the area. The color of the heatmap indicates the crime severity and recency.
Metrics Year-on-Year
- Average area value
- 285,999.00 £Decreased by 14.79 %
- Est sale value
- 135,172.38 £Increased by 20.15 %
- Average area rental value
- 1,094.00 £/moDecreased by 34.69 %
- Est letting value
- 419.79 £/moUnchanged by 0.00 %
- Est rental Yield
- 4.59 %Decreased by 23.37 %
- Crime Rate
- 5.00 %Unchanged by 0.00 %
Agent Activity
Tatlers created the listing.
Nearby Schools
| Name | Type | Ofsted | Distance |
|---|---|---|---|
| Coldfall Primary School | Community School | Outstanding | 0.41 KM |
| Eden Primary | Free Schools | Good | 0.42 KM |
| Coppetts Wood Primary School And Children'S Centre | Children's Centre | 0.44 KM | |
| Coppetts Wood Primary School | Community School | Outstanding | 0.44 KM |
| Blanche Nevile School | Community Special School | Good | 0.49 KM |
Images
Nearby Streets
| Name | Average Price | Average Sqft | Distance |
|---|---|---|---|
| Sutton Road | £ 0 | 0 | 0.00 KM |
| Wilton Road | £ 256,500 | 0 | 0.00 KM |
| Oakwood Crescent | £ 221,250 | 0 | 0.00 KM |
| Barrenger Road | £ 675,000 | 0 | 0.00 KM |
| Page's Hill | £ 0 | 0 | 0.00 KM |
Nearby Transport
| Name | NLC | TLC | Distance |
|---|---|---|---|
| New Southgate | 6019 | NSG | 1.94 KM |
| Alexandra Palace | 6025 | AAP | 3.46 KM |
| Bowes Park | 6027 | BOP | 3.54 KM |
| Hornsey | 6015 | HRN | 4.58 KM |
| Upper Holloway | 1524 | UHL | 4.61 KM |
Nearby Listings
| Address | Price | Type | Score | Distance |
|---|---|---|---|---|
| Sutton Road, London, N10 | £ 425,000 | BUY | 6 / 10 | 0.00 KM |
| Sutton Road, Muswell Hill, London, N10 | £ 575,000 | BUY | 6 / 10 | 0.04 KM |
| Sutton Road, Muswell HIll N10 | £ 700,000 | BUY | 6 / 10 | 0.04 KM |
| Sutton Road, London | £ 675,000 | BUY | 7 / 10 | 0.04 KM |
| Sutton Road, London | £ 750,000 | BUY | 5 / 10 | 0.05 KM |
Nearby Properties
| Address | Price | Distance |
|---|---|---|
| 71a Sutton Road | £ 800,000 | 0.02 KM |
| 89 Sutton Road | £ 500,000 | 0.02 KM |
| 97 Sutton Road | £ 590,000 | 0.02 KM |
| 65a Sutton Road | £ 730,000 | 0.02 KM |
| 77 Sutton Road | £ 190,000 | 0.02 KM |