Church Lane, Ardingly, RH17
By Hamptons Sales
£ 1,000,000
Reviews
3 out of 5 stars
Hamptons Sales says ..
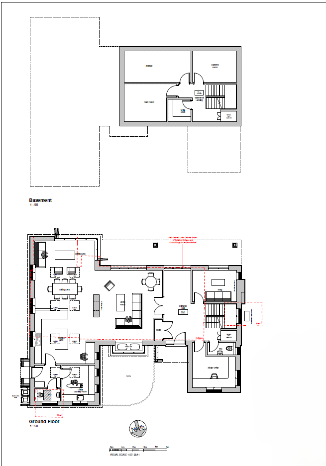
An exceptional plot of approximately 5 acres set in an idyllic setting overlooking Ardingly reservoir with planning permission for a detached four bedroom house
Property Oracle says ..
This is a newly built detached property located in the desirable village of Ardingly. The property benefits from a large plot of land and is conveniently located near schools and transport links. The architectural plans suggest a modern and well-designed home. While the price appears reasonable, a more precise valuation would require knowing the exact square footage of the property.
Therefore, we give this property 7 / 10. *Disclaimer: This is our option and does constitute a recommendation or financial advice. Do your own research. *
- Price
- 6
- Condition
- 9
- Location
- 7
- Land
- 8
- Bedrooms
- 0
- Bathrooms
- 0
The heatmap indicates the level of crime in the area. The color of the heatmap indicates the crime severity and recency.
Metrics Year-on-Year
- Average area value
- 469,167.00 £Decreased by 15.00 %
- Average area rental value
- 4,750.00 £/moIncreased by 210.86 %
- Est rental Yield
- 12.15 %Increased by 265.96 %
- Crime Rate
- 0.00 %
Agent Activity
Hamptons Sales created the listing.
Nearby Schools
| Name | Type | Ofsted | Distance |
|---|---|---|---|
| Ardingly College | Other Independent School | 0.70 KM | |
| St Peter'S Cofe Primary School | Voluntary Controlled School | Good | 1.01 KM |
| Philpots Manor School | Other Independent Special School | Good | 3.65 KM |
| Lindfield Primary Academy | Academy Converter | Outstanding | 4.25 KM |
| Blackthorns Community Primary Academy | Academy Converter | Outstanding | 4.39 KM |
Images
Nearby Transport
| Name | NLC | TLC | Distance |
|---|---|---|---|
| Haywards Heath | 5490 | HHE | 4.82 KM |
| Balcombe | 5492 | BAB | 4.94 KM |
| Wivelsfield | 5341 | WVF | 9.74 KM |
Nearby Listings
| Address | Price | Type | Score | Distance |
|---|---|---|---|---|
| Church Lane, Ardingly, RH17 | £ 1,000,000 | BUY | 7 / 10 | 0.00 KM |
| Church Lane, Ardingly, RH17 | £ 1,900,000 | BUY | 7 / 10 | 0.30 KM |
| Street Lane, Ardingly, RH17 | £ 800,000 | BUY | 8 / 10 | 0.70 KM |
| College Road, Ardingly, Haywards Heath, West Sussex, RH17 | £ 2,250,000 | BUY | 8 / 10 | 0.76 KM |
| Holmans, Ardingly, RH17 | £ 250,000 | BUY | 6 / 10 | 1.14 KM |
Nearby Properties
| Address | Price | Distance |
|---|---|---|
| Kitfield Barn | £ 1,350,000 | 0.27 KM |
| Orchard Glebe | £ 900,000 | 0.28 KM |
| Lichens | £ 168,000 | 0.42 KM |
| Tinkers Croft | £ 1,225,000 | 0.72 KM |
| Nottingham Cottage | £ 547,500 | 0.72 KM |