Lower Downs Road, Wimbledon, London, SW20
By Foxtons
£ 975,000
Reviews
4 out of 5 stars
Foxtons says ..
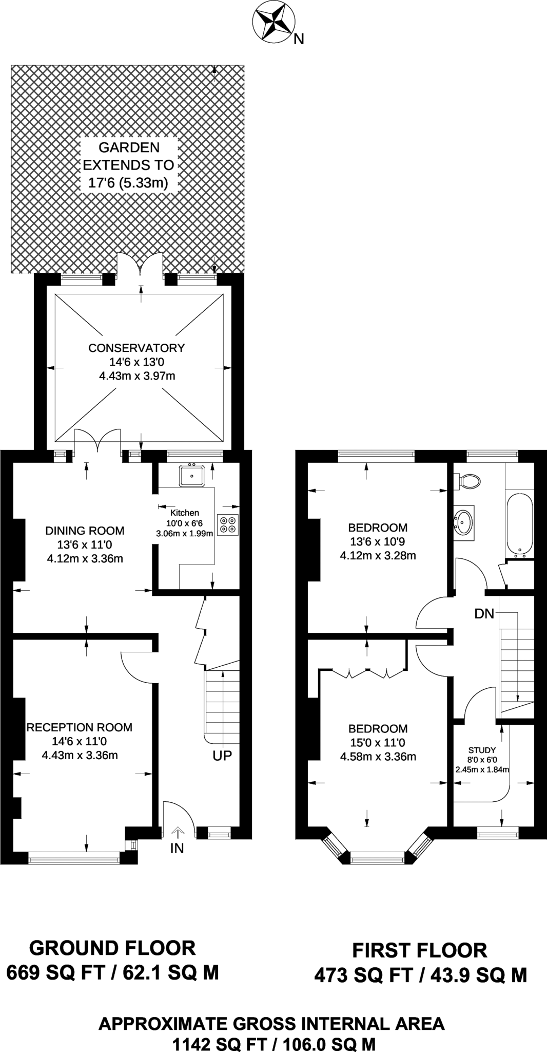
Benefiting from off-street parking and a lovely garden, this beautifully presented three bedroom house offers generous living and entertaining space including a fantastic dining room leading to a wonderful conservatory.
Property Oracle says ..
This property is a 3-bedroom, 1-bathroom terraced house located in Wimbledon, London. The property is in good condition and has been recently updated with a modern kitchen and bathroom. The property also benefits from a conservatory and a garden. The location is excellent, with good transport links and several highly-rated schools nearby. The list price is slightly above the average price per square foot for the area, but this is to be expected given the property’s condition, location, and additional features. Overall, this is a well-presented property in a desirable location that represents good value for money.
Therefore, we give this property 8 / 10. *Disclaimer: This is our option and does constitute a recommendation or financial advice. Do your own research. *
- Price
- 8
- Condition
- 9
- Location
- 10
- Land
- 7
- Bedrooms
- 3
- Bathrooms
- 1
- Sqft (est)
- 669.00
The heatmap indicates the level of crime in the area. The color of the heatmap indicates the crime severity and recency.
Metrics Year-on-Year
- Average area value
- 720,667.00 £Decreased by 14.07 %
- Est sale value
- 551,925.00 £Decreased by 3.06 %
- Average area rental value
- 2,732.00 £/moDecreased by 2.11 %
- Est letting value
- 2,007.00 £/moIncreased by 50.00 %
- Est rental Yield
- 4.55 %Increased by 14.04 %
- Crime Rate
- 4.00 %Unchanged by 0.00 %
Agent Activity
Foxtons created the listing.
Nearby Schools
| Name | Type | Ofsted | Distance |
|---|---|---|---|
| Hall School Wimbledon | Other Independent School | Good | 0.48 KM |
| Ursuline High School Wimbledon | Voluntary Aided School | Outstanding | 0.59 KM |
| Ursuline Preparatory School | Other Independent School | 0.62 KM | |
| The Avenue Children'S Centre | Children's Centre Linked Site | 0.71 KM | |
| Wimbledon Chase Primary School | Community School | Outstanding | 0.71 KM |
Images
Nearby Streets
| Name | Average Price | Average Sqft | Distance |
|---|---|---|---|
| Burlington Gate | £ 0 | 0 | 0.00 KM |
| Merton Mansions | £ 400,000 | 0 | 0.00 KM |
| St Annes Mews | £ 2,500,000 | 0 | 0.00 KM |
| Hillside | £ 2,350,000 | 0 | 0.00 KM |
| Thornton Road | £ 2,019,495 | 0 | 0.00 KM |
Nearby Transport
| Name | NLC | TLC | Distance |
|---|---|---|---|
| Wimbledon Chase | 5612 | WBO | 0.58 KM |
| Raynes Park | 5569 | RAY | 1.26 KM |
| Wimbledon | 5578 | WIM | 1.77 KM |
| South Merton | 5292 | SMO | 1.79 KM |
| Morden South | 5291 | MDS | 2.75 KM |
Nearby Listings
| Address | Price | Type | Score | Distance |
|---|---|---|---|---|
| Lower Downs Road, Wimbledon, London, SW20 | £ 975,000 | BUY | 8 / 10 | 0.00 KM |
| Lower Downs Road, Raynes Park, Wimbledon, SW20 | £ 1,075,000 | BUY | 7 / 10 | 0.04 KM |
| Lower Downs Road, London, SW20 | £ 1,100,000 | BUY | Unknown | 0.06 KM |
| Lower Downs Road, Wimbledon Chase, London, SW20 | £ 775,000 | BUY | 7 / 10 | 0.06 KM |
| Lower Downs Road, Raynes Park | £ 975,000 | BUY | 5 / 10 | 0.06 KM |
Nearby Properties
| Address | Price | Distance |
|---|---|---|
| 70 Lower Downs Road | £ 210,000 | 0.03 KM |
| 34 Lower Downs Road | £ 600,000 | 0.03 KM |
| 54 Lower Downs Road | £ 250,000 | 0.03 KM |
| 44 Lower Downs Road | £ 645,000 | 0.03 KM |
| 36 Lower Downs Road | £ 680,000 | 0.03 KM |