Julie Philpot says ..
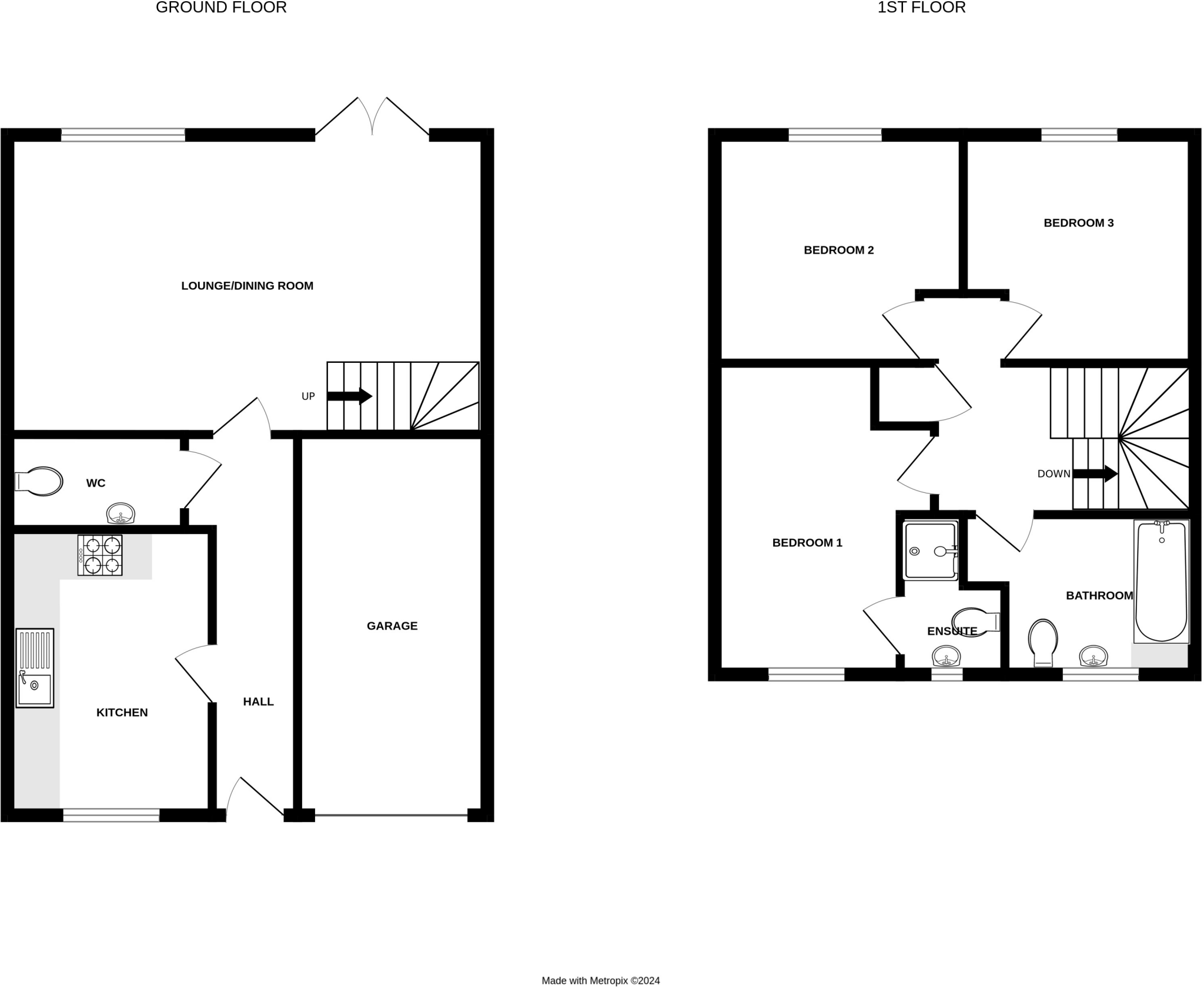
A delightful detached modern home, constructed 7 years ago with the remaining term of the NHBC guarantee available. This super property is in a popular location conveniently located for easy access to Warwick town centre, train station, childrens play area, canal towpaths and commuting. The accom...
Property Oracle says ..
This three-bedroom, two-bathroom property in Warwick, Warwickshire, is presented as a well-maintained modern home. The photos showcase a clean and contemporary interior, with a modern kitchen and bathrooms. The property appears ready to move into and offers a convenient location, with relatively close proximity to Warwick Parkway train station. The inclusion of a garden provides some outdoor space, though its size is not specified and appears relatively modest in the images provided. The list price of £400,000 appears to be in line with other houses in Warwick. However, further research into comparable properties within the immediate vicinity to ascertain square footage and price per square foot would be beneficial in finalizing a precise valuation. The absence of plot size data is a significant omission in the provided details. Overall, the property presents a strong offering for a family or individual looking for a modern home in a convenient location, provided the size of the garden and price per square foot are acceptable to potential buyers.
Therefore, we give this property 6 / 10. *Disclaimer: This is our option and does constitute a recommendation or financial advice. Do your own research. *
- Price
- 7
- Condition
- 8
- Location
- 7
- Land
- 4
- Bedrooms
- 3
- Bathrooms
- 2
- Sqft (est)
- 930.84
The heatmap indicates the level of crime in the area. The color of the heatmap indicates the crime severity and recency.
Metrics Year-on-Year
- Average area value
- 224,983.00 £Decreased by 29.45 %
- Est sale value
- 323,932.32 £Decreased by 12.56 %
- Average area rental value
- 1,137.00 £/moDecreased by 8.67 %
- Est letting value
- 930.84 £/moUnchanged by 0.00 %
- Est rental Yield
- 6.06 %Increased by 29.49 %
- Crime Rate
- 10.00 %Unchanged by 0.00 %
Agent Activity
Julie Philpot marked this listing as sold.
Julie Philpot created the listing.
Nearby Schools
| Name | Type | Ofsted | Distance |
|---|---|---|---|
| Budbrooke Primary School | Academy Sponsor Led | Good | 1.74 KM |
| Woodloes Primary School | Academy Converter | Good | 1.97 KM |
| Evergreen School | Community Special School | Good | 1.97 KM |
| Westgate Primary School | Community School | Good | 2.12 KM |
| Westgate Children'S Centre | Children's Centre | 2.12 KM |
Images
Nearby Streets
| Name | Average Price | Average Sqft | Distance |
|---|---|---|---|
| A46 | £ 0 | 0 | 0.00 KM |
| Albert Court | £ 162,500 | 0 | 0.00 KM |
| Hampton Road | £ 350,000 | 0 | 0.00 KM |
| Tithe Barn Close | £ 395,000 | 0 | 0.00 KM |
| Theatre Street | £ 0 | 0 | 0.00 KM |
Nearby Transport
| Name | NLC | TLC | Distance |
|---|---|---|---|
| Warwick Parkway | 8530 | WRP | 0.69 KM |
| Warwick | 4600 | WRW | 2.91 KM |
| Kenilworth | 7985 | KNW | 6.97 KM |
| Hatton | 4594 | HTN | 7.22 KM |
| Leamington Spa | 4597 | LMS | 7.95 KM |
Nearby Listings
| Address | Price | Type | Score | Distance |
|---|---|---|---|---|
| Henderson Road, Warwick | £ 400,000 | BUY | 6 / 10 | 0.00 KM |
| Henderson Road, Warwick, Warwickshire, CV34 | £ 400,000 | BUY | 7 / 10 | 0.02 KM |
| Amey Way, Warwick | £ 167,500 | BUY | 6 / 10 | 0.05 KM |
| Haywood Road, Warwick, Warwickshire, CV34 | £ 300,000 | BUY | Unknown | 0.10 KM |
| Haywood Road, Warwick, CV34 | £ 485,000 | BUY | 7 / 10 | 0.15 KM |
Nearby Properties
| Address | Price | Distance |
|---|---|---|
| 133 Birmingham Road | £ 345,000 | 0.28 KM |
| 151 Birmingham Road | £ 610,000 | 0.28 KM |
| 143 Birmingham Road | £ 270,000 | 0.28 KM |
| 109 Birmingham Road | £ 325,000 | 0.28 KM |
| 145 Birmingham Road | £ 246,000 | 0.28 KM |