Flying Keys says ..
Former workman's institute transformed into 5-bed terraced house. High ceilings, potential for gym/cinema. Unfinished project, ideal for personal touch. Unique conversion opportunity.
Property Oracle says ..
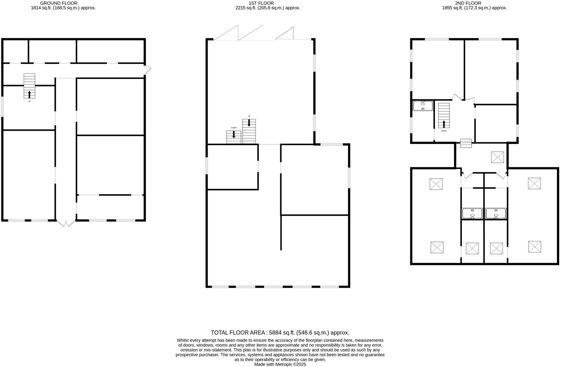
This property is a large terraced house located in Brithdir, Caerphilly, with excellent transport links to the nearby towns and cities. The property is currently undergoing a full renovation, and the images show that the property is in need of significant work. The property is listed at £250,000, which is significantly higher than the average price for the area. However, given the size of the property (5,884 sqft) and the potential for a large family home, the price may be justifiable once the renovation is complete. The property also benefits from a large plot of land.
Therefore, we give this property 5 / 10. *Disclaimer: This is our option and does constitute a recommendation or financial advice. Do your own research. *
- Price
- 4
- Condition
- 2
- Location
- 8
- Land
- 7
- Bedrooms
- 5
- Bathrooms
- 4
- Sqft (est)
- 5,884.00
- Lot (est)
- 5,884.00
The heatmap indicates the level of crime in the area. The color of the heatmap indicates the crime severity and recency.
Metrics Year-on-Year
- Average area value
- 134,626.00 £Decreased by 4.16 %
- Est sale value
- 158,868.00 £Decreased by 59.70 %
- Average area rental value
- 794.00 £/moIncreased by 4.06 %
- Est letting value
- 0.00 £/mo
- Est rental Yield
- 7.08 %Increased by 8.59 %
- Crime Rate
- 7.00 %Unchanged by 0.00 %
Agent Activity
Flying Keys created the listing.
Nearby Schools
| Name | Type | Ofsted | Distance |
|---|---|---|---|
| Whiterose Primary | Welsh Establishment | 1.27 KM | |
| Aberbargoed Primary School | Welsh Establishment | 1.86 KM | |
| St Gwladys Bargoed School | Welsh Establishment | 2.00 KM | |
| Phillipstown Primary School | Welsh Establishment | 2.13 KM | |
| Markham Primary School | Welsh Establishment | 2.40 KM |
Images
Nearby Streets
| Name | Average Price | Average Sqft | Distance |
|---|---|---|---|
| Charles Street | £ 0 | 0 | 0.00 KM |
| A469 | £ 118,000 | 0 | 0.00 KM |
| Lewis Street | £ 179,950 | 0 | 0.00 KM |
| New Road | £ 0 | 0 | 0.00 KM |
| Coedymoeth Road | £ 230,000 | 0 | 0.00 KM |
Nearby Transport
| Name | NLC | TLC | Distance |
|---|---|---|---|
| Brithdir | 4012 | BHD | 0.10 KM |
| Bargoed | 4011 | BGD | 1.92 KM |
| Tir-Phil | 4025 | TIR | 2.37 KM |
| Gilfach Fargoed | 4022 | GFF | 2.81 KM |
| Pengam | 4021 | PGM | 4.34 KM |
Nearby Listings
| Address | Price | Type | Score | Distance |
|---|---|---|---|---|
| Station Terrace, Brithdir, NP24 | £ 250,000 | BUY | 5 / 10 | 0.00 KM |
| Charles Street, Brithdir, New Tredegar | £ 120,000 | BUY | 6 / 10 | 0.09 KM |
| Herbert Street, Brithdir, NP24 | £ 150,000 | BUY | 6 / 10 | 0.19 KM |
| Bristol Terrace, Brithdir, New Tredegar | £ 135,000 | BUY | 6 / 10 | 0.21 KM |
| Bristol Terrace, Brithdir, New Tredegar | £ 110,000 | BUY | 6 / 10 | 0.23 KM |
Nearby Properties
| Address | Price | Distance |
|---|---|---|
| 27 Station Terrace | £ 6,500 | 0.01 KM |
| 19 Station Terrace | £ 111,000 | 0.01 KM |
| 32 Station Terrace | £ 70,000 | 0.01 KM |
| Brithdir Uchaf | £ 290,000 | 0.01 KM |
| 22 Station Terrace | £ 24,100 | 0.01 KM |