Pymm & Co says ..
Guide Price £300,000 - £325,000. Vendor Has Found! Beautifully presented 3 bedroom detached home in a sought after Harleston location. Offering bright, modern interiors, a stylish kitchen, and a private garden, this ready to move in property delivers comfort, charm, and effortless living.
Property Oracle says ..
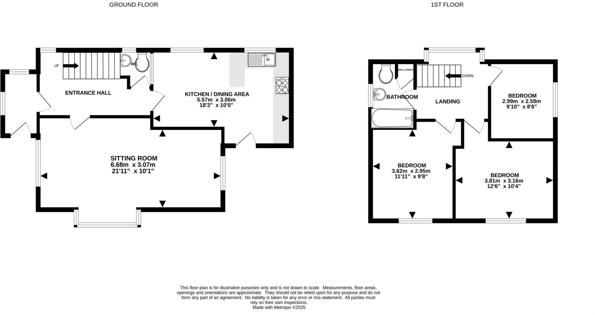
This is a detached property in Harleston, Norfolk, listed for £300,000. It features three bedrooms and one bathroom, with a square footage of 732.05. The property appears to be in good condition, with a modern kitchen and bathroom. It also benefits from a garden and a garage. The location is convenient, with Archbishop Sancroft High School nearby. The price is reasonable compared to the average property price in the area.
Therefore, we give this property 7 / 10. *Disclaimer: This is our option and does constitute a recommendation or financial advice. Do your own research. *
- Price
- 7
- Condition
- 8
- Location
- 7
- Land
- 7
- Bedrooms
- 3
- Bathrooms
- 1
- Sqft (est)
- 732.05
The heatmap indicates the level of crime in the area. The color of the heatmap indicates the crime severity and recency.
Metrics Year-on-Year
- Average area value
- 310,000.00 £Increased by 0.04 %
- Est sale value
- 243,040.60 £Increased by 6.41 %
- Average area rental value
- 750.00 £/moDecreased by 16.67 %
- Est letting value
- 0.00 £/mo
- Est rental Yield
- 2.90 %Decreased by 16.91 %
- Crime Rate
- 0.00 %
Agent Activity
Pymm & Co created the listing.
Nearby Schools
| Name | Type | Ofsted | Distance |
|---|---|---|---|
| Archbishop Sancroft High School (A Church Of England Academy) | Academy Converter | 0.32 KM | |
| Harleston Cofe Primary Academy | Academy Converter | 1.66 KM | |
| Harleston Area Children'S Centre | Children's Centre | 1.79 KM | |
| Mendham Primary School | Academy Converter | Good | 5.08 KM |
| Fressingfield Church Of England Primary School | Academy Converter | 6.26 KM |
Images
Nearby Streets
| Name | Average Price | Average Sqft | Distance |
|---|---|---|---|
| Southgate | £ 0 | 0 | 0.00 KM |
| Pemberton Road | £ 0 | 0 | 0.00 KM |
| Willow Walk | £ 0 | 0 | 0.00 KM |
| Starston Road | £ 0 | 0 | 0.00 KM |
| Croft Close | £ 241,250 | 0 | 0.00 KM |
Nearby Listings
| Address | Price | Type | Score | Distance |
|---|---|---|---|---|
| The Common, Harleston | £ 300,000 | BUY | 7 / 10 | 0.00 KM |
| Gothic Close, Harleston | £ 225,000 | BUY | 5 / 10 | 0.15 KM |
| Needham Road, Harleston | £ 350,000 | BUY | Unknown | 0.23 KM |
| Needham Road, Harleston | £ 500,000 | BUY | Unknown | 0.24 KM |
| Cranes Meadow, Harleston | £ 260,000 | BUY | 6 / 10 | 0.26 KM |
Nearby Properties
| Address | Price | Distance |
|---|---|---|
| 11 The Common | £ 350,000 | 0.09 KM |
| 48 The Common | £ 55,500 | 0.09 KM |
| 50 The Common | £ 267,000 | 0.09 KM |
| 26 The Common | £ 347,500 | 0.09 KM |
| 25 The Common | £ 445,500 | 0.09 KM |