Romans says ..
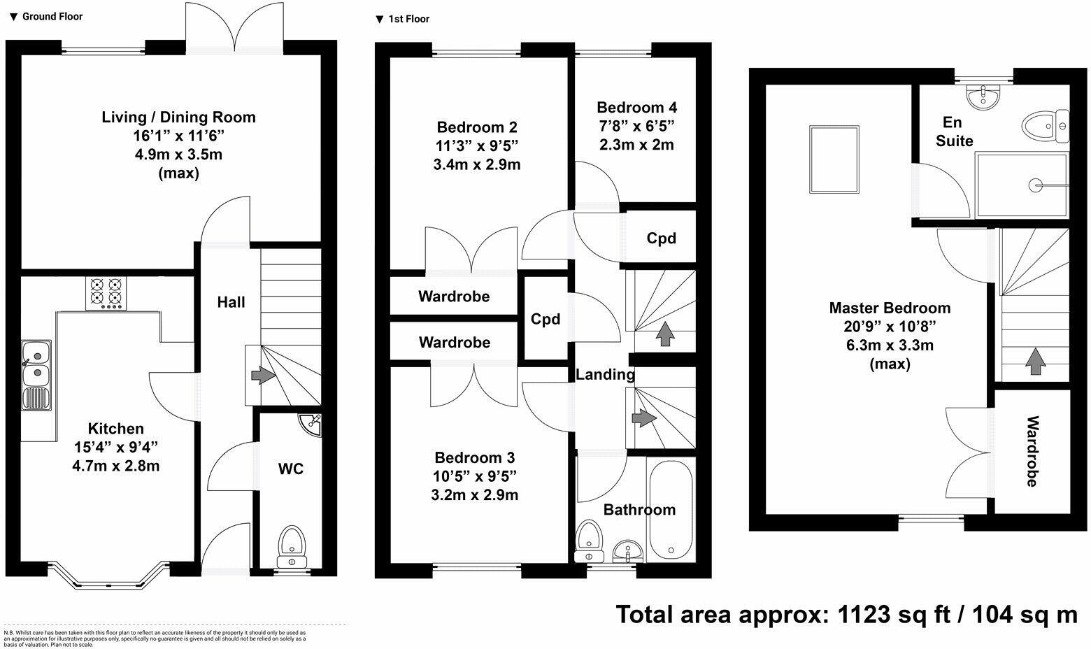
For sale is this attractive 4-bedroom terraced town house, ideally located near local amenities, schools, parks, and situated in a peaceful and quiet neighbourhood. This property is perfect for families, with generous space spread across an inviting reception room, a modern kitchen, and four bedr...
Property Oracle says ..
This four-bedroom terraced house in Priory Vale, Swindon offers a family-friendly living space. Its location is convenient, with nearby schools (Oakhurst Community Primary being particularly notable at a short distance) and relative proximity to Swindon town centre. The interior photos suggest a home that’s lived in, with some signs of wear and tear but nothing majorly detracting. The kitchen shows some age but is functional. The property benefits from a small, enclosed garden, suitable for young children, although it does not offer extensive outdoor space. The price point appears competitive in light of nearby property sales, though further data would help to refine this assessment. Overall, this property presents a functional and reasonably priced option for families seeking a home in a convenient Swindon location. The absence of plot size data in the listing and for comparable properties limits the full analysis of value. The lack of details on some nearby properties also limits the overall analysis. More detailed information about the property’s condition and the condition of the comparable properties in the area, would lead to a more accurate analysis.
Therefore, we give this property 6 / 10. *Disclaimer: This is our option and does constitute a recommendation or financial advice. Do your own research. *
- Price
- 7
- Condition
- 6
- Location
- 7
- Land
- 4
- Bedrooms
- 4
- Bathrooms
- 1
- Sqft (est)
- 1,119.45
The heatmap indicates the level of crime in the area. The color of the heatmap indicates the crime severity and recency.
Metrics Year-on-Year
- Average area value
- 344,439.00 £Increased by 16.60 %
- Est sale value
- 400,763.10 £Increased by 27.86 %
- Average area rental value
- 1,366.00 £/moIncreased by 21.10 %
- Est letting value
- 1,119.45 £/moUnchanged by 0.00 %
- Est rental Yield
- 4.76 %Increased by 3.93 %
- Crime Rate
- 13.00 %Unchanged by 0.00 %
Agent Activity
Romans marked this listing as sold.
Romans created the listing.
Nearby Schools
| Name | Type | Ofsted | Distance |
|---|---|---|---|
| Oakhurst Community Primary School | Community School | Good | 0.45 KM |
| Red Oaks Primary School | Academy Converter | 1.01 KM | |
| Brimble Hill Special School | Academy Special Converter | 1.20 KM | |
| St Francis Cofe Primary School | Voluntary Aided School | Outstanding | 1.29 KM |
| Uplands School | Academy Special Converter | 1.61 KM |
Images
Nearby Streets
| Name | Average Price | Average Sqft | Distance |
|---|---|---|---|
| Beagle Close | £ 0 | 0 | 0.00 KM |
| Stonywell | £ 455,000 | 0 | 0.00 KM |
| Whall Close | £ 0 | 0 | 0.00 KM |
| Bryant Road | £ 0 | 0 | 0.00 KM |
| Copperfields | £ 0 | 0 | 0.00 KM |
Nearby Transport
| Name | NLC | TLC | Distance |
|---|---|---|---|
| Swindon (Wilts) | 3333 | SWI | 6.53 KM |
Nearby Listings
| Address | Price | Type | Score | Distance |
|---|---|---|---|---|
| Oakhurst, Swindon, SN25 | £ 350,000 | BUY | Unknown | 0.03 KM |
| Phoebe Way, Oakhurst, Swindon | £ 210,000 | BUY | 7 / 10 | 0.06 KM |
| Phoebe Way, Swindon, Wiltshire | £ 290,000 | BUY | Unknown | 0.07 KM |
| Phoebe Way, Swindon, Wiltshire, SN25 | £ 375,000 | BUY | Unknown | 0.07 KM |
| Dione Crescent, Oakhurst, Swindon, SN25 | £ 300,000 | BUY | 7 / 10 | 0.11 KM |
Nearby Properties
| Address | Price | Distance |
|---|---|---|
| 7 Hubble View | £ 295,000 | 0.04 KM |
| 1 Hubble View | £ 395,000 | 0.04 KM |
| 4 Hubble View | £ 303,000 | 0.04 KM |
| 5 Hubble View | £ 250,000 | 0.04 KM |
| 2 Hubble View | £ 290,000 | 0.04 KM |