NO
Molyneux Gardens, Netherton, L30
By North Wall
£ 240,000
Reviews
3 out of 5 stars
North Wall says ..
Welcome to Molyneux Gardens, a beautiful development of first time buyer and family homes.
Property Oracle says ..
Therefore, we give this property 7 / 10. *Disclaimer: This is our option and does constitute a recommendation or financial advice. Do your own research. *
- Price
- 8
- Condition
- 9
- Location
- 7
- Land
- 5
- Bedrooms
- 3
- Bathrooms
- 2
- Sqft (est)
- 383.20
The heatmap indicates the level of crime in the area. The color of the heatmap indicates the crime severity and recency.
Metrics Year-on-Year
- Average area value
- 314,167.00 £Increased by 22.99 %
- Est sale value
- 134,886.40 £Increased by 60.73 %
- Average area rental value
- 1,038.00 £/moIncreased by 30.24 %
- Est letting value
- 383.20 £/mo
- Est rental Yield
- 3.96 %Increased by 5.88 %
- Crime Rate
- 14.00 %Unchanged by 0.00 %
from 255,439.00 £
from 83,920.80 £
from 797.00 £/mo
from 0.00 £/mo
from 3.74 %
from 14.00 %
Agent Activity
North Wall marked this listing as sold.
North Wall created the listing.
Nearby Schools
| Name | Type | Ofsted | Distance |
|---|---|---|---|
| The Grange Primary School And Childrens Centre | Children's Centre Linked Site | 0.59 KM | |
| The Grange Primary School | Community School | Good | 0.81 KM |
| Impact | Pupil Referral Unit | Good | 0.96 KM |
| Netherton Moss Primary School | Community School | Good | 1.00 KM |
| Holy Spirit Catholic Primary School | Voluntary Aided School | Special Measures | 1.01 KM |
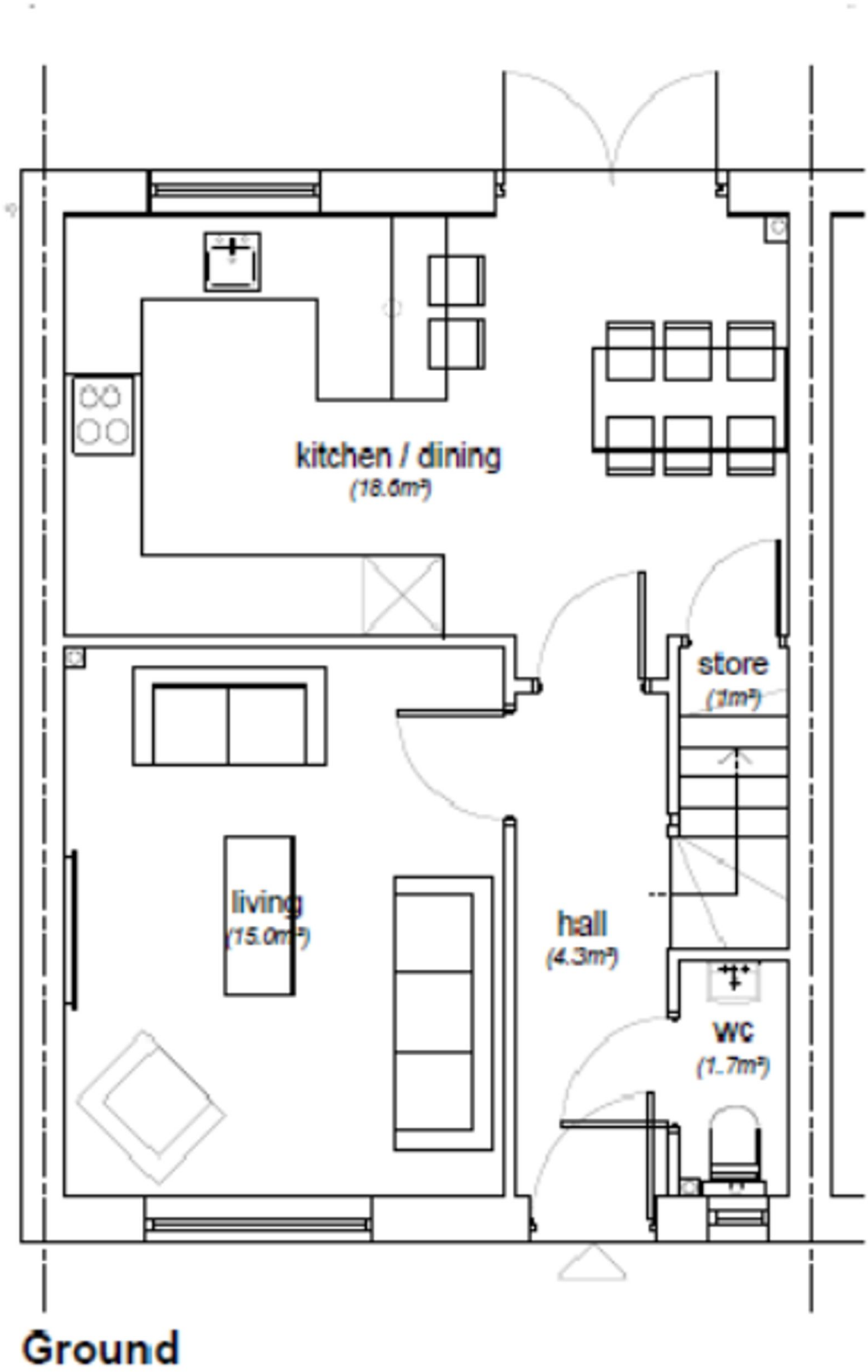
Images
Nearby Streets
| Name | Average Price | Average Sqft | Distance |
|---|---|---|---|
| Buckley Hill Lane | £ 0 | 0 | 0.00 KM |
| Buckley Hill Lane | £ 287,000 | 0 | 0.00 KM |
| Saint Augustine's Way | £ 120,000 | 0 | 0.00 KM |
| Saint Bridget's Grove | £ 0 | 0 | 0.00 KM |
| Great Gate Close | £ 0 | 0 | 0.00 KM |
Nearby Transport
| Name | NLC | TLC | Distance |
|---|---|---|---|
| Old Roan | 2258 | ORN | 3.79 KM |
| Aintree | 2125 | AIN | 3.85 KM |
| Seaforth And Litherland | 2250 | SFL | 3.87 KM |
| Orrell Park | 2247 | OPK | 4.29 KM |
| Bootle New Strand | 2195 | BNW | 4.66 KM |
Nearby Listings
| Address | Price | Type | Score | Distance |
|---|---|---|---|---|
| Molyneux Gardens, Netherton, L30 | £ 345,000 | BUY | Unknown | 0.00 KM |
| Molyneux Gardens, Netherton, L30 | £ 235,000 | BUY | 6 / 10 | 0.00 KM |
| Molyneux Gardens, Netherton, L30 | £ 240,000 | BUY | 6 / 10 | 0.00 KM |
| Molyneux Gardens, Netherton, L30 | £ 240,000 | BUY | 7 / 10 | 0.00 KM |
| Molyneux Gardens, Netherton, L30 | £ 255,000 | BUY | Unknown | 0.00 KM |
Nearby Properties
| Address | Price | Distance |
|---|---|---|
| 8 Harrocks Close | £ 60,000 | 0.14 KM |
| 9 Harrocks Close | £ 110,000 | 0.14 KM |
| 10 Harrocks Close | £ 26,399 | 0.14 KM |
| 44 Red Lomes | £ 93,950 | 0.18 KM |
| 42 Red Lomes | £ 89,000 | 0.18 KM |