Lancaster Road, Basingstoke, Hampshire, RG21
By Bridges Estate Agents
£ 425,000
Reviews
3 out of 5 stars
Bridges Estate Agents says ..
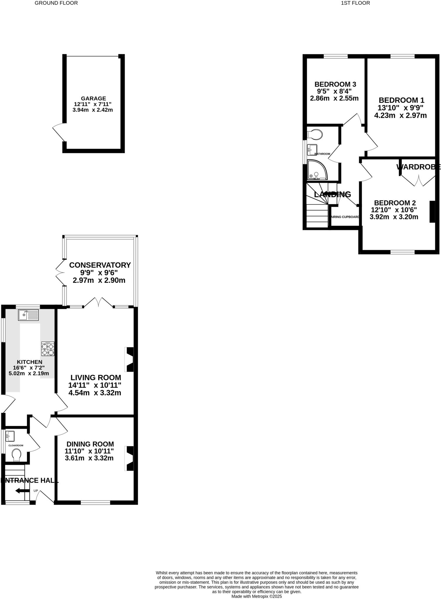
Located within walking distance of the town centre, this well-maintained three-bedroom family home is tucked away in a peaceful cul-de-sac. Offering both convenience and potential, the property benefits from driveway parking to the front, along with a detached garage at the end of the garden and ...
Property Oracle says ..
This is a 3-bedroom semi-detached house on Lancaster Road, Basingstoke. The property offers a garden, driveway, and is located near schools and transportation. While it requires some modernisation, it presents a good opportunity for buyers looking to add value. The price seems reasonable for the location and size, but potential buyers should factor in renovation costs.
Therefore, we give this property 6 / 10. *Disclaimer: This is our option and does constitute a recommendation or financial advice. Do your own research. *
- Price
- 7
- Condition
- 6
- Location
- 7
- Land
- 7
- Bedrooms
- 3
- Bathrooms
- 2
- Sqft (est)
- 953.79
The heatmap indicates the level of crime in the area. The color of the heatmap indicates the crime severity and recency.
Metrics Year-on-Year
- Average area value
- 306,071.00 £Decreased by 10.61 %
- Est sale value
- 350,040.93 £Increased by 25.26 %
- Average area rental value
- 1,246.00 £/moDecreased by 2.58 %
- Est letting value
- 953.79 £/moUnchanged by 0.00 %
- Est rental Yield
- 4.89 %Increased by 9.15 %
- Crime Rate
- 4.00 %Unchanged by 0.00 %
Agent Activity
Bridges Estate Agents created the listing.
Nearby Schools
| Name | Type | Ofsted | Distance |
|---|---|---|---|
| Oakridge Junior School | Community School | Good | 0.40 KM |
| Oakridge Infant School | Community School | Good | 0.47 KM |
| Maple Ridge School | Community Special School | Good | 0.61 KM |
| The Vyne Community School | Community School | Good | 0.74 KM |
| Basingstoke College Of Technology | Further Education | Good | 0.88 KM |
Images
Nearby Streets
| Name | Average Price | Average Sqft | Distance |
|---|---|---|---|
| Kingfisher Court | £ 185,000 | 0 | 0.00 KM |
| Merton Road | £ 0 | 0 | 0.00 KM |
| Winterthur Way | £ 0 | 0 | 0.00 KM |
| Aldermaston Road Roundabout | £ 0 | 0 | 0.00 KM |
| Station Mall | £ 0 | 0 | 0.00 KM |
Nearby Transport
| Name | NLC | TLC | Distance |
|---|---|---|---|
| Basingstoke | 5520 | BSK | 0.96 KM |
| Bramley (Hampshire) | 5500 | BMY | 7.57 KM |
Nearby Listings
| Address | Price | Type | Score | Distance |
|---|---|---|---|---|
| Lancaster Road, Basingstoke, Hampshire, RG21 | £ 425,000 | BUY | 6 / 10 | 0.00 KM |
| Lancaster Road, Basingstoke, Hampshire, RG21 | £ 500,000 | BUY | 6 / 10 | 0.04 KM |
| Lancaster Road, Basingstoke | £ 325,000 | BUY | 5 / 10 | 0.07 KM |
| Kingsclere Road, Basingstoke, Hampshire | £ 160,000 | BUY | 4 / 10 | 0.08 KM |
| Lancaster Road, Basingstoke, RG21 | £ 550,000 | BUY | 7 / 10 | 0.11 KM |
Nearby Properties
| Address | Price | Distance |
|---|---|---|
| 4 Lancaster Road | £ 212,999 | 0.04 KM |
| 38 Lancaster Road | £ 250,000 | 0.04 KM |
| 2 Lancaster Road | £ 382,500 | 0.04 KM |
| 21 Lancaster Road | £ 266,000 | 0.04 KM |
| 12 Lancaster Road | £ 220,000 | 0.04 KM |