By Design says ..
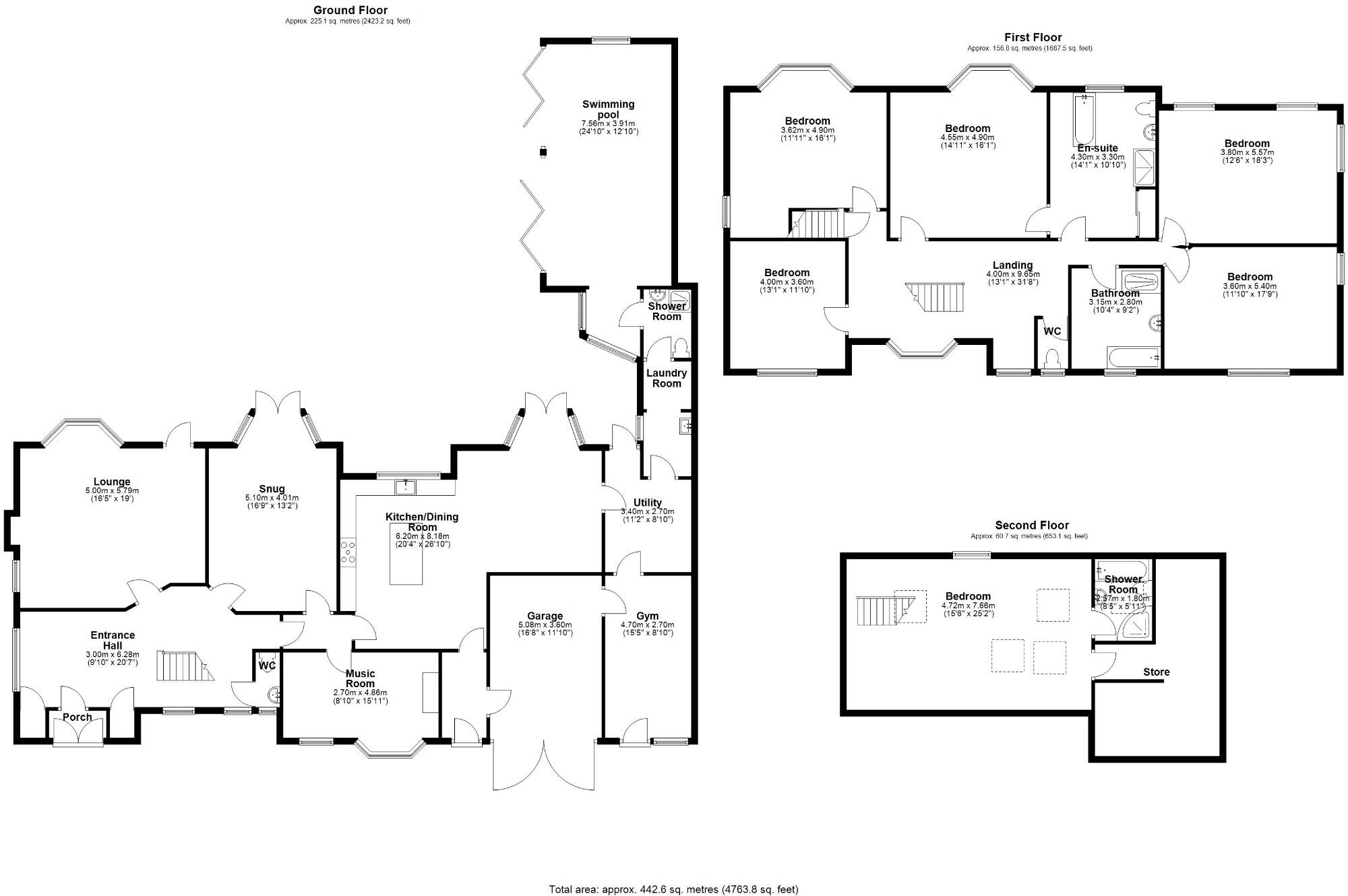
Magnificent 6-bed Edwardian home on exclusive Knighton Rise, Oadby. Beautifully restored and modernised with heated indoor pool, gym, and in-and-out gated driveway. Period charm meets contemporary luxury in a superb family layout.
Property Oracle says ..
The property at Knighton Rise, Oadby, LE2 2RE is a substantial detached house boasting six bedrooms and four bathrooms, offering ample space for a large family.
The location is within Oadby Grange, a desirable area in Leicestershire, with convenient access to local amenities and transportation, including the Leicester train station. Several schools are located nearby, including Leicester High School For Girls.
The property appears to be in good condition, retaining many of its original period features, including large bay windows, fireplaces, and decorative cornicing. The kitchen and bathrooms appear to have been modernised. The property also benefits from a gym and swimming pool.
The property has a generously sized garden, featuring a large lawn, mature trees, and a shed.
Considering the average price per square foot in the area is £605.00, and this property offers 4,196.57 sqft, the asking price of £1,395,000 seems reasonable, especially given the property’s size, features, and location.
Therefore, we give this property 8 / 10. *Disclaimer: This is our option and does constitute a recommendation or financial advice. Do your own research. *
- Price
- 7
- Condition
- 8
- Location
- 9
- Land
- 8
- Bedrooms
- 6
- Bathrooms
- 4
- Sqft (est)
- 4,196.57
The heatmap indicates the level of crime in the area. The color of the heatmap indicates the crime severity and recency.
Metrics Year-on-Year
- Average area value
- 413,725.00 £Decreased by 24.83 %
- Est sale value
- 2,538,924.85 £Increased by 87.31 %
- Average area rental value
- 642.00 £/moDecreased by 62.06 %
- Est letting value
- 0.00 £/mo
- Est rental Yield
- 1.86 %Decreased by 49.59 %
- Crime Rate
- 1.00 %Unchanged by 0.00 %
Agent Activity
By Design created the listing.
Nearby Schools
| Name | Type | Ofsted | Distance |
|---|---|---|---|
| Leicester High School For Girls | Other Independent School | 0.37 KM | |
| Leicester Islamic Academy | Other Independent School | Good | 1.19 KM |
| Leicester Preparatory School | Other Independent School | 1.31 KM | |
| Land Of Learning Primary School | Other Independent School | Good | 1.34 KM |
| Evington Valley Primary School | Community School | Good | 1.42 KM |
Images
Nearby Streets
| Name | Average Price | Average Sqft | Distance |
|---|---|---|---|
| Knighton Grange Road | £ 129,950 | 0 | 0.00 KM |
| St. David's Crescent | £ 0 | 0 | 0.00 KM |
| Stoughton Avenue | £ 0 | 0 | 0.00 KM |
| Francis Walk | £ 0 | 0 | 0.00 KM |
| Aber Walk | £ 475,000 | 0 | 0.00 KM |
Nearby Transport
| Name | NLC | TLC | Distance |
|---|---|---|---|
| Leicester | 1947 | LEI | 3.66 KM |
| South Wigston | 1949 | SWS | 5.24 KM |
| Syston | 1900 | SYS | 9.23 KM |
Nearby Listings
| Address | Price | Type | Score | Distance |
|---|---|---|---|---|
| Knighton Rise, Oadby, LE2 | £ 1,395,000 | BUY | 8 / 10 | 0.00 KM |
| Westminster Road, Stoneygate, LE2 | £ 795,000 | BUY | Unknown | 0.11 KM |
| Dovedale Road, Stoneygate, Leicester | £ 495,000 | BUY | 8 / 10 | 0.13 KM |
| Dovedale Road, Stoneygate, LE2 | £ 450,000 | BUY | 6 / 10 | 0.16 KM |
| Knighton Rise, Oadby, Leicester | £ 1,300,000 | BUY | 8 / 10 | 0.17 KM |
Nearby Properties
| Address | Price | Distance |
|---|---|---|
| 5 Barrington Road | £ 550,000 | 0.07 KM |
| 2 Barrington Road | £ 502,500 | 0.07 KM |
| 18 Barrington Road | £ 555,000 | 0.09 KM |
| 5 Knighton Grange Road | £ 1,150,000 | 0.16 KM |
| 7 Knighton Grange Road | £ 660,000 | 0.16 KM |