St. Michaels Court, Slough, Berkshire
By Romans
£ 395,000
Reviews
3 out of 5 stars
Romans says ..
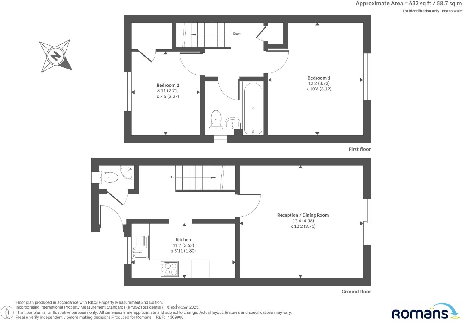
A superb two bedroom end of terrace house with a garage and sold with no chain. Perfectly located in a sought after residential road and positioned in a cul-de-sac this home offers to the ground floor an entrance hall , cloakroom, kitchen and a living room with patio doors opening into...
Property Oracle says ..
This end-of-terrace property is located in Slough, Berkshire. It features two bedrooms and one bathroom, with 631.84 sqft of living space. The property includes a garden. While the property is in reasonable condition, some modernisation would be beneficial. The location is convenient, with nearby schools and transportation links. The asking price of £395,000 appears to be fair for the area and the property’s characteristics.
Therefore, we give this property 6 / 10. *Disclaimer: This is our option and does constitute a recommendation or financial advice. Do your own research. *
- Price
- 7
- Condition
- 5
- Location
- 7
- Land
- 6
- Bedrooms
- 2
- Bathrooms
- 1
- Sqft (est)
- 631.84
The heatmap indicates the level of crime in the area. The color of the heatmap indicates the crime severity and recency.
Metrics Year-on-Year
- Average area value
- 736,250.00 £Increased by 72.69 %
- Est sale value
- 356,989.60 £Increased by 17.71 %
- Average area rental value
- 1,963.00 £/moIncreased by 6.51 %
- Est letting value
- 631.84 £/moDecreased by 50.00 %
- Est rental Yield
- 3.20 %Decreased by 38.34 %
- Crime Rate
- 3.00 %Unchanged by 0.00 %
Agent Activity
Romans created the listing.
Nearby Schools
| Name | Type | Ofsted | Distance |
|---|---|---|---|
| Burnham Grammar School | Academy Converter | Good | 0.32 KM |
| Orchard Avenue Children'S Centre | Children's Centre | 0.41 KM | |
| Priory School | Foundation School | Good | 0.43 KM |
| Our Lady Of Peace Catholic Primary And Nursery School | Voluntary Aided School | Good | 0.59 KM |
| Haybrook College | Academy Alternative Provision Converter | Good | 0.74 KM |
Images
Nearby Streets
| Name | Average Price | Average Sqft | Distance |
|---|---|---|---|
| St. Michael's Court | £ 458,333 | 0 | 0.00 KM |
| Lammas Road | £ 0 | 0 | 0.00 KM |
| Haymill Park Nature Walk | £ 0 | 0 | 0.00 KM |
| High Street | £ 0 | 0 | 0.00 KM |
| Whittaker Road | £ 0 | 0 | 0.00 KM |
Nearby Transport
| Name | NLC | TLC | Distance |
|---|---|---|---|
| Burnham | 3176 | BNM | 0.86 KM |
| Taplow | 3151 | TAP | 3.51 KM |
| Slough | 3172 | SLO | 6.81 KM |
| Windsor And Eton Central | 3175 | WNC | 6.84 KM |
| Windsor And Eton Riverside | 5672 | WNR | 6.93 KM |
Nearby Listings
| Address | Price | Type | Score | Distance |
|---|---|---|---|---|
| St. Michaels Court, Slough, Berkshire | £ 395,000 | BUY | 6 / 10 | 0.00 KM |
| Portland Close, Burnham, Berkshire, SL2 2LT | £ 650,000 | BUY | Unknown | 0.07 KM |
| Portland Close, Slough | £ 650,000 | BUY | 7 / 10 | 0.07 KM |
| Portland Close, Burnham | £ 680,000 | BUY | 7 / 10 | 0.07 KM |
| Lower Britwell Road, Near Burnham, SL2 | £ 625,000 | BUY | 6 / 10 | 0.09 KM |
Nearby Properties
| Address | Price | Distance |
|---|---|---|
| 5 St Michaels Court | £ 229,000 | 0.00 KM |
| 21 St Michaels Court | £ 135,000 | 0.00 KM |
| 14 St Michaels Court | £ 250,000 | 0.00 KM |
| 9 St Michaels Court | £ 345,000 | 0.00 KM |
| 19 St Michaels Court | £ 203,000 | 0.00 KM |