Roseleigh Guest House, 19 Broad Walk, Buxton, SK17 6JR
By Christie & Co
£ 1,225,000
Reviews
4 out of 5 stars
Christie & Co says ..
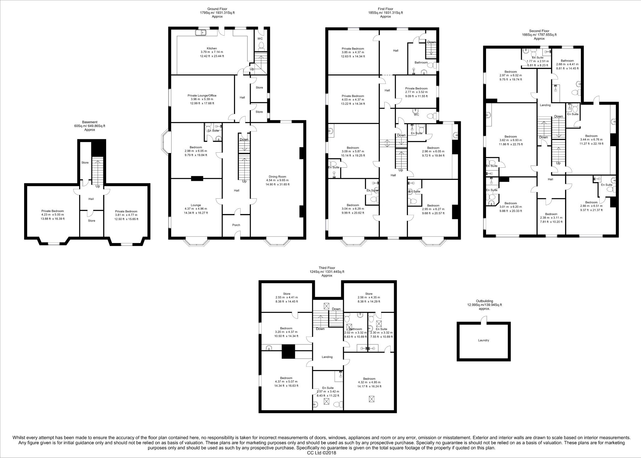
Freehold. Grade II Listed property dating back to 1871. 14 letting bedrooms. Net sales c. £280,000 p.a.. Adjacent to Buxton Pavilion Gardens. 5 bedroom owner?s accommodation
Property Oracle says ..
Roseleigh Guest House is a substantial property located on Broad Walk in Buxton, Derbyshire. The property benefits from being close to Buxton town centre and its amenities, as well as several highly-rated schools. The train station is also within reasonable walking distance. The property itself appears to be in good condition, well-maintained, and presented to a high standard. It is a period property with traditional features, but appears to have been well-maintained and updated. The images show a large garden, directly overlooking a lake, adding significant value.
Considering the size of the property (1622 sqft) and the number of bedrooms (14), it’s suitable for a variety of uses, potentially including a guest house or a large family home. The list price of £1,225,000 is significantly higher than the average house price in Buxton (£295,393), but this is expected given the size, location, and potential uses of this unique property. The average price per square foot in the area is £301, but this figure is skewed by smaller properties and does not reflect the value of a large, established property such as this. The substantial plot size (1931 sqft) and prime location contribute to the higher price. While the price may seem high compared to average house prices in Buxton, it is likely justified given the property’s unique characteristics and potential income-generating capabilities.
Therefore, we give this property 8 / 10. *Disclaimer: This is our option and does constitute a recommendation or financial advice. Do your own research. *
- Price
- 7
- Condition
- 9
- Location
- 10
- Land
- 8
- Bedrooms
- 14
- Bathrooms
- 0
- Sqft (est)
- 1,622.34
- Lot (est)
- 1,931.31
The heatmap indicates the level of crime in the area. The color of the heatmap indicates the crime severity and recency.
Metrics Year-on-Year
- Average area value
- 256,000.00 £Increased by 4.70 %
- Est sale value
- 454,255.20 £Increased by 73.91 %
- Average area rental value
- 995.00 £/moDecreased by 24.68 %
- Est letting value
- 1,622.34 £/mo
- Est rental Yield
- 4.66 %Decreased by 28.09 %
- Crime Rate
- 5.00 %Unchanged by 0.00 %
Agent Activity
Christie & Co created the listing.
Nearby Schools
| Name | Type | Ofsted | Distance |
|---|---|---|---|
| Buxton Community School | Voluntary Controlled School | Good | 0.54 KM |
| Buxton And Leek College | Miscellaneous | 0.64 KM | |
| Buxton Junior School | Community School | Good | 0.72 KM |
| Buxton Infant School | Community School | Outstanding | 0.86 KM |
| St Thomas More Catholic Voluntary Academy | Academy Converter | 1.02 KM |
Images
Nearby Streets
| Name | Average Price | Average Sqft | Distance |
|---|---|---|---|
| Saint. James Terrace | £ 425,000 | 0 | 0.00 KM |
| Bath Road | £ 0 | 0 | 0.00 KM |
| Spencer Road | £ 0 | 0 | 0.00 KM |
| Back Hall Bank | £ 244,750 | 0 | 0.00 KM |
| Macclesfield Road | £ 599,995 | 0 | 0.00 KM |
Nearby Transport
| Name | NLC | TLC | Distance |
|---|---|---|---|
| Buxton | 2946 | BUX | 0.91 KM |
| Dove Holes | 2766 | DVH | 5.96 KM |
| Chapel-En-Le-Frith | 2762 | CEF | 6.41 KM |
| Chinley | 2823 | CLY | 9.95 KM |
Nearby Listings
| Address | Price | Type | Score | Distance |
|---|---|---|---|---|
| Roseleigh Guest House, 19 Broad Walk, Buxton, SK17 6JR | £ 1,225,000 | BUY | 8 / 10 | 0.00 KM |
| Bath Road, Buxton, SK17 | £ 135,000 | BUY | 5 / 10 | 0.11 KM |
| Bath Road, Buxton | £ 427,500 | BUY | 6 / 10 | 0.11 KM |
| Sandringham Court, Broad Walk, Buxton | £ 165,000 | BUY | Unknown | 0.12 KM |
| St. James Terrace, Buxton | £ 275,000 | BUY | Unknown | 0.12 KM |
Nearby Properties
| Address | Price | Distance |
|---|---|---|
| 16a Broad Walk | £ 215,000 | 0.01 KM |
| 16 Broad Walk | £ 500,000 | 0.01 KM |
| 10 Hartington Road | £ 380,000 | 0.11 KM |
| 13 Hartington Road | £ 472,900 | 0.11 KM |
| 19a Bath Road | £ 103,000 | 0.11 KM |