FO
Newport Road, Aldershot
By Fosters Estate Agents
£ 345,000
Reviews
3 out of 5 stars
Fosters Estate Agents says ..
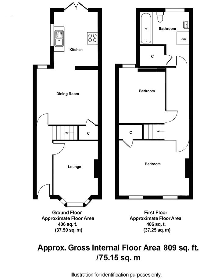
A lovely Victorian House, presented for sale in super condition throughout. It has a perfect mix of charm and character balanced with new flooring, a very pretty Kitchen, modern Bathroom, double glazing and central heating. Re-decorated sympathetically by the Owners, it has a lovely feel to it ...
Property Oracle says ..
Therefore, we give this property 7 / 10. *Disclaimer: This is our option and does constitute a recommendation or financial advice. Do your own research. *
- Price
- 6
- Condition
- 8
- Location
- 7
- Land
- 7
- Bedrooms
- 2
- Bathrooms
- 1
- Sqft (est)
- 808.91
- Lot (est)
- 1,076.39
The heatmap indicates the level of crime in the area. The color of the heatmap indicates the crime severity and recency.
Metrics Year-on-Year
- Average area value
- 250,000.00 £Increased by 29.42 %
- Est sale value
- 241,864.09 £Increased by 32.89 %
- Average area rental value
- 833.00 £/moDecreased by 23.08 %
- Est letting value
- 0.00 £/moDecreased by 100.00 %
- Est rental Yield
- 4.00 %Decreased by 40.56 %
- Crime Rate
- 14.00 %Unchanged by 0.00 %
from 193,175.00 £
from 182,004.75 £
from 1,083.00 £/mo
from 808.91 £/mo
from 6.73 %
from 14.00 %
Agent Activity
Fosters Estate Agents created the listing.
Nearby Schools
| Name | Type | Ofsted | Distance |
|---|---|---|---|
| Maple Vue Children'S Centre | Children's Centre | 0.59 KM | |
| Alderwood School | Community School | Good | 0.66 KM |
| Park Primary School | Community School | Good | 1.19 KM |
| St Michael'S Church Of England Controlled Junior School | Voluntary Controlled School | Requires improvement | 1.23 KM |
| Sunflowers Children'S Centre | Children's Centre Linked Site | 1.36 KM |
Images
Nearby Streets
| Name | Average Price | Average Sqft | Distance |
|---|---|---|---|
| Blackwater Way | £ 0 | 0 | 0.00 KM |
| Needhams Place | £ 0 | 0 | 0.00 KM |
| Oak Way | £ 0 | 0 | 0.00 KM |
| Alpha Road | £ 0 | 0 | 0.00 KM |
| St Marys Close | £ 0 | 0 | 0.00 KM |
Nearby Transport
| Name | NLC | TLC | Distance |
|---|---|---|---|
| Aldershot | 5623 | AHT | 1.86 KM |
| Ash | 5641 | ASH | 3.48 KM |
| North Camp | 5636 | NCM | 3.93 KM |
| Ash Vale | 5547 | AHV | 4.08 KM |
| Farnborough (Main) | 5521 | FNB | 6.15 KM |
Nearby Listings
| Address | Price | Type | Score | Distance |
|---|---|---|---|---|
| Newport Road, Aldershot | £ 345,000 | BUY | 7 / 10 | 0.00 KM |
| Newport Road, Alderhot, Hampshire, GU12 | £ 480,000 | BUY | Unknown | 0.01 KM |
| Herretts Gardens, Aldershot, Hampshire | £ 425,000 | BUY | 7 / 10 | 0.11 KM |
| Wilson Road, Aldershot, Hampshire, GU12 | £ 375,000 | BUY | 7 / 10 | 0.11 KM |
| Herretts Gardens, Aldershot, GU12 | £ 450,000 | BUY | 7 / 10 | 0.11 KM |
Nearby Properties
| Address | Price | Distance |
|---|---|---|
| 152 Newport Road | £ 330,000 | 0.01 KM |
| 162 Newport Road | £ 182,950 | 0.01 KM |
| 160 Newport Road | £ 279,950 | 0.01 KM |
| 136 Newport Road | £ 347,500 | 0.01 KM |
| 132 Newport Road | £ 343,500 | 0.01 KM |