Taylor Hill & Bond says ..
Superbly located close to central Warsash and local amenities an immaculately presented two-bedroom ground floor apartment with a single garage.
Property Oracle says ..
Therefore, we give this property 6 / 10. *Disclaimer: This is our option and does constitute a recommendation or financial advice. Do your own research. *
- Price
- 9
- Condition
- 8
- Location
- 7
- Land
- 3
- Bedrooms
- 2
- Bathrooms
- 1
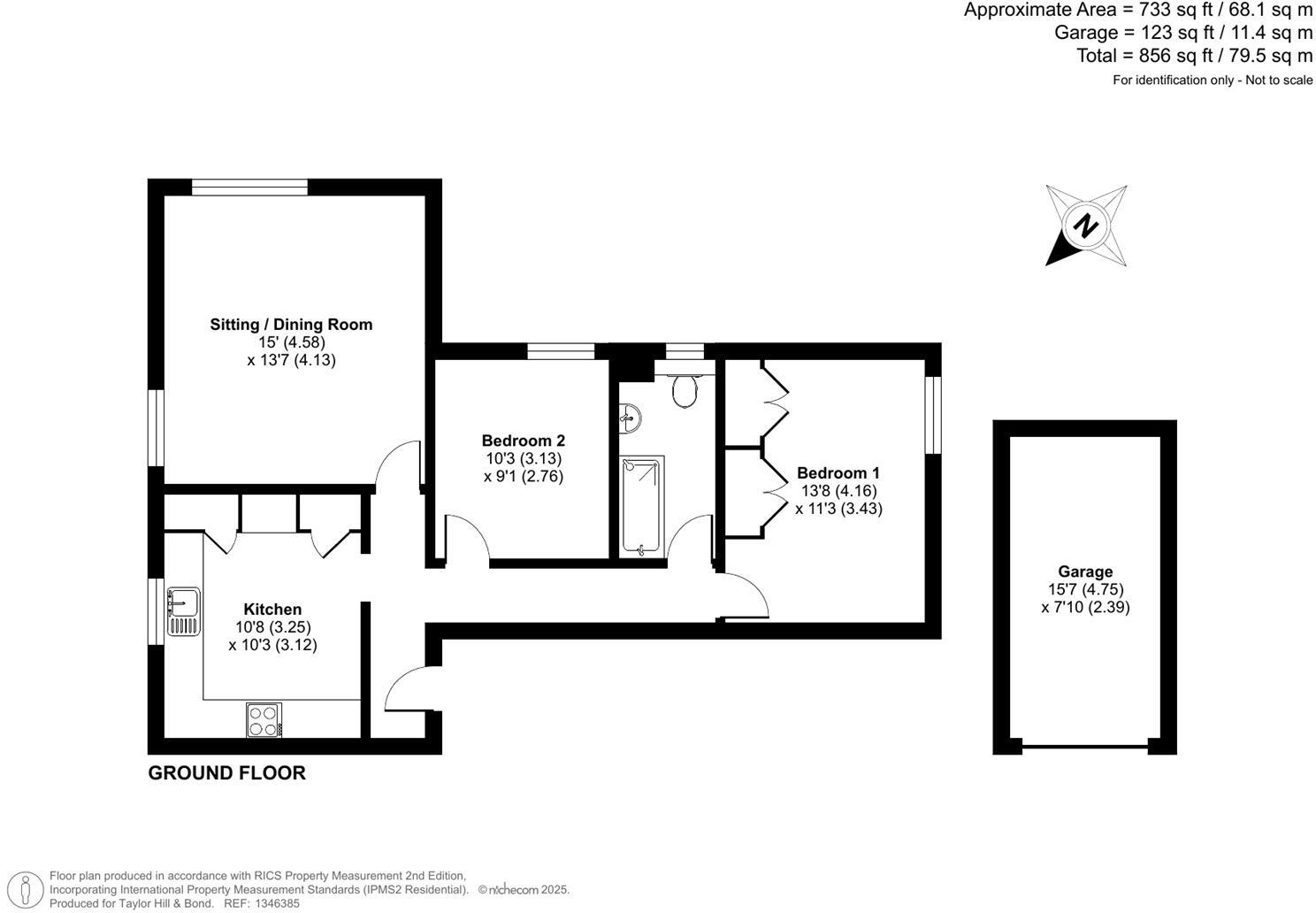
- Sqft (est)
- 856.00
The heatmap indicates the level of crime in the area. The color of the heatmap indicates the crime severity and recency.
Metrics Year-on-Year
- Average area value
- 691,555.00 £Increased by 13.60 %
- Est sale value
- 359,520.00 £Decreased by 1.18 %
- Average area rental value
- 1,511.00 £/moDecreased by 13.06 %
- Est letting value
- 0.00 £/moDecreased by 100.00 %
- Est rental Yield
- 2.62 %Decreased by 23.62 %
- Crime Rate
- 13.00 %Unchanged by 0.00 %
from 608,749.00 £
from 363,800.00 £
from 1,738.00 £/mo
from 856.00 £/mo
from 3.43 %
from 13.00 %
Agent Activity
Taylor Hill & Bond created the listing.
Nearby Schools
| Name | Type | Ofsted | Distance |
|---|---|---|---|
| Hook-With-Warsash Church Of England Academy | Academy Converter | Good | 0.74 KM |
| Sovereign And Strawberry Meadow Children'S Centre | Children's Centre | 2.25 KM | |
| Sarisbury Infant School | Community School | Outstanding | 2.29 KM |
| Brookfield Community School | Community School | Good | 2.40 KM |
| Sarisbury Church Of England Junior School | Voluntary Controlled School | Outstanding | 2.90 KM |
Images
Nearby Streets
| Name | Average Price | Average Sqft | Distance |
|---|---|---|---|
| Falkland Drive | £ 0 | 0 | 0.00 KM |
| Fox Close | £ 0 | 0 | 0.00 KM |
| Phoenix Drive | £ 0 | 0 | 0.00 KM |
| Thornton Avenue | £ 1,750,000 | 0 | 0.00 KM |
| Warsash Road | £ 399,950 | 0 | 0.00 KM |
Nearby Transport
| Name | NLC | TLC | Distance |
|---|---|---|---|
| Bursledon | 5927 | BUO | 3.50 KM |
| Hamble | 5947 | HME | 3.75 KM |
| Swanwick | 5920 | SNW | 4.67 KM |
| Netley | 5911 | NTL | 5.16 KM |
| Botley | 5894 | BOE | 8.49 KM |
Nearby Listings
| Address | Price | Type | Score | Distance |
|---|---|---|---|---|
| Havelock Road, Warsash, Southampton | £ 165,000 | BUY | 6 / 10 | 0.00 KM |
| Havelock Road, Warsash | £ 250,000 | BUY | 6 / 10 | 0.00 KM |
| Havelock Road, Warsash, Southampton, SO31 | £ 230,000 | BUY | 7 / 10 | 0.03 KM |
| Havelock Road, Warsash | £ 285,000 | BUY | 6 / 10 | 0.06 KM |
| Normandy Court, Shore Road, Southampton, Hampshire, SO31 | £ 220,000 | BUY | 5 / 10 | 0.08 KM |
Nearby Properties
| Address | Price | Distance |
|---|---|---|
| 15 Shore Road | £ 56,000 | 0.08 KM |
| 33 Shore Road | £ 110,000 | 0.08 KM |
| 57 Shore Road | £ 449,950 | 0.08 KM |
| 37 Shore Road | £ 390,000 | 0.08 KM |
| 71 Shore Road | £ 320,000 | 0.08 KM |