Clarence Road, Fleet, Hampshire, GU51
By Bridges Estate Agents
£ 195,000
Reviews
3 out of 5 stars
Bridges Estate Agents says ..
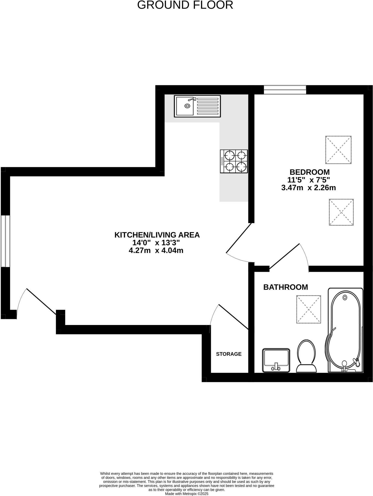
A short stroll from Fleets mainline station and the town centre, this bespoke and immaculate development of just four meticulously finished homes. The property ground floor, with a spacious kitchen/living area, perfect for entertaining. The principal bedroom with en suite is offered in ...
Property Oracle says ..
This is a one-bedroom flat in Fleet, Hampshire. The property appears to be in good condition and has been recently renovated. It is located in a convenient location, close to the train station and local schools. The flat is listed for £195,000, which is comparable to other properties in the area. Overall, this property would likely appeal to first-time buyers or investors looking for a buy-to-let property. The proximity to local transport links makes it ideal for commuters.
Therefore, we give this property 6 / 10. *Disclaimer: This is our option and does constitute a recommendation or financial advice. Do your own research. *
- Price
- 7
- Condition
- 8
- Location
- 7
- Land
- 3
- Bedrooms
- 1
- Bathrooms
- 1
- Sqft (est)
- 269.88
The heatmap indicates the level of crime in the area. The color of the heatmap indicates the crime severity and recency.
Metrics Year-on-Year
- Average area value
- 399,167.00 £Increased by 7.59 %
- Est sale value
- 99,855.60 £Increased by 3.64 %
- Average area rental value
- 1,292.00 £/moIncreased by 3.03 %
- Est letting value
- 269.88 £/moUnchanged by 0.00 %
- Est rental Yield
- 3.88 %Decreased by 4.43 %
- Crime Rate
- 1.00 %Unchanged by 0.00 %
Agent Activity
Bridges Estate Agents created the listing.
Nearby Schools
| Name | Type | Ofsted | Distance |
|---|---|---|---|
| Heatherside Infant School | Community School | Outstanding | 0.86 KM |
| Heatherside Junior School | Community School | Outstanding | 0.86 KM |
| Fleet Fireflies Children'S Centre | Children's Centre Linked Site | 1.06 KM | |
| Velmead Junior School | Community School | Good | 1.42 KM |
| Fleet Infant School | Community School | Outstanding | 1.46 KM |
Images
Nearby Streets
| Name | Average Price | Average Sqft | Distance |
|---|---|---|---|
| Argyll Court | £ 0 | 0 | 0.00 KM |
| Gainsborough Court | £ 165,000 | 0 | 0.00 KM |
| Travis Perkins | £ 0 | 0 | 0.00 KM |
| Swift Court | £ 0 | 0 | 0.00 KM |
| Westfield Court | £ 0 | 0 | 0.00 KM |
Nearby Transport
| Name | NLC | TLC | Distance |
|---|---|---|---|
| Fleet | 5522 | FLE | 1.13 KM |
| Winchfield | 5528 | WNF | 7.77 KM |
| Sandhurst (Berks) | 5646 | SND | 8.02 KM |
| Blackwater | 5625 | BAW | 8.61 KM |
| Farnborough (Main) | 5521 | FNB | 9.10 KM |
Nearby Listings
| Address | Price | Type | Score | Distance |
|---|---|---|---|---|
| Clarence Road, Fleet, Hampshire, GU51 | £ 195,000 | BUY | 6 / 10 | 0.00 KM |
| Clarence Road, FLEET, GU51 | £ 225,000 | BUY | 6 / 10 | 0.01 KM |
| Clarence Road, Fleet, GU51 | £ 210,000 | BUY | 6 / 10 | 0.02 KM |
| Clarence Road, Fleet | £ 475,000 | BUY | 7 / 10 | 0.03 KM |
| Clarence Road, Fleet | £ 179,950 | BUY | 5 / 10 | 0.03 KM |
Nearby Properties
| Address | Price | Distance |
|---|---|---|
| 5 Bearwood Gardens | £ 160,000 | 0.09 KM |
| 13 Bearwood Gardens | £ 197,000 | 0.09 KM |
| 18 Bearwood Gardens | £ 146,000 | 0.09 KM |
| 8 Bearwood Gardens | £ 220,000 | 0.09 KM |
| 39 Clarence Road | £ 385,000 | 0.09 KM |