Semi-Detached, Wern Fach Court, Cwmbran
By Crook & Blight
£ 165,000
Reviews
3 out of 5 stars
Crook & Blight says ..
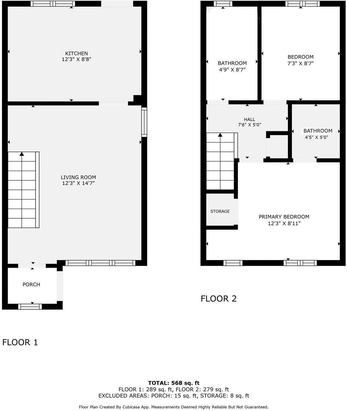
A superb semi-detached modern house offering two bedroom, two bathroom accommodation in this quiet, convenient cul-de-sac a short drive from Cwmbran, Newport and the M4. Entrance porch, living room, good size kitchen, two first floor bedrooms with en-suite shower room and family bathroom. Pleasan...
Property Oracle says ..
This is a two-bedroom semi-detached property located in Cwmbran, Wales. The property is in reasonable condition, although the kitchen and bathrooms could benefit from modernisation. It features a garden that is mostly paved. The property is located close to local schools and is within a reasonable distance of transportation links. The asking price of £165,000 appears to be fair, considering the location and condition of the property.
Therefore, we give this property 6 / 10. *Disclaimer: This is our option and does constitute a recommendation or financial advice. Do your own research. *
- Price
- 8
- Condition
- 6
- Location
- 6
- Land
- 5
- Bedrooms
- 2
- Bathrooms
- 2
The heatmap indicates the level of crime in the area. The color of the heatmap indicates the crime severity and recency.
Metrics Year-on-Year
- Average area value
- 283,000.00 £Decreased by 21.70 %
- Average area rental value
- 1,134.00 £/moIncreased by 19.24 %
- Est rental Yield
- 4.81 %Increased by 52.22 %
- Crime Rate
- 2.00 %Unchanged by 0.00 %
Agent Activity
Crook & Blight created the listing.
Nearby Schools
| Name | Type | Ofsted | Distance |
|---|---|---|---|
| Henllys C.I.W. Primary School | Welsh Establishment | 0.42 KM | |
| Greenmeadow Primary School | Welsh Establishment | 1.35 KM | |
| Blenheim Road Community Primary School | Welsh Establishment | 2.11 KM | |
| Woodlands Community Primary School | Welsh Establishment | 2.88 KM | |
| Ysgol Gymraeg Cwmbran | Welsh Establishment | 3.49 KM |
Images
Nearby Streets
| Name | Average Price | Average Sqft | Distance |
|---|---|---|---|
| Castle Court | £ 450,000 | 0 | 0.00 KM |
| Henllys Village Road | £ 130,000 | 0 | 0.00 KM |
| Nant-Y-Milwr Close | £ 400,000 | 0 | 0.00 KM |
| Laburnum Drive | £ 0 | 0 | 0.00 KM |
| Ty Canol Way | £ 300,000 | 0 | 0.00 KM |
Nearby Transport
| Name | NLC | TLC | Distance |
|---|---|---|---|
| Rogerstone | 9921 | ROR | 4.85 KM |
| Cwmbran | 3738 | CWM | 5.02 KM |
| Risca And Pontymister | 9920 | RCA | 5.25 KM |
| Pye Corner | 1663 | PYE | 6.91 KM |
| Crosskeys | 9902 | CKY | 7.81 KM |
Nearby Listings
| Address | Price | Type | Score | Distance |
|---|---|---|---|---|
| Semi-Detached, Wern Fach Court, Cwmbran | £ 165,000 | BUY | 6 / 10 | 0.00 KM |
| Henllys | £ 250,000 | BUY | 6 / 10 | 0.00 KM |
| 9 Wern Fach Court, Cwmbran, NP44 | £ 375,000 | BUY | 7 / 10 | 0.02 KM |
| Wern Fach Court, Henllys, NP44 | £ 250,000 | BUY | 6 / 10 | 0.04 KM |
| Hendre Court, Henllys, Cwmbran | £ 400,000 | BUY | 7 / 10 | 0.11 KM |
Nearby Properties
| Address | Price | Distance |
|---|---|---|
| 24 Wern Fach Court | £ 252,000 | 0.01 KM |
| 21 Wern Fach Court | £ 122,500 | 0.01 KM |
| 22 Wern Fach Court | £ 129,000 | 0.01 KM |
| 13 Wern Fach Court | £ 156,500 | 0.01 KM |
| 3 Wern Fach Court | £ 163,000 | 0.01 KM |