Killens says ..
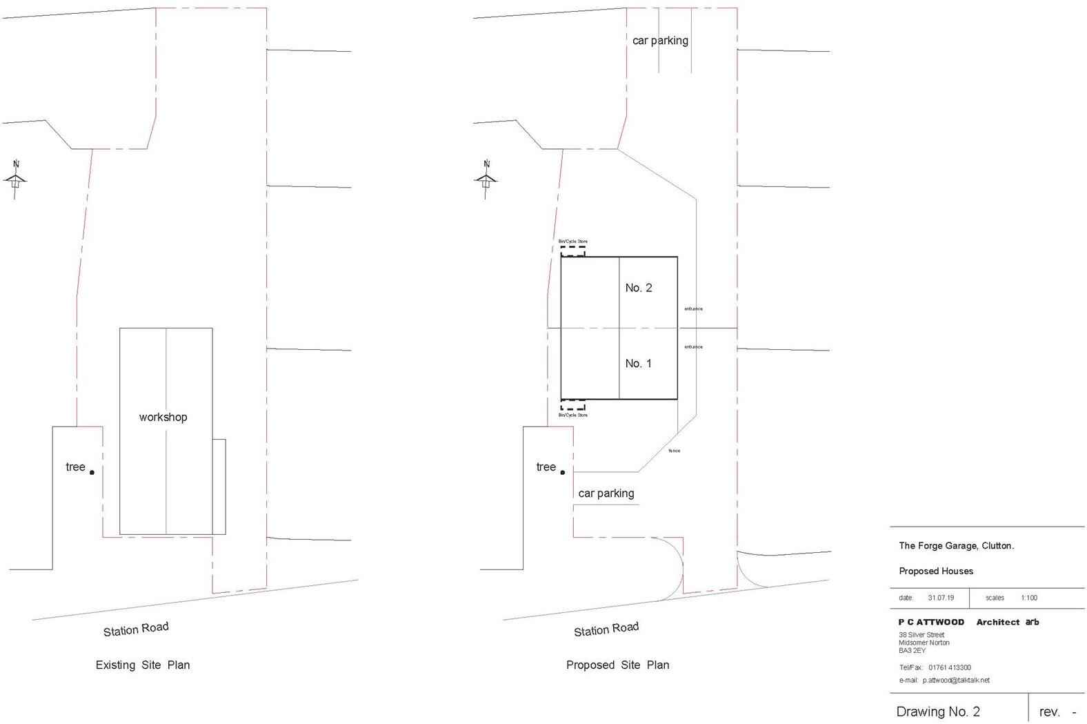
Former garage/workshop comprising a steel framed building and yard area that previously had planning consent for the erection of two semi-detached dwellings. Situated on the edge of the village with views towards the Church.
Property Oracle says ..
The Old Forge in Clutton presents a unique opportunity for buyers looking for a project. The property is a large, dilapidated barn located in a desirable village setting. While the building itself requires extensive renovation, the plot of land offers potential for development or other uses. The location is convenient for families with children, as Clutton Primary School is nearby. However, the property is not ideally located for commuters. The asking price reflects the condition of the property and the potential for improvement.
Therefore, we give this property 5 / 10. *Disclaimer: This is our option and does constitute a recommendation or financial advice. Do your own research. *
- Price
- 7
- Condition
- 2
- Location
- 6
- Land
- 7
- Bedrooms
- 0
- Bathrooms
- 0
The heatmap indicates the level of crime in the area. The color of the heatmap indicates the crime severity and recency.
Metrics Year-on-Year
- Average area value
- 310,000.00 £Decreased by 11.97 %
- Average area rental value
- 1,300.00 £/moIncreased by 1.33 %
- Est rental Yield
- 5.03 %Increased by 15.10 %
- Crime Rate
- 27.00 %Unchanged by 0.00 %
Agent Activity
Killens created the listing.
Nearby Schools
| Name | Type | Ofsted | Distance |
|---|---|---|---|
| Clutton Primary School | Academy Converter | Good | 0.68 KM |
| Cameley Cevc Primary School | Academy Converter | 1.33 KM | |
| Farrington Gurney Church Of England Primary School | Academy Converter | Good | 4.06 KM |
| High Littleton Cofe Vc Primary School | Academy Converter | 4.15 KM | |
| Pensford Primary School | Academy Converter | 4.65 KM |
Images
Nearby Streets
| Name | Average Price | Average Sqft | Distance |
|---|---|---|---|
| Warwick Gardens | £ 0 | 0 | 0.00 KM |
| Tynings Way | £ 350,000 | 0 | 0.00 KM |
| Main Road | £ 599,950 | 0 | 0.00 KM |
| Moorsfield | £ 285,000 | 0 | 0.00 KM |
| Carlton Close | £ 0 | 0 | 0.00 KM |
Nearby Listings
| Address | Price | Type | Score | Distance |
|---|---|---|---|---|
| The Old Forge, Clutton | £ 320,000 | BUY | 5 / 10 | 0.00 KM |
| Rush Hill, Farrington Gurney, Bristol, Somerset, BS39 | £ 270,000 | BUY | 7 / 10 | 0.04 KM |
| Rogers Close, Clutton | £ 375,000 | BUY | Unknown | 0.12 KM |
| Warwick Gardens, Bristol | £ 485,000 | BUY | 7 / 10 | 0.20 KM |
| Rogers Close, Clutton | £ 355,000 | BUY | 7 / 10 | 0.28 KM |
Nearby Properties
| Address | Price | Distance |
|---|---|---|
| 9 The Mead | £ 225,000 | 0.07 KM |
| 35 Upper Bristol Road | £ 225,000 | 0.11 KM |
| Ingledene Cottage | £ 263,000 | 0.11 KM |
| Woodview | £ 280,000 | 0.14 KM |
| Trebar | £ 110,000 | 0.14 KM |