Marlborough Road, Old Town, Swindon
By MILES BYRON
£ 500,000
Reviews
3 out of 5 stars
MILES BYRON says ..
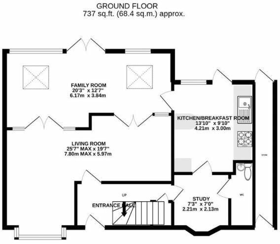
An EXTENDED & impressive semi detached family sized home located along the desirable Marlborough Road of Old Town, Swindon. Attributes include: 4 BEDROOMS WITH AN EN-SUITE SHOWER ROOM, 3 separate reception rooms + a large SOUTH FACING GARDEN + DRIVEWAY PARKING FOR C.3-4 VEHICLES.
Property Oracle says ..
This four-bedroom, three-bathroom semi-detached house in Old Town, Swindon, presents a compelling offering for prospective buyers. Situated on Marlborough Road, it benefits from a desirable location near several well-regarded primary schools, making it especially attractive to families. The property features a substantial south-facing garden, offering ample outdoor space. The interior appears to be well-maintained and stylish, with evidence of recent renovations or upgrades to the kitchen and bathrooms. A significant extension appears to have increased the living area, creating a spacious family home. While the property is well-presented, a precise assessment of value for money is difficult due to a lack of consistent comparable property data in terms of price per square foot. The provided nearby property listings offer varying prices and lack square footage information, hindering an accurate assessment of the £500,000 list price. However, considering the apparent condition and substantial garden, the pricing seems relatively reasonable given the area and its characteristics.
Therefore, we give this property 7 / 10. *Disclaimer: This is our option and does constitute a recommendation or financial advice. Do your own research. *
- Price
- 7
- Condition
- 8
- Location
- 7
- Land
- 7
- Bedrooms
- 4
- Bathrooms
- 3
- Sqft (est)
- 1,229.00
The heatmap indicates the level of crime in the area. The color of the heatmap indicates the crime severity and recency.
Metrics Year-on-Year
- Average area value
- 481,967.00 £Increased by 28.07 %
- Est sale value
- 491,600.00 £Decreased by 15.97 %
- Average area rental value
- 1,254.00 £/moIncreased by 10.97 %
- Est letting value
- 1,229.00 £/moUnchanged by 0.00 %
- Est rental Yield
- 3.12 %Decreased by 13.33 %
- Crime Rate
- 0.00 %
Agent Activity
MILES BYRON created the listing.
Nearby Schools
| Name | Type | Ofsted | Distance |
|---|---|---|---|
| Lawn Primary | Community School | Good | 0.36 KM |
| Lawn Manor Academy | Academy Converter | Requires improvement | 1.32 KM |
| The Croft Primary School | Academy Sponsor Led | Outstanding | 1.32 KM |
| Lainesmead Primary School And Nursery | Community School | Requires improvement | 1.67 KM |
| New College Swindon | Further Education | 1.77 KM |
Images
Nearby Streets
| Name | Average Price | Average Sqft | Distance |
|---|---|---|---|
| Raglan Close | £ 500,000 | 0 | 0.00 KM |
| Collins Road | £ 250,000 | 0 | 0.00 KM |
| Caernarvon Walk | £ 520,000 | 0 | 0.00 KM |
| Guildford Avenue | £ 0 | 0 | 0.00 KM |
| Cambridge Close | £ 0 | 0 | 0.00 KM |
Nearby Transport
| Name | NLC | TLC | Distance |
|---|---|---|---|
| Swindon (Wilts) | 3333 | SWI | 3.39 KM |
Nearby Listings
| Address | Price | Type | Score | Distance |
|---|---|---|---|---|
| Marlborough Road, Old Town, Swindon | £ 500,000 | BUY | 7 / 10 | 0.00 KM |
| Marlborough Road, Old Town Swindon | £ 750,000 | BUY | 7 / 10 | 0.04 KM |
| Marlborough Road, Swindon, SN3 | £ 485,750 | BUY | 7 / 10 | 0.04 KM |
| Marlborough Road, Swindon, SN3 | £ 284,750 | BUY | 7 / 10 | 0.04 KM |
| Marlborough Road, Swindon, SN3 | £ 725,000 | BUY | 7 / 10 | 0.04 KM |
Nearby Properties
| Address | Price | Distance |
|---|---|---|
| 149 Marlborough Road | £ 250,000 | 0.04 KM |
| 169 Marlborough Road | £ 189,950 | 0.04 KM |
| 163 Marlborough Road | £ 455,000 | 0.04 KM |
| 167 Marlborough Road | £ 315,000 | 0.04 KM |
| 135 Marlborough Road | £ 425,000 | 0.04 KM |