Corum says ..
An impressive, detached Cala house set within level garden ground
Property Oracle says ..
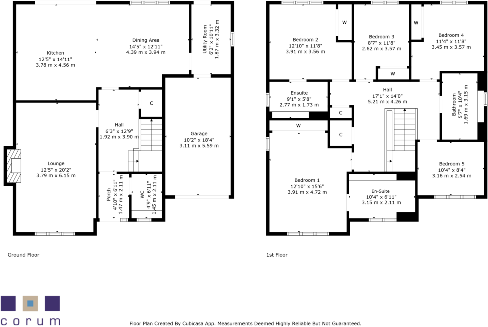
This property is a 5 bedroom, 3 bathroom house located in Newton Mearns, East Renfrewshire. Based on the images provided the property appears to be in excellent condition, recently renovated to a high standard. The kitchen and bathrooms are modern and well-equipped. The property benefits from a good-sized rear garden. The list price of £520,000 is slightly above the average price for the area (£430,226), but considering the size (1,864.52 sqft) and the high-quality finish, it could be considered reasonable. The nearby properties are more expensive, suggesting the list price may be appropriate for this location and condition. There are several train stations within a reasonable distance, making commuting convenient. However, information on nearby schools is not available.
Therefore, we give this property 8 / 10. *Disclaimer: This is our option and does constitute a recommendation or financial advice. Do your own research. *
- Price
- 7
- Condition
- 10
- Location
- 8
- Land
- 7
- Bedrooms
- 5
- Bathrooms
- 3
- Sqft (est)
- 1,864.52
The heatmap indicates the level of crime in the area. The color of the heatmap indicates the crime severity and recency.
Metrics Year-on-Year
- Average area value
- 447,909.00 £Increased by 2.81 %
- Est sale value
- 695,465.96 £Increased by 37.13 %
- Average area rental value
- 1,580.00 £/moDecreased by 1.13 %
- Est letting value
- 1,864.52 £/mo
- Est rental Yield
- 4.23 %Decreased by 3.86 %
- Crime Rate
- 0.00 %
Agent Activity
Corum created the listing.
Images
Nearby Streets
| Name | Average Price | Average Sqft | Distance |
|---|---|---|---|
| Torlum Crescent | £ 720,000 | 0 | 0.00 KM |
| Sollas Gardens | £ 379,500 | 0 | 0.00 KM |
| Sandray Place | £ 440,000 | 0 | 0.00 KM |
| Raeside Way | £ 0 | 0 | 0.00 KM |
| Malletsheugh Road | £ 0 | 0 | 0.00 KM |
Nearby Transport
| Name | NLC | TLC | Distance |
|---|---|---|---|
| Patterton | 9775 | PTT | 3.35 KM |
| Whitecraigs | 9777 | WCR | 5.20 KM |
| Priesthill And Darnley | 9808 | PTL | 5.44 KM |
| Nitshill | 9609 | NIT | 5.52 KM |
| Kennishead | 9816 | KNS | 6.11 KM |
Nearby Listings
| Address | Price | Type | Score | Distance |
|---|---|---|---|---|
| Evie Wynd, Newton Mearns | £ 520,000 | BUY | 8 / 10 | 0.00 KM |
| Evie Wynd, Newton Mearns, Glasgow, East Renfrewshire | £ 685,000 | BUY | Unknown | 0.06 KM |
| Evie Wynd, Newton Mearns, Glasgow, East Renfrewshire, G77 | £ 495,000 | BUY | 7 / 10 | 0.10 KM |
| Evie Wynd, Newton Mearns | £ 485,000 | BUY | 7 / 10 | 0.12 KM |
| Raeside Grove, Newton Mearns, G77 | £ 350,000 | BUY | 7 / 10 | 0.15 KM |