Winkworth says ..
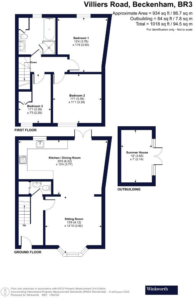
Recently renovated, this larger-than-average end-of-terrace property offers a rare opportunity in the area. Arranged over two levels, it includes a bright front reception room with a charming bay window, an open-plan kitchen-diner, and a convenient WC on the ground floor. The first floor features...
Property Oracle says ..
This end-of-terrace property on Villiers Road, Beckenham, offers three bedrooms and one bathroom, spanning 1,018 sqft. The house is situated in a convenient location, close to transportation and schools. The property features a garden with a shed. While generally well-maintained, some areas could benefit from cosmetic updates. The asking price of £650,000 appears reasonable given the location and size of the property.
Therefore, we give this property 7 / 10. *Disclaimer: This is our option and does constitute a recommendation or financial advice. Do your own research. *
- Price
- 7
- Condition
- 7
- Location
- 7
- Land
- 7
- Bedrooms
- 3
- Bathrooms
- 1
- Sqft (est)
- 1,018.00
- Lot (est)
- 84.00
The heatmap indicates the level of crime in the area. The color of the heatmap indicates the crime severity and recency.
Metrics Year-on-Year
- Average area value
- 666,950.00 £Increased by 20.68 %
- Est sale value
- 721,762.00 £Increased by 27.98 %
- Average area rental value
- 1,565.00 £/moDecreased by 5.89 %
- Est letting value
- 1,018.00 £/moUnchanged by 0.00 %
- Est rental Yield
- 2.82 %Decreased by 21.88 %
- Crime Rate
- 6.00 %Unchanged by 0.00 %
Agent Activity
Winkworth created the listing.
Nearby Schools
| Name | Type | Ofsted | Distance |
|---|---|---|---|
| Churchfields Primary School | Academy Converter | 0.20 KM | |
| Harris Primary Academy Kent House | Academy Sponsor Led | Outstanding | 0.67 KM |
| Alexandra Infant School | Academy Converter | Good | 0.81 KM |
| Balgowan Primary School | Academy Converter | Good | 1.05 KM |
| Stewart Fleming Primary School | Academy Converter | Outstanding | 1.19 KM |
Images
Nearby Streets
| Name | Average Price | Average Sqft | Distance |
|---|---|---|---|
| Garden Road | £ 750,000 | 0 | 0.00 KM |
| Priory Close | £ 625,000 | 0 | 0.00 KM |
| Chaffinch Road | £ 700,000 | 0 | 0.00 KM |
| Grace Mews | £ 0 | 0 | 0.00 KM |
| High Street | £ 0 | 0 | 0.00 KM |
Nearby Transport
| Name | NLC | TLC | Distance |
|---|---|---|---|
| Kent House | 5080 | KTH | 0.74 KM |
| Birkbeck | 5401 | BIK | 0.87 KM |
| Elmers End | 5049 | ELE | 0.88 KM |
| Clock House | 5048 | CLK | 0.88 KM |
| Penge East | 5072 | PNE | 1.59 KM |
Nearby Listings
| Address | Price | Type | Score | Distance |
|---|---|---|---|---|
| Villiers Road, Beckenham, BR3 | £ 650,000 | BUY | 7 / 10 | 0.00 KM |
| Villiers Road, Beckenham, BR3 | £ 650,000 | BUY | Unknown | 0.03 KM |
| Blandford Road, Beckenham, BR3 | £ 600,000 | BUY | 6 / 10 | 0.06 KM |
| Seward Road, Beckenham, BR3 | £ 520,000 | BUY | 5 / 10 | 0.06 KM |
| Villiers Road, Beckenham, BR3 | £ 660,000 | BUY | 7 / 10 | 0.06 KM |
Nearby Properties
| Address | Price | Distance |
|---|---|---|
| 33 Villiers Road | £ 149,000 | 0.07 KM |
| 32 Villiers Road | £ 530,000 | 0.07 KM |
| 23 Villiers Road | £ 342,000 | 0.07 KM |
| 31 Villiers Road | £ 420,000 | 0.07 KM |
| 52 Kimberley Road | £ 262,500 | 0.07 KM |