Idmiston Road, London, SE27
By Harvey & Wheeler
£ 800,000
Reviews
3 out of 5 stars
Harvey & Wheeler says ..
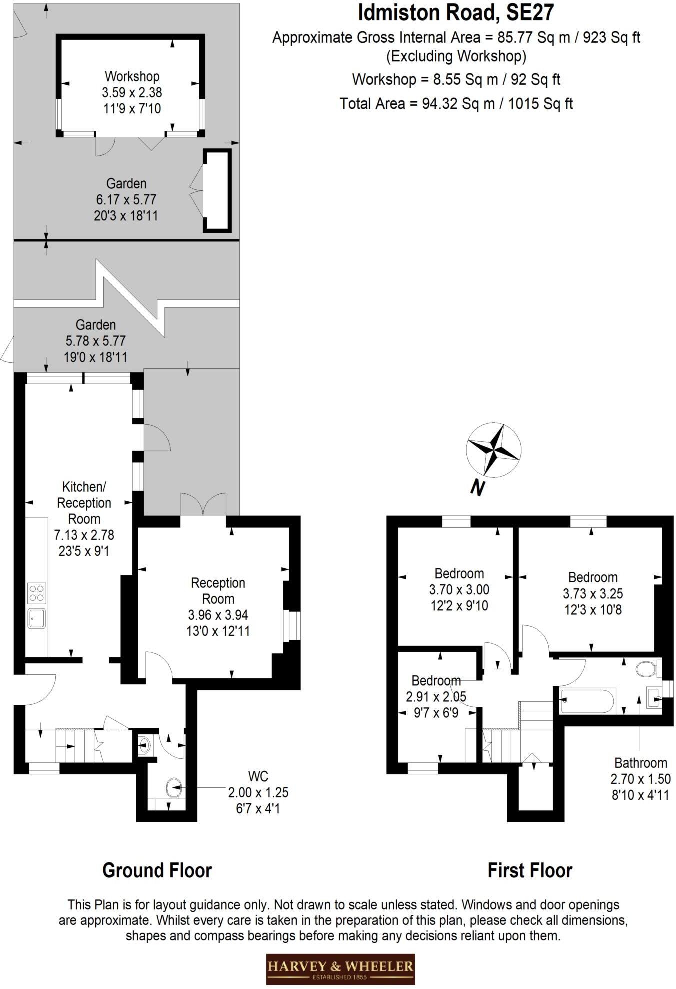
A bright three bedroom converted maisonette in a semi detached period house with a private rear garden, an allocated off street parking space and access to a large communal garden area.
Property Oracle says ..
This is a 3-bedroom maisonette located in Thurlow Park, London. The property is in a good location, close to schools and transportation. However, the condition of the property is fair and in need of some modernisation. The property benefits from a garden and a shed. The price seems reasonable for the location and size of the property.
Therefore, we give this property 6 / 10. *Disclaimer: This is our option and does constitute a recommendation or financial advice. Do your own research. *
- Price
- 6
- Condition
- 5
- Location
- 7
- Land
- 7
- Bedrooms
- 3
- Bathrooms
- 1
The heatmap indicates the level of crime in the area. The color of the heatmap indicates the crime severity and recency.
Metrics Year-on-Year
- Average area value
- 418,111.00 £Decreased by 38.49 %
- Average area rental value
- 2,476.00 £/moIncreased by 11.08 %
- Est rental Yield
- 7.11 %Increased by 80.46 %
- Crime Rate
- 1.00 %Unchanged by 0.00 %
Agent Activity
Harvey & Wheeler created the listing.
Nearby Schools
| Name | Type | Ofsted | Distance |
|---|---|---|---|
| Cherry Tree Children'S Centre | Children's Centre Linked Site | 0.37 KM | |
| The Elmgreen School | Academy Converter | Good | 0.44 KM |
| Rosemead Preparatory School | Other Independent School | 0.46 KM | |
| Julian'S School | Foundation School | Good | 0.70 KM |
| Park Campus Academy | Academy Alternative Provision Converter | Good | 0.91 KM |
Images
Nearby Streets
| Name | Average Price | Average Sqft | Distance |
|---|---|---|---|
| Church Road | £ 0 | 0 | 0.00 KM |
| Auckland Hill | £ 0 | 0 | 0.00 KM |
| Yeomans Close | £ 0 | 0 | 0.00 KM |
| Thurlow Park Road | £ 0 | 0 | 0.00 KM |
| Eden Road | £ 0 | 0 | 0.00 KM |
Nearby Transport
| Name | NLC | TLC | Distance |
|---|---|---|---|
| West Norwood | 5438 | WNW | 0.54 KM |
| Tulse Hill | 5390 | TUH | 0.64 KM |
| West Dulwich | 5086 | WDU | 1.21 KM |
| Herne Hill | 5066 | HNH | 1.96 KM |
| Gipsy Hill | 5363 | GIP | 2.28 KM |
Nearby Listings
| Address | Price | Type | Score | Distance |
|---|---|---|---|---|
| Idmiston Road, London, SE27 | £ 800,000 | BUY | 6 / 10 | 0.00 KM |
| Idmiston Road, West Dulwich, SE27 | £ 800,000 | BUY | 6 / 10 | 0.09 KM |
| Idmiston Road, West Dulwich, London, SE27 | £ 1,850,000 | BUY | Unknown | 0.09 KM |
| Chestnut Road, West Norwood, London, SE27 | £ 1,850,000 | BUY | 6 / 10 | 0.11 KM |
| Chatsworth Way, West Dulwich, London, SE27 | £ 1,750,000 | BUY | Unknown | 0.12 KM |
Nearby Properties
| Address | Price | Distance |
|---|---|---|
| 51 Idmiston Road | £ 843,000 | 0.08 KM |
| 57b Idmiston Road | £ 212,000 | 0.08 KM |
| 57a Idmiston Road | £ 233,000 | 0.08 KM |
| 57c Idmiston Road | £ 480,000 | 0.08 KM |
| 57d Idmiston Road | £ 217,500 | 0.08 KM |