Gordon Road, Gillingham
By Greenleaf Property Services Ltd
£ 190,000
Reviews
3 out of 5 stars
Greenleaf Property Services Ltd says ..
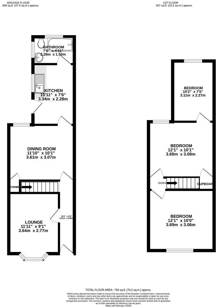
GREENLEAF PROPERTY SERVICES are delighted to introduce this three bedroom house to the market, in a sought after residential location in Gillingham, Kent, and available with NO ONGOING CHAIN. Whilst in need modernising, this property boasts three bedrooms ( third of the second), two reception roo...
Property Oracle says ..
This is a two-bedroom terraced house on Gordon Road, Gillingham South, presenting a renovation opportunity. While the property requires extensive work to modernize its interior, it benefits from a garden and proximity to local amenities, schools, and transportation links. The asking price of £190,000 reflects the condition and offers potential for adding value through refurbishment.
Therefore, we give this property 6 / 10. *Disclaimer: This is our option and does constitute a recommendation or financial advice. Do your own research. *
- Price
- 7
- Condition
- 3
- Location
- 7
- Land
- 7
- Bedrooms
- 2
- Bathrooms
- 1
- Sqft (est)
- 666.89
The heatmap indicates the level of crime in the area. The color of the heatmap indicates the crime severity and recency.
Metrics Year-on-Year
- Average area value
- 253,389.00 £Increased by 1.64 %
- Est sale value
- 228,743.27 £Increased by 26.10 %
- Average area rental value
- 981.00 £/moDecreased by 6.12 %
- Est letting value
- 666.89 £/moUnchanged by 0.00 %
- Est rental Yield
- 4.65 %Decreased by 7.55 %
- Crime Rate
- 16.00 %Unchanged by 0.00 %
Agent Activity
Greenleaf Property Services Ltd created the listing.
Nearby Schools
| Name | Type | Ofsted | Distance |
|---|---|---|---|
| Barnsole Primary School | Academy Converter | 0.23 KM | |
| The Gfc School | Other Independent School | Good | 0.39 KM |
| St Mary'S Catholic Primary School | Voluntary Aided School | Good | 0.53 KM |
| Saxon Way Primary School And Children'S Centre | Children's Centre | 0.70 KM | |
| Saxon Way Primary School | Academy Sponsor Led | Good | 0.70 KM |
Images
Nearby Streets
| Name | Average Price | Average Sqft | Distance |
|---|---|---|---|
| Redfern Avenue | £ 300,000 | 0 | 0.00 KM |
| Barnsole Road | £ 0 | 0 | 0.00 KM |
| School Avenue | £ 0 | 0 | 0.00 KM |
| GB38 | £ 0 | 0 | 0.00 KM |
| Gillingham Road | £ 0 | 0 | 0.00 KM |
Nearby Transport
| Name | NLC | TLC | Distance |
|---|---|---|---|
| Gillingham (Kent) | 5169 | GLM | 0.98 KM |
| Chatham | 5199 | CTM | 4.15 KM |
| Rochester | 5203 | RTR | 5.33 KM |
| Rainham (Kent) | 5177 | RAI | 6.18 KM |
| Strood (Kent) | 5191 | SOO | 6.58 KM |
Nearby Listings
| Address | Price | Type | Score | Distance |
|---|---|---|---|---|
| Gordon Road, Gillingham | £ 190,000 | BUY | 6 / 10 | 0.00 KM |
| Gordon Road, Gillingham, Kent, ME7 | £ 325,000 | BUY | 7 / 10 | 0.01 KM |
| Gordon Road, Gillingham, | £ 270,000 | BUY | 6 / 10 | 0.03 KM |
| Gordon Road, Gillingham, Kent, ME7 | £ 250,000 | BUY | 7 / 10 | 0.03 KM |
| Gordon Road, Gillingham, ME7 | £ 220,000 | BUY | 7 / 10 | 0.06 KM |
Nearby Properties
| Address | Price | Distance |
|---|---|---|
| 82 Gordon Road | £ 124,000 | 0.06 KM |
| 74 Gordon Road | £ 115,500 | 0.06 KM |
| 12 Gordon Road | £ 148,500 | 0.06 KM |
| 43 Priestfield Road | £ 113,000 | 0.07 KM |
| 69 Priestfield Road | £ 120,000 | 0.07 KM |