Rutland Gardens, East Croydon, Croydon, CR0
By Foxtons
£ 685,000
Reviews
3 out of 5 stars
Foxtons says ..
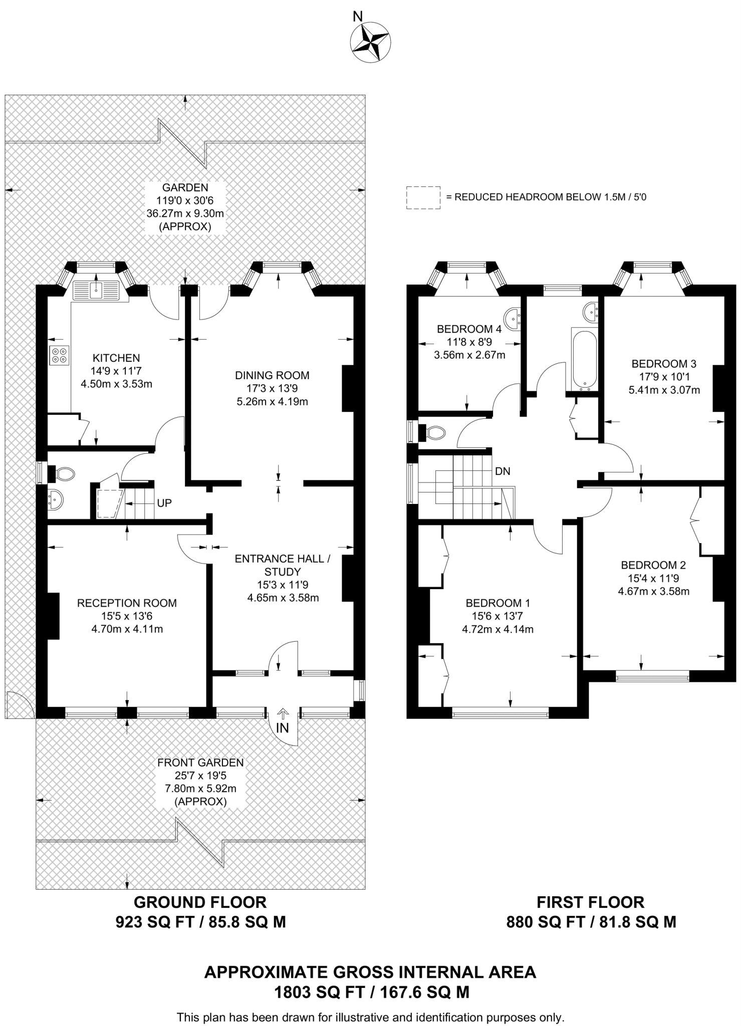
Boasting an ample living throughout, this incredible 4 bedroom house offers an elegant reception room, spacious dining room, 4 well-sized bedrooms and a lovely garden.
Property Oracle says ..
This four-bedroom semi-detached house in Rutland Gardens, East Croydon offers a substantial amount of living space at approximately 1,803 sqft, complemented by a generous garden. Its location is attractive, benefiting from proximity to Lloyd Park and well-regarded schools, along with easy access to East Croydon station. The property’s interior displays a traditional style, which may appeal to some but could require modernisation to attract a wider buyer base. The photographs reveal a home that is well maintained, but it would benefit from updating to reflect contemporary tastes. The property’s price point sits within the range of similar properties in the area, but comparative analysis is hindered by incomplete data on nearby sales, leaving some uncertainty about the level of value for money this property represents. Potential buyers should carefully consider their renovation budgets and preferences when assessing this property’s suitability. Overall, this property presents a solid offering with considerable potential, however, buyers should also factor in the potential costs of refurbishment.
Therefore, we give this property 6 / 10. *Disclaimer: This is our option and does constitute a recommendation or financial advice. Do your own research. *
- Price
- 7
- Condition
- 6
- Location
- 7
- Land
- 7
- Bedrooms
- 4
- Bathrooms
- 1
- Sqft (est)
- 1,803.00
The heatmap indicates the level of crime in the area. The color of the heatmap indicates the crime severity and recency.
Metrics Year-on-Year
- Average area value
- 1,268,750.00 £Increased by 29.81 %
- Est sale value
- 2,857,755.00 £Increased by 115.35 %
- Average area rental value
- 2,317.00 £/moIncreased by 19.00 %
- Est letting value
- 3,606.00 £/moIncreased by 100.00 %
- Est rental Yield
- 2.19 %Decreased by 8.37 %
- Crime Rate
- 1.00 %Unchanged by 0.00 %
Agent Activity
Foxtons created the listing.
Nearby Schools
| Name | Type | Ofsted | Distance |
|---|---|---|---|
| Archbishop Tenison'S Cofe High School | Voluntary Aided School | Good | 0.55 KM |
| Cambridge Tutors College | Other Independent School | 0.72 KM | |
| Rutherford School | Other Independent Special School | Good | 0.76 KM |
| Park Hill Junior School | Academy Converter | Good | 0.78 KM |
| Park Hill Infant School | Community School | Outstanding | 0.81 KM |
Images
Nearby Streets
| Name | Average Price | Average Sqft | Distance |
|---|---|---|---|
| Coombe Avenue | £ 0 | 0 | 0.00 KM |
| Hunters Way | £ 0 | 0 | 0.00 KM |
| Ballater Road | £ 780,000 | 0 | 0.00 KM |
| Siskin Court | £ 0 | 0 | 0.00 KM |
| Leafy Way | £ 325,000 | 0 | 0.00 KM |
Nearby Transport
| Name | NLC | TLC | Distance |
|---|---|---|---|
| South Croydon | 5410 | SCY | 1.01 KM |
| East Croydon | 5355 | ECR | 1.45 KM |
| Sanderstead | 5433 | SNR | 2.14 KM |
| West Croydon | 5411 | WCY | 2.47 KM |
| Purley Oaks | 5430 | PUO | 2.57 KM |
Nearby Listings
| Address | Price | Type | Score | Distance |
|---|---|---|---|---|
| Rutland Gardens, East Croydon, Croydon, CR0 | £ 685,000 | BUY | 6 / 10 | 0.00 KM |
| Rutland Gardens, East Croydon, Croydon, CR0 | £ 685,000 | BUY | 6 / 10 | 0.00 KM |
| Coombe Road, Croydon | £ 900,000 | BUY | 7 / 10 | 0.05 KM |
| Caroline Close, Croydon | £ 600,000 | BUY | 7 / 10 | 0.10 KM |
| Hunters Way, Croydon, Surrey | £ 625,000 | BUY | 8 / 10 | 0.16 KM |
Nearby Properties
| Address | Price | Distance |
|---|---|---|
| 14 Rutland Gardens | £ 692,500 | 0.02 KM |
| 12 Rutland Gardens | £ 770,000 | 0.02 KM |
| 1 Rutland Gardens | £ 200,000 | 0.02 KM |
| 6 Rutland Gardens | £ 640,000 | 0.02 KM |
| 181 Coombe Road | £ 420,000 | 0.04 KM |