Cottingham Street, Goole
PA

Cottingham Street, Goole

By Park Row Properties

£ 240,000

Reviews

2 out of 5 stars

Park Row Properties says ..

DEVELOPMENT OPPORTUNITY!

Property Oracle says ..

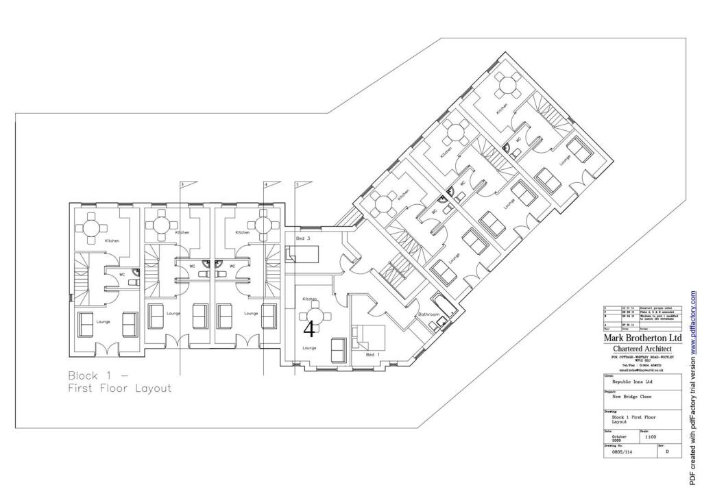
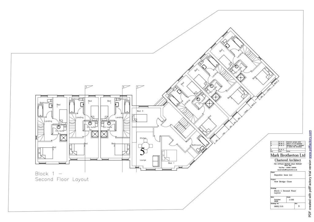
This listing presents a development opportunity on Cottingham Street in Goole, East Riding of Yorkshire. The sale includes a sizable plot of land, as evidenced by the detailed site plans. The plans show a proposed development including multiple residential units, ranging from terraced houses to apartments. The absence of a physical structure means the current property condition is nonexistent. The location benefits from the proximity of Goole train station, providing rail connections to various locations. Nearby schools and other amenities are within reasonable distance. However, a critical aspect lacking is the precise square footage and detailed specifications of the proposed units. This absence, combined with the high list price relative to nearby comparable properties, introduces uncertainty. While the land value is significant, the project’s ultimate profitability hinges on the successful completion of construction and the favorable market reception of the developed properties. A detailed cost-benefit analysis would be necessary to fully evaluate the investment potential of the property at the listed price. Potential buyers should factor in construction, planning permissions, and other associated development costs, to adequately gauge the financial viability. Buyers should exercise due diligence to assess accurate square footage and total costs before committing to the purchase.

Therefore, we give this property 5 / 10. *Disclaimer: This is our option and does constitute a recommendation or financial advice. Do your own research. *

Price
4
Condition
1
Location
7
Land
8
Bedrooms
0
Bathrooms
0

The heatmap indicates the level of crime in the area. The color of the heatmap indicates the crime severity and recency.

Metrics Year-on-Year

Average area value
181,556.00 £
Increased by 4.49 %
from 173,750.00 £
Average area rental value
683.00 £/mo
Increased by 6.72 %
from 640.00 £/mo
Est rental Yield
4.51 %
Increased by 2.04 %
from 4.42 %
Crime Rate
18.00 %
Unchanged by 0.00 %
from 18.00 %

Agent Activity

  • Park Row Properties created the listing.

Nearby Schools

NameTypeOfstedDistance
Sure Start Children'S Centre Goole (Marshlands Old Goole)Children's Centre0.80 KM
Marshlands Primary SchoolCommunity SchoolGood0.81 KM
St Joseph'S Catholic Primary SchoolAcademy Converter1.52 KM
Boothferry Primary SchoolCommunity SchoolGood1.59 KM
Goole AcademyAcademy Converter1.80 KM

Images

Amended Levels Information For Both Blocks Block 1 Front Elevation Block 1 Rear Elevation Block 1 Side Elevation Block 1 Layouts Block 1 Ground Floor Layouts Block 1 First Floor Layouts Block 1 Second Floor Layouts Block 2 Ground And First Floor Layout Block 2 Second Floor And Roof Plan Layout Existing Site Layout And Location Block 2 Elevations Block 2 Elevations

Nearby Streets

NameAverage PriceAverage SqftDistance
Don Street £ 265,00000.00 KM
Coronation Street £ 000.00 KM
Wesley Square £ 000.00 KM
East Gate £ 000.00 KM
Sutton Street £ 000.00 KM

Nearby Transport

NameNLCTLCDistance
Goole8025GOO1.11 KM
Saltmarshe8033SAM7.77 KM
Howden8071HOW7.91 KM
Rawcliffe8031RWC9.60 KM

Nearby Listings

AddressPriceTypeScoreDistance
Cottingham Street, Goole £ 240,000BUY5 / 100.00 KM
Cottingham Street, Old Goole, DN14 5RR £ 95,000BUY6 / 100.03 KM
Kingston Street, Goole, DN14 £ 70,000BUY6 / 100.09 KM
Heber Street, Goole, DN14 5 £ 73,000BUY6 / 100.11 KM
Heber Street, Goole £ 90,000BUY6 / 100.14 KM

Nearby Properties

AddressPriceDistance
3 Cottingham Street £ 45,0000.03 KM
21 Cottingham Street £ 85,0000.03 KM
7 Cottingham Street £ 59,0000.03 KM
27 Cottingham Street £ 66,0000.03 KM
19 Cottingham Street £ 75,0000.03 KM