Parks Estate Agents says ..
Offered to the market with no onward chain, this two-bedroom apartment is located within a well-kept development in ever popular BS5, well situated for accessing Fishponds, Redfield and commuting into the city centre.The property boasts a spacious and light-filled open-plan kitchen/living area, i...
Property Oracle says ..
This property is a 2-bedroom flat located in Eastville, Bristol. The flat itself is in good condition, appearing clean and well-maintained in the provided photographs. The kitchen and bathroom are modern and functional. While the images show some personal belongings, there is no indication of significant wear and tear or the need for renovation. The location benefits from its proximity to several schools, including Speedwell Nursery School (Outstanding Ofsted rating) and Chester Park Junior School (Good Ofsted rating), both within a kilometer. Several train stations are also within a reasonable distance, providing good transport links. However, the property is a flat and does not include a garden, which may be a drawback for some buyers. The list price of £230,000 is lower than the average price for the area (£360,351), and considerably lower than nearby comparable properties. However, it is important to note that the average price per square foot in the area is £344, and this property is smaller than average. Considering the condition, location, and lack of outdoor space, the price seems reasonable, potentially even a good value for money, particularly for first-time buyers or investors.
Therefore, we give this property 6 / 10. *Disclaimer: This is our option and does constitute a recommendation or financial advice. Do your own research. *
- Price
- 8
- Condition
- 8
- Location
- 7
- Land
- 3
- Bedrooms
- 2
- Bathrooms
- 1
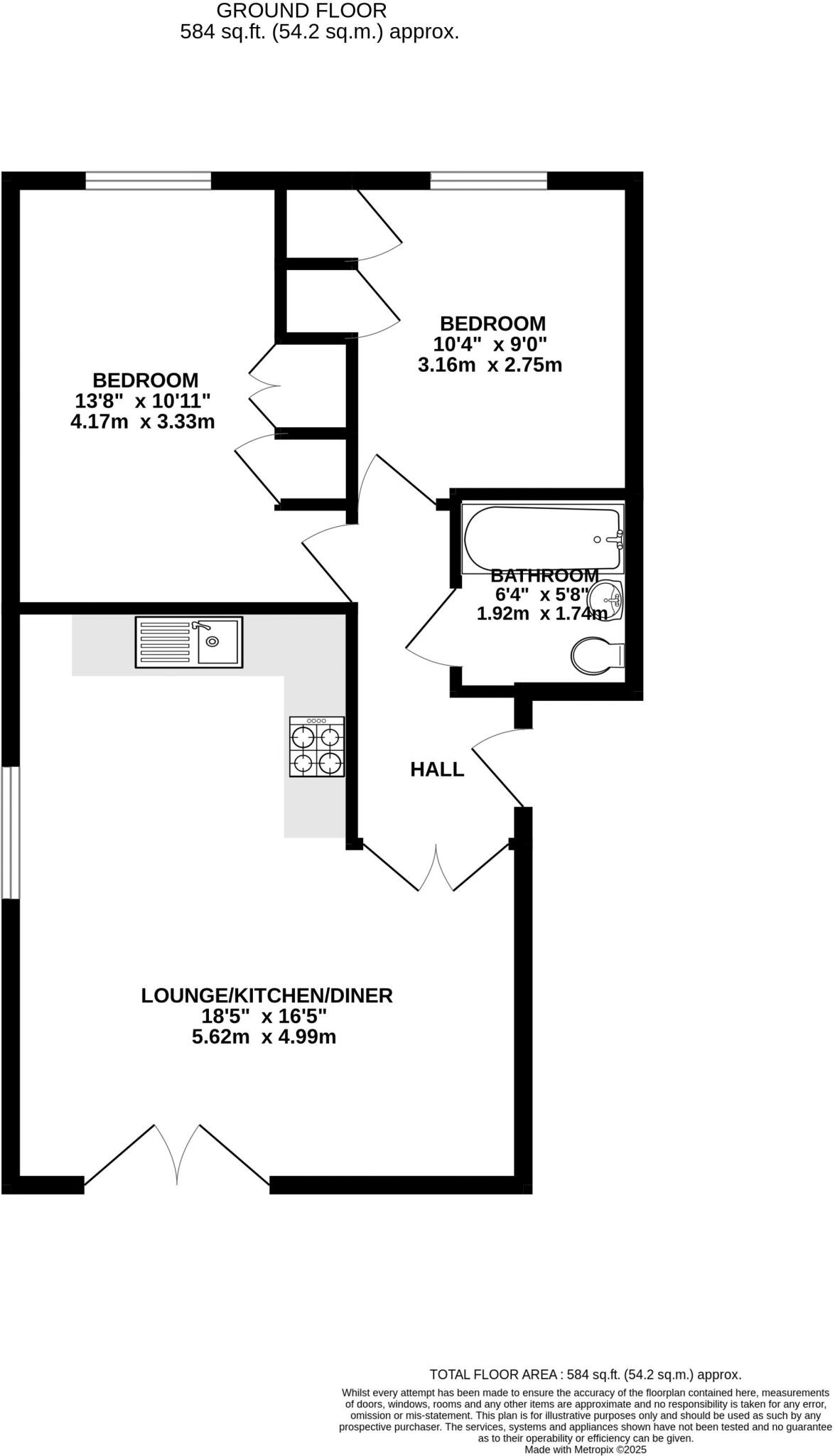
- Sqft (est)
- 584.00
- Lot (est)
- 584.00
The heatmap indicates the level of crime in the area. The color of the heatmap indicates the crime severity and recency.
Metrics Year-on-Year
- Average area value
- 347,495.00 £Increased by 4.36 %
- Est sale value
- 258,128.00 £Increased by 12.18 %
- Average area rental value
- 1,189.00 £/moDecreased by 23.64 %
- Est letting value
- 584.00 £/moUnchanged by 0.00 %
- Est rental Yield
- 4.11 %Decreased by 26.74 %
- Crime Rate
- 6.00 %Unchanged by 0.00 %
Agent Activity
Parks Estate Agents created the listing.
Nearby Schools
| Name | Type | Ofsted | Distance |
|---|---|---|---|
| Speedwell Nursery School | Local Authority Nursery School | Outstanding | 0.44 KM |
| Speedwell Nursery School & Children'S Centre | Children's Centre | 0.48 KM | |
| Chester Park Junior School | Community School | Good | 0.60 KM |
| Bristol Brunel Academy | Academy Sponsor Led | Good | 0.79 KM |
| Chester Park Infant School | Community School | Good | 0.81 KM |
Images
Nearby Streets
| Name | Average Price | Average Sqft | Distance |
|---|---|---|---|
| Fernhurst Road | £ 0 | 0 | 0.00 KM |
| Mallard Close | £ 250,000 | 0 | 0.00 KM |
| Deans Drive | £ 0 | 0 | 0.00 KM |
| Harewood Road | £ 240,000 | 0 | 0.00 KM |
| Ventnor Road | £ 0 | 0 | 0.00 KM |
Nearby Transport
| Name | NLC | TLC | Distance |
|---|---|---|---|
| Lawrence Hill | 3225 | LWH | 3.43 KM |
| Stapleton Road | 3250 | SRD | 3.43 KM |
| Filton Abbey Wood | 3235 | FIT | 5.06 KM |
| Bristol Parkway | 3230 | BPW | 5.11 KM |
| Bristol Temple Meads | 3231 | BRI | 5.53 KM |
Nearby Listings
| Address | Price | Type | Score | Distance |
|---|---|---|---|---|
| Parade Court, Bristol | £ 230,000 | BUY | 6 / 10 | 0.00 KM |
| Parade Court, Speedwell, Bristol, BS5 | £ 375,000 | BUY | 6 / 10 | 0.00 KM |
| Parade Court, Bristol | £ 325,000 | BUY | 7 / 10 | 0.00 KM |
| Parade Court, Speedwell, Bristol, BS5 | £ 220,000 | BUY | Unknown | 0.00 KM |
| Parade Court, Bristol | £ 240,000 | BUY | 6 / 10 | 0.01 KM |
Nearby Properties
| Address | Price | Distance |
|---|---|---|
| 7 Parade Court | £ 179,000 | 0.00 KM |
| 42 Parade Court | £ 170,000 | 0.00 KM |
| 33 Parade Court | £ 107,000 | 0.00 KM |
| 70 Parade Court | £ 350,000 | 0.00 KM |
| 28 Parade Court | £ 175,000 | 0.00 KM |