EL
Peary Place, London
By Elms Estates
£ 1,100,000
Elms Estates says ..
Elms Estates are absolutely delighted to be able to bring to the market For Sale this RARE opportunity to purchase and redevelop (stpp) this amazing property situated within the cobbled mews of Peary Place. Peary Place is situated in an ideal location and offers excellent access to both...
- Bedrooms
- 3
- Bathrooms
- 2
The heatmap indicates the level of crime in the area. The color of the heatmap indicates the crime severity and recency.
Metrics Year-on-Year
- Average area value
- 567,500.00 £Increased by 11.46 %
- Average area rental value
- 2,411.00 £/moIncreased by 8.90 %
- Est rental Yield
- 5.10 %Decreased by 2.30 %
- Crime Rate
- 5.00 %Unchanged by 0.00 %
from 509,167.00 £
from 2,214.00 £/mo
from 5.22 %
from 5.00 %
Agent Activity
Elms Estates created the listing.
Nearby Schools
| Name | Type | Ofsted | Distance |
|---|---|---|---|
| Globe Primary School | Community School | Outstanding | 0.12 KM |
| Bonner Primary School | Community School | Good | 0.24 KM |
| Bangabandhu Primary School | Community School | Good | 0.33 KM |
| Morpeth School | Community School | Outstanding | 0.38 KM |
| Rachel Keeling Nursery School | Local Authority Nursery School | Outstanding | 0.39 KM |
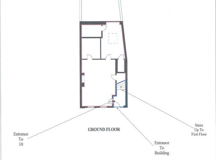
Images
Nearby Streets
| Name | Average Price | Average Sqft | Distance |
|---|---|---|---|
| Globe Terrace | £ 500,000 | 0 | 0.00 KM |
| Butler Street | £ 0 | 0 | 0.00 KM |
| Elsden Mews | £ 0 | 0 | 0.00 KM |
| Helen's Place | £ 0 | 0 | 0.00 KM |
| Bonner Road | £ 0 | 0 | 0.00 KM |
Nearby Transport
| Name | NLC | TLC | Distance |
|---|---|---|---|
| Cambridge Heath | 6962 | CBH | 0.84 KM |
| Bethnal Green Rail | 6961 | BET | 1.12 KM |
| Whitechapel | 4935 | ZLW | 1.44 KM |
| London Fields | 6966 | LOF | 1.62 KM |
| Shadwell | 1082 | SDE | 2.04 KM |
Nearby Listings
| Address | Price | Type | Score | Distance |
|---|---|---|---|---|
| Peary Place, London | £ 1,100,000 | BUY | Unknown | 0.00 KM |
| Peary Place, London | £ 600,000 | BUY | 5 / 10 | 0.01 KM |
| Peary Place, London | £ 425,000 | BUY | 5 / 10 | 0.02 KM |
| Mendip Houses, Welwyn Street, London, E2 | £ 450,000 | BUY | 5 / 10 | 0.04 KM |
| Mendip Houses, Welwyn Street, Bethnal Green, E2 | £ 395,000 | BUY | Unknown | 0.04 KM |
Nearby Properties
| Address | Price | Distance |
|---|---|---|
| 11 Brierly Gardens | £ 334,500 | 0.10 KM |
| 5 Brierly Gardens | £ 249,495 | 0.10 KM |
| 13 Brierly Gardens | £ 230,000 | 0.10 KM |
| 44 Brierly Gardens | £ 192,000 | 0.10 KM |
| 18 Brierly Gardens | £ 192,000 | 0.10 KM |