Dart & Partners says ..
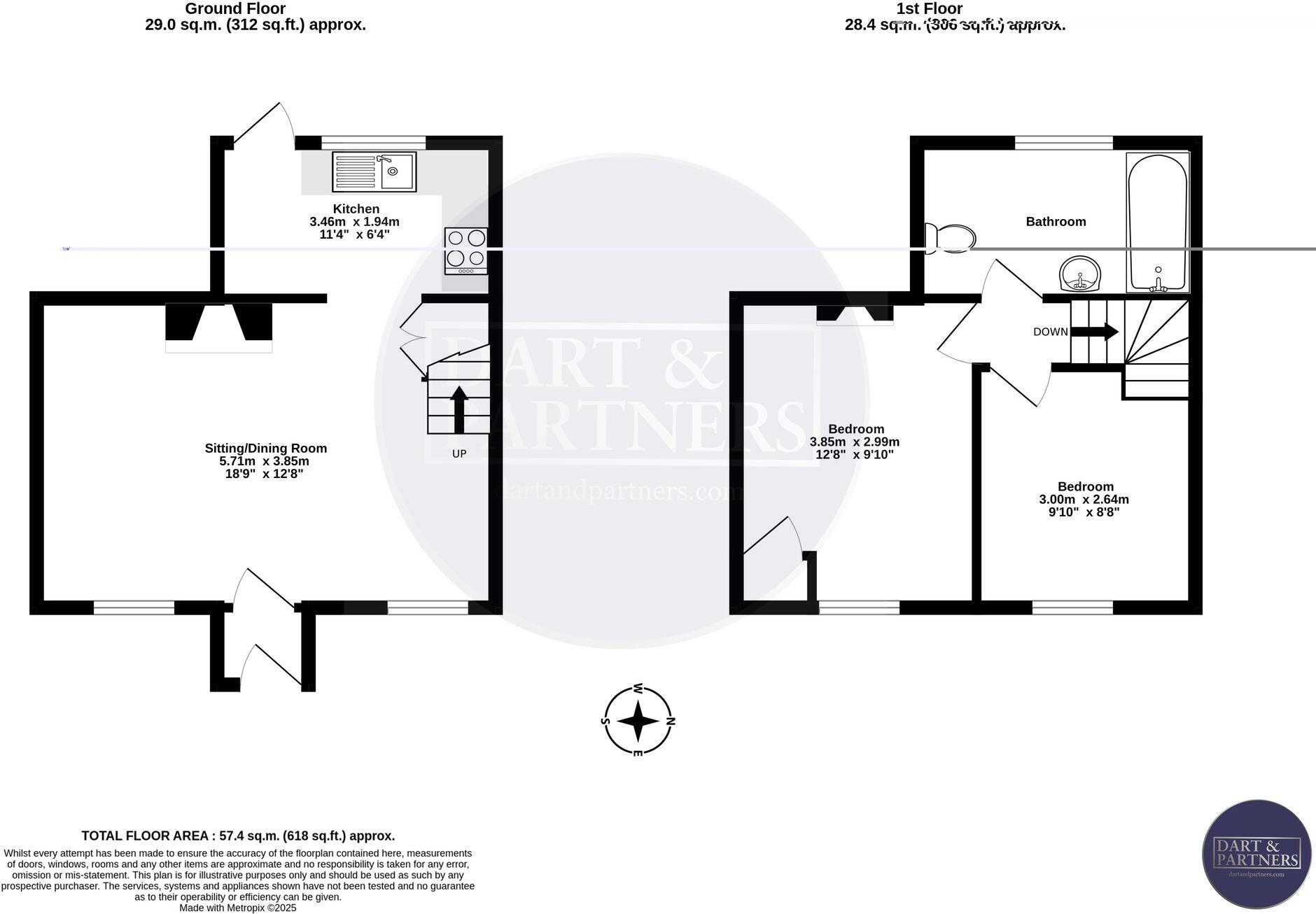
Dart & Partners are delighted to bring to the market this very well presented two double bedroom town centre cottage.
Property Oracle says ..
Therefore, we give this property 7 / 10. *Disclaimer: This is our option and does constitute a recommendation or financial advice. Do your own research. *
- Price
- 8
- Condition
- 7
- Location
- 7
- Land
- 6
- Bedrooms
- 2
- Bathrooms
- 1
The heatmap indicates the level of crime in the area. The color of the heatmap indicates the crime severity and recency.
Metrics Year-on-Year
- Average area value
- 384,500.00 £Increased by 11.80 %
- Average area rental value
- 1,125.00 £/moIncreased by 0.45 %
- Est rental Yield
- 3.51 %Decreased by 10.23 %
- Crime Rate
- 58.00 %Unchanged by 0.00 %
from 343,904.00 £
from 1,120.00 £/mo
from 3.91 %
from 58.00 %
Agent Activity
Dart & Partners created the listing.
Nearby Schools
| Name | Type | Ofsted | Distance |
|---|---|---|---|
| Education And Care (Devon) Ltd At 7-9 Oak Park Villas | Miscellaneous | 0.43 KM | |
| Oakwood Court College (Phoenix Learning Care Ltd) | Special Post 16 Institution | Good | 0.44 KM |
| Dawlish College | Academy Converter | 0.78 KM | |
| Gatehouse Primary Academy | Academy Sponsor Led | Serious Weaknesses | 0.84 KM |
| Chances Educational Support Services | Other Independent School | Good | 1.04 KM |
Images
Nearby Streets
| Name | Average Price | Average Sqft | Distance |
|---|---|---|---|
| Priory Road | £ 500,000 | 0 | 0.00 KM |
| Brunswick Place | £ 0 | 0 | 0.00 KM |
| Orchard Close | £ 300,000 | 0 | 0.00 KM |
| Wallace Avenue | £ 425,000 | 0 | 0.00 KM |
| Sutton Close | £ 390,000 | 0 | 0.00 KM |
Nearby Transport
| Name | NLC | TLC | Distance |
|---|---|---|---|
| Dawlish | 3408 | DWL | 0.47 KM |
| Dawlish Warren | 3409 | DWW | 3.34 KM |
| Teignmouth | 3430 | TGM | 4.74 KM |
| Starcross | 3413 | SCS | 5.59 KM |
| Exmouth | 5756 | EXM | 7.39 KM |
Nearby Listings
| Address | Price | Type | Score | Distance |
|---|---|---|---|---|
| Priory Hill, Dawlish, EX7 | £ 210,000 | BUY | 7 / 10 | 0.00 KM |
| Priory Hill, DAWLISH, Devon, EX7 | £ 210,000 | BUY | 6 / 10 | 0.01 KM |
| Priory Hill, Dawlish, EX7 | £ 200,000 | BUY | 6 / 10 | 0.01 KM |
| High Street, Dawlish, EX7 | £ 190,000 | BUY | 6 / 10 | 0.04 KM |
| Belvedere Court, Dawlish, EX7 | £ 62,500 | BUY | Unknown | 0.05 KM |
Nearby Properties
| Address | Price | Distance |
|---|---|---|
| 6 Carlton Terrace | £ 147,000 | 0.04 KM |
| 4 Carlton Terrace | £ 105,000 | 0.04 KM |
| 5 Carlton Terrace | £ 120,000 | 0.04 KM |
| 3 Carlton Terrace | £ 153,000 | 0.04 KM |
| 1 Carlton Terrace | £ 180,000 | 0.04 KM |