LL Estates says ..
This upgraded 3-bedroom semi-detached house on Llys Brenig, Rhyl, is an absolute must view! It features a bright lounge, modern grey gloss kitchen with French doors to the rear garden, three well-presented bedrooms, a renewed bathroom, garage, ample parking, and a private corner plot with an o...
Property Oracle says ..
This property is a 3-bedroom semi-detached house located in Rhyl, Denbighshire. The house appears to be in good condition and has been recently modernised, as evidenced by the photos. It benefits from a small, enclosed rear garden. The location is relatively close to several schools and is within a reasonable distance of Rhyl train station. However, the plot size is very small. The list price of £190,000 is slightly above the average price per square foot for the area, but comparable properties in the vicinity have sold for similar prices. More information on the property size would help to determine if the asking price is justified.
Therefore, we give this property 6 / 10. *Disclaimer: This is our option and does constitute a recommendation or financial advice. Do your own research. *
- Price
- 6
- Condition
- 8
- Location
- 7
- Land
- 3
- Bedrooms
- 3
- Bathrooms
- 1
- Sqft (est)
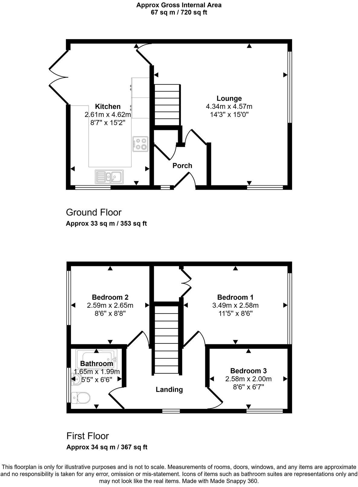
- 721.18
The heatmap indicates the level of crime in the area. The color of the heatmap indicates the crime severity and recency.
Metrics Year-on-Year
- Average area value
- 326,418.00 £Decreased by 0.78 %
- Est sale value
- 240,874.12 £Increased by 1.52 %
- Average area rental value
- 1,459.00 £/moIncreased by 29.46 %
- Est letting value
- 721.18 £/moUnchanged by 0.00 %
- Est rental Yield
- 5.36 %Increased by 30.41 %
- Crime Rate
- 5.00 %Unchanged by 0.00 %
Agent Activity
LL Estates created the listing.
Nearby Schools
| Name | Type | Ofsted | Distance |
|---|---|---|---|
| Bryn Hedydd C.P. School | Welsh Establishment | 0.59 KM | |
| Ysgol Llywelyn | Welsh Establishment | 1.19 KM | |
| Rhyl High School | Welsh Establishment | 1.33 KM | |
| Ysgol Dewi Sant | Welsh Establishment | 1.86 KM | |
| Christ The Word School | Welsh Establishment | 1.92 KM |
Images
Nearby Streets
| Name | Average Price | Average Sqft | Distance |
|---|---|---|---|
| Llys-yr-Wyddfa | £ 0 | 0 | 0.00 KM |
| Llys-y-Tywysog | £ 175,000 | 0 | 0.00 KM |
| Ash Court | £ 225,000 | 0 | 0.00 KM |
| Hazel Court | £ 280,000 | 0 | 0.00 KM |
| Magnolia Court | £ 0 | 0 | 0.00 KM |
Nearby Transport
| Name | NLC | TLC | Distance |
|---|---|---|---|
| Rhyl | 2461 | RHL | 2.97 KM |
| Prestatyn | 2521 | PRT | 6.32 KM |
Nearby Listings
| Address | Price | Type | Score | Distance |
|---|---|---|---|---|
| Llys Brenig, Rhyl | £ 190,000 | BUY | 6 / 10 | 0.00 KM |
| Ffordd Anwyl, Rhyl, LL18 | £ 318,500 | BUY | 7 / 10 | 0.09 KM |
| Alder Court, Rhyl | £ 310,000 | BUY | 7 / 10 | 0.14 KM |
| Lon Bedw, Rhyl | £ 270,000 | BUY | 7 / 10 | 0.15 KM |
| Llys Miaren, Rhyl | £ 150,000 | BUY | 7 / 10 | 0.15 KM |
Nearby Properties
| Address | Price | Distance |
|---|---|---|
| 35 Llys Brenig | £ 147,500 | 0.01 KM |
| 50 Llys Brenig | £ 159,950 | 0.01 KM |
| 33 Llys Brenig | £ 165,000 | 0.01 KM |
| 25 Llys Brenig | £ 123,000 | 0.01 KM |
| 62 Llys Brenig | £ 196,000 | 0.02 KM |