eXp UK says ..
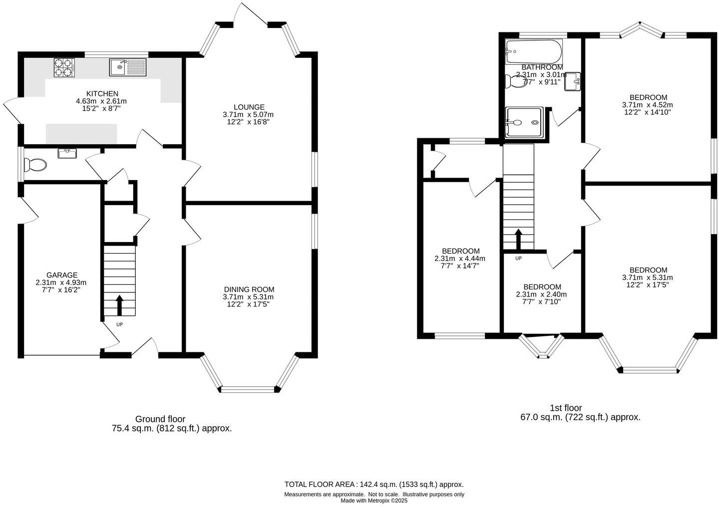
QUOTE REFERENCE: AG0324 A handsome detached home located on one of Wallington’s most desirable residential roads. This well-presented property blends period character with generous, light-filled spaces and offers excellent potential to extend or reconfigure (subject to the usual c...
Property Oracle says ..
Therefore, we give this property 7 / 10. *Disclaimer: This is our option and does constitute a recommendation or financial advice. Do your own research. *
- Price
- 6
- Condition
- 8
- Location
- 7
- Land
- 8
- Bedrooms
- 4
- Bathrooms
- 1
- Sqft (est)
- 1,532.78
The heatmap indicates the level of crime in the area. The color of the heatmap indicates the crime severity and recency.
Metrics Year-on-Year
- Average area value
- 600,000.00 £Increased by 13.63 %
- Est sale value
- 1,267,609.06 £Increased by 105.21 %
- Average area rental value
- 1,465.00 £/moDecreased by 31.54 %
- Est letting value
- 3,065.56 £/moIncreased by 100.00 %
- Est rental Yield
- 2.93 %Decreased by 39.71 %
- Crime Rate
- 0.00 %
from 528,042.00 £
from 617,710.34 £
from 2,140.00 £/mo
from 1,532.78 £/mo
from 4.86 %
from 0.00 %
Agent Activity
eXp UK created the listing.
Nearby Schools
| Name | Type | Ofsted | Distance |
|---|---|---|---|
| The John Fisher School | Voluntary Aided School | Good | 0.64 KM |
| Foresters Primary School | Foundation School | Good | 0.73 KM |
| Amy Johnson Children'S Centre (Clockhouse Roundshaw) | Children's Centre | 0.85 KM | |
| Laleham Lea School | Other Independent School | 0.87 KM | |
| Wallington Primary Academy | Academy Sponsor Led | 0.91 KM |
Images
Nearby Streets
| Name | Average Price | Average Sqft | Distance |
|---|---|---|---|
| Linden Way | £ 0 | 0 | 0.00 KM |
| Church Road | £ 0 | 0 | 0.00 KM |
| Bristol Close | £ 290,000 | 0 | 0.00 KM |
| The Ridge | £ 0 | 0 | 0.00 KM |
| Farm Close | £ 850,000 | 0 | 0.00 KM |
Nearby Transport
| Name | NLC | TLC | Distance |
|---|---|---|---|
| Wallington | 5394 | WLT | 1.86 KM |
| Reedham (London) | 5431 | RHM | 2.61 KM |
| Purley | 5379 | PUR | 2.96 KM |
| Waddon | 5392 | WDO | 3.01 KM |
| Coulsdon Town | 5382 | CDN | 3.10 KM |
Nearby Listings
| Address | Price | Type | Score | Distance |
|---|---|---|---|---|
| Carleton Avenue, SM6 9LW | £ 950,000 | BUY | 7 / 10 | 0.00 KM |
| Carleton Avenue, Wallington | £ 825,000 | BUY | 7 / 10 | 0.01 KM |
| Carleton Avenue, Wallington | £ 775,000 | BUY | 7 / 10 | 0.01 KM |
| Carleton Avenue, South Wallington | £ 750,000 | BUY | 6 / 10 | 0.10 KM |
| Foresters Drive, South Wallington | £ 900,000 | BUY | 7 / 10 | 0.15 KM |
Nearby Properties
| Address | Price | Distance |
|---|---|---|
| 3 Carleton Avenue | £ 760,000 | 0.01 KM |
| 45 Carleton Avenue | £ 350,000 | 0.01 KM |
| 65 Carleton Avenue | £ 715,000 | 0.01 KM |
| 49 Carleton Avenue | £ 495,000 | 0.01 KM |
| 43 Carleton Avenue | £ 380,000 | 0.01 KM |