Russell Cope says ..
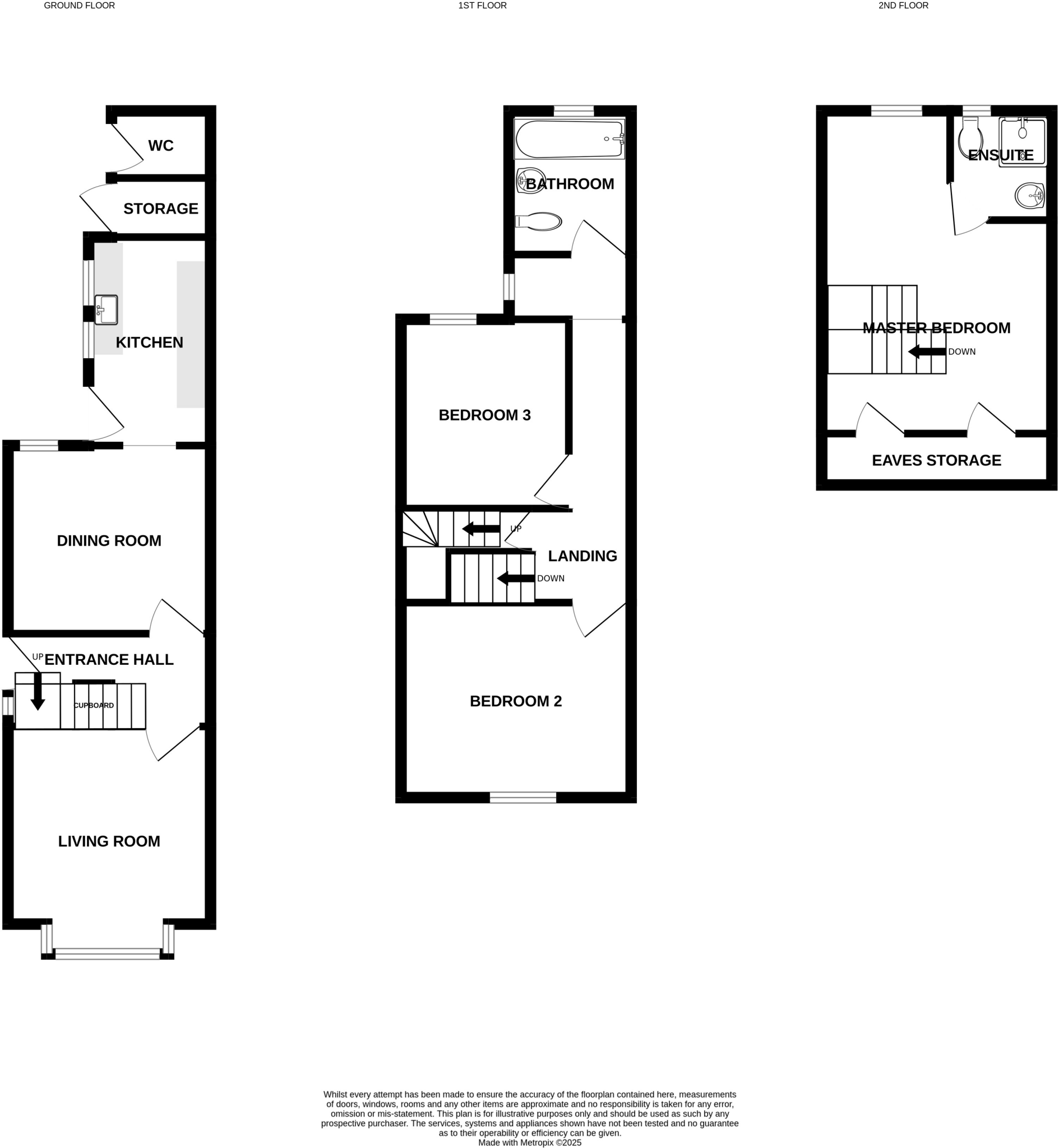
***SPACIOUS MID TERRACED HOME WITH LOTS OF CHARACTER***LOFT CONVERSION WITH MASTER BEDROOM & EN-SUITE***THREE DOUBLE BEDROOMS***CLOSE TO BEDWORTH TOWN CENTRE*** In brief the property comprises; entrance hall, two reception rooms, kitchen, two double bedrooms, and bathroom to the first floor, ...
Property Oracle says ..
This three-bedroom mid-terraced house located on Park Road in Bedworth, Warwickshire presents a comfortable and conveniently situated home. The property boasts a recently modernised kitchen and bathrooms, enhancing its appeal. The loft conversion adds a valuable extra bedroom with en-suite. The property benefits from its proximity to Bedworth town centre, providing easy access to local shops and amenities. The inclusion of a rear garden adds to the property’s livability, though some garden maintenance could improve the overall appeal. Nearby schools are another notable advantage for families. While precise plot size isn’t stated, the garden appears to be of modest size. Transport links via nearby train stations and bus routes provide connectivity to other areas. Overall, the property appears to represent a reasonable purchase in its current condition and considering similar nearby properties. While a larger garden or additional features may be desired by some, the property presents a functional and well-located family home.
Therefore, we give this property 6 / 10. *Disclaimer: This is our option and does constitute a recommendation or financial advice. Do your own research. *
- Price
- 7
- Condition
- 7
- Location
- 7
- Land
- 5
- Bedrooms
- 3
- Bathrooms
- 2
- Sqft (est)
- 1,000.00
The heatmap indicates the level of crime in the area. The color of the heatmap indicates the crime severity and recency.
Metrics Year-on-Year
- Average area value
- 411,094.00 £Increased by 15.33 %
- Est sale value
- 324,000.00 £Decreased by 10.99 %
- Average area rental value
- 1,035.00 £/moDecreased by 6.76 %
- Est letting value
- 0.00 £/moDecreased by 100.00 %
- Est rental Yield
- 3.02 %Decreased by 19.25 %
- Crime Rate
- 14.00 %Unchanged by 0.00 %
Agent Activity
Russell Cope marked this listing as sold.
Russell Cope created the listing.
Nearby Schools
| Name | Type | Ofsted | Distance |
|---|---|---|---|
| The Canons C Of E Primary School | Voluntary Aided School | Outstanding | 0.44 KM |
| Race Leys Infant School | Community School | Good | 0.70 KM |
| St Francis Catholic Academy | Academy Converter | Good | 0.84 KM |
| Race Leys Junior School | Academy Sponsor Led | Good | 0.89 KM |
| Exhall Cedars Infant School | Community School | Requires improvement | 0.99 KM |
Images
Nearby Streets
| Name | Average Price | Average Sqft | Distance |
|---|---|---|---|
| The Mews | £ 0 | 0 | 0.00 KM |
| Roadway Close | £ 0 | 0 | 0.00 KM |
| Gilbert Close | £ 0 | 0 | 0.00 KM |
| Croxhall Street | £ 0 | 0 | 0.00 KM |
| Hurst Road | £ 0 | 0 | 0.00 KM |
Nearby Transport
| Name | NLC | TLC | Distance |
|---|---|---|---|
| Bedworth | 1165 | BEH | 0.88 KM |
| Bermuda Park | 6543 | BEP | 2.71 KM |
| Coventry Arena | 7416 | CAA | 3.90 KM |
| Nuneaton | 1077 | NUN | 5.61 KM |
| Coventry | 1030 | COV | 9.51 KM |
Nearby Listings
| Address | Price | Type | Score | Distance |
|---|---|---|---|---|
| Park Road , Bedworth | £ 209,950 | BUY | 6 / 10 | 0.00 KM |
| Park Road, Bedworth, Warwickshire, CV12 | £ 250,000 | BUY | 6 / 10 | 0.04 KM |
| Park Road, Bedworth, CV12 8LF | £ 210,000 | BUY | Unknown | 0.04 KM |
| Park Road , Bedworth | £ 175,000 | BUY | Unknown | 0.05 KM |
| Park Road, Bedworth, Warwickshire, CV12 | £ 200,000 | BUY | Unknown | 0.06 KM |
Nearby Properties
| Address | Price | Distance |
|---|---|---|
| 47 Park Road | £ 123,500 | 0.00 KM |
| 73 Park Road | £ 129,995 | 0.00 KM |
| 21 Park Road | £ 106,000 | 0.00 KM |
| 71 Park Road | £ 80,000 | 0.00 KM |
| 35 Park Road | £ 156,000 | 0.00 KM |