Chancellors says ..
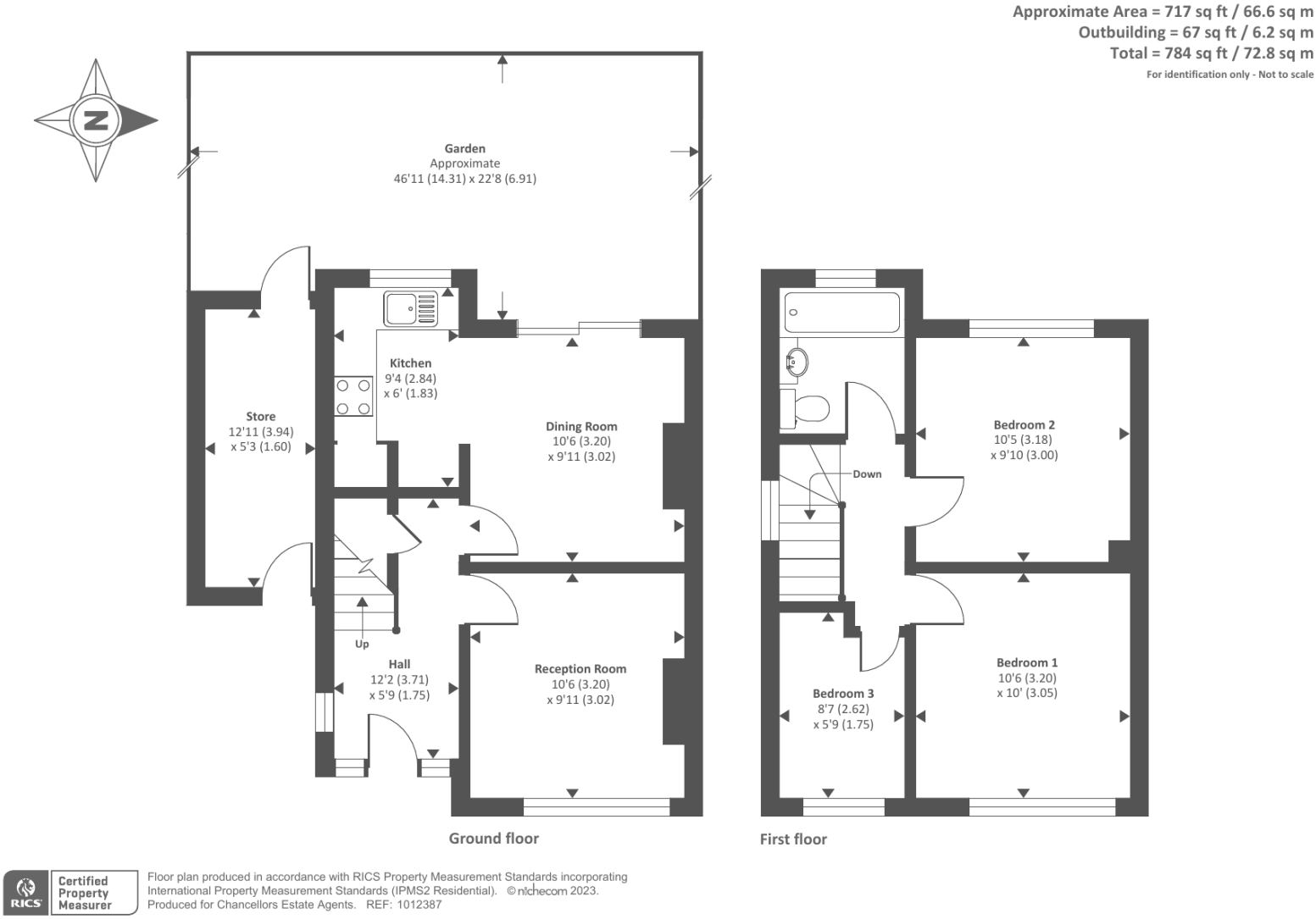
Set in South Reading, convenient for M4 and Reading University is this mature three bedroom semi detached home which has been improved by the current owners. Refitted kitchen / dining room overlooking garden. Sitting room, refitted first floor bathroom, off road parking and private garden
Property Oracle says ..
Therefore, we give this property 7 / 10. *Disclaimer: This is our option and does constitute a recommendation or financial advice. Do your own research. *
- Price
- 8
- Condition
- 7
- Location
- 7
- Land
- 7
- Bedrooms
- 3
- Bathrooms
- 1
- Sqft (est)
- 784.00
- Lot (est)
- 1,070.00
The heatmap indicates the level of crime in the area. The color of the heatmap indicates the crime severity and recency.
Metrics Year-on-Year
- Average area value
- 400,000.00 £Decreased by 2.33 %
- Est sale value
- 452,368.00 £Increased by 36.41 %
- Average area rental value
- 1,459.00 £/moDecreased by 17.71 %
- Est letting value
- 1,568.00 £/moIncreased by 100.00 %
- Est rental Yield
- 4.38 %Decreased by 15.77 %
- Crime Rate
- 9.00 %Unchanged by 0.00 %
from 409,545.00 £
from 331,632.00 £
from 1,773.00 £/mo
from 784.00 £/mo
from 5.20 %
from 9.00 %
Agent Activity
Chancellors created the listing.
Nearby Schools
| Name | Type | Ofsted | Distance |
|---|---|---|---|
| Whiteknights Primary School | Academy Converter | 0.37 KM | |
| Hillside Primary School | Community School | Good | 0.51 KM |
| Lower Earley | Children's Centre Linked Site | 0.51 KM | |
| Leighton Park School | Other Independent School | 0.61 KM | |
| Crosfields School | Other Independent School | 0.64 KM |
Images
Nearby Streets
| Name | Average Price | Average Sqft | Distance |
|---|---|---|---|
| Fair Lawn Green | £ 0 | 0 | 0.00 KM |
| Ryhill Way | £ 625,000 | 0 | 0.00 KM |
| Tiptree Close | £ 0 | 0 | 0.00 KM |
| Willow Gardens | £ 0 | 0 | 0.00 KM |
| Thyme Close | £ 0 | 0 | 0.00 KM |
Nearby Transport
| Name | NLC | TLC | Distance |
|---|---|---|---|
| Earley | 5694 | EAR | 3.33 KM |
| Reading | 3149 | RDG | 4.78 KM |
| Winnersh Triangle | 5698 | WTI | 5.95 KM |
| Reading West | 3160 | RDW | 6.07 KM |
| Winnersh | 5697 | WNS | 7.44 KM |
Nearby Listings
| Address | Price | Type | Score | Distance |
|---|---|---|---|---|
| South Reading, Berkshire, RG2 | £ 375,000 | BUY | 7 / 10 | 0.00 KM |
| Wavell Close, Shinfield, Reading | £ 150,000 | BUY | Unknown | 0.06 KM |
| Westlands Avenue, Reading, RG2 | £ 435,000 | BUY | Unknown | 0.07 KM |
| Westlands Avenue, Reading | £ 375,000 | BUY | 6 / 10 | 0.08 KM |
| Westlands Avenue, Reading | £ 350,000 | BUY | 6 / 10 | 0.08 KM |
Nearby Properties
| Address | Price | Distance |
|---|---|---|
| 25 Wavell Close | £ 234,950 | 0.06 KM |
| 1 Wavell Close | £ 355,000 | 0.06 KM |
| 8 Wavell Close | £ 44,000 | 0.06 KM |
| 3 Wavell Close | £ 290,000 | 0.06 KM |
| 23 Wavell Close | £ 350,000 | 0.06 KM |