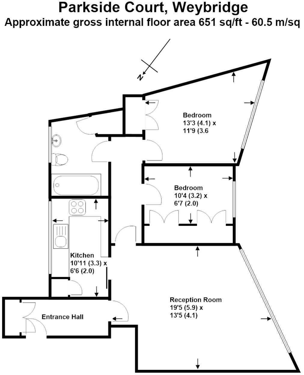
Parkside Court, Weybridge, Surrey, KT13
By Martin and Wheatley
£ 324,950
Reviews
3 out of 5 stars
Martin and Wheatley says ..
A WELL PRESENTED GROUND FLOOR TWO BEDROOM APARTMENT LOCATED IN THE HEART OF WEYBRIDGE TOWN CENTRE WITH PARKING AND GARAGE.
Property Oracle says ..
This property is a 2-bedroom apartment in Weybridge, Surrey. The apartment is situated in Parkside Court, a development with communal gardens. The property benefits from being close to Weybridge town centre and its amenities, as well as having good transport links via Weybridge train station. The apartment itself appears to be in reasonable condition, though the images show some areas that may benefit from modernisation. The price of £324,950 is lower than the average price for the area, but significantly higher than other nearby apartments on Parkside Court. Given the size of the apartment (651 sq ft) and its location, the price may be considered reasonable for a first-time buyer or investor. However, potential buyers should consider the need for any modernisation and factor this into their offer.
Therefore, we give this property 6 / 10. *Disclaimer: This is our option and does constitute a recommendation or financial advice. Do your own research. *
- Price
- 6
- Condition
- 7
- Location
- 8
- Land
- 5
- Bedrooms
- 2
- Bathrooms
- 1
- Sqft (est)
- 651.00
The heatmap indicates the level of crime in the area. The color of the heatmap indicates the crime severity and recency.
Metrics Year-on-Year
- Average area value
- 655,711.00 £Decreased by 21.44 %
- Est sale value
- 960,876.00 £Increased by 116.42 %
- Average area rental value
- 2,649.00 £/moIncreased by 26.38 %
- Est letting value
- 3,255.00 £/moIncreased by 400.00 %
- Est rental Yield
- 4.85 %Increased by 61.13 %
- Crime Rate
- 38.00 %Unchanged by 0.00 %
Agent Activity
Martin and Wheatley marked this listing as sold.
Martin and Wheatley created the listing.
Nearby Schools
| Name | Type | Ofsted | Distance |
|---|---|---|---|
| Weybridge Sure Start Children'S Centre | Children's Centre | 0.09 KM | |
| St Charles Borromeo Catholic Primary School, Weybridge | Academy Converter | 0.38 KM | |
| St George'S Junior School Weybridge | Other Independent School | 0.72 KM | |
| Manby Lodge Infant School | Community School | Good | 0.98 KM |
| St James Cofe Primary School | Voluntary Controlled School | Good | 1.09 KM |
Images
Nearby Streets
| Name | Average Price | Average Sqft | Distance |
|---|---|---|---|
| Churchfield Place | £ 0 | 0 | 0.00 KM |
| Elmgrove Mews | £ 1,090,000 | 0 | 0.00 KM |
| The Quadrant | £ 0 | 0 | 0.00 KM |
| Mount Pleasant | £ 779,950 | 0 | 0.00 KM |
| Weybridge Park | £ 4,900,000 | 0 | 0.00 KM |
Nearby Transport
| Name | NLC | TLC | Distance |
|---|---|---|---|
| Weybridge | 5577 | WYB | 1.12 KM |
| Addlestone | 5550 | ASN | 2.94 KM |
| Shepperton | 5605 | SHP | 3.04 KM |
| Byfleet And New Haw | 5689 | BFN | 3.57 KM |
| Walton-On-Thames | 5575 | WAL | 4.79 KM |
Nearby Listings
| Address | Price | Type | Score | Distance |
|---|---|---|---|---|
| Parkside Court, Weybridge, Surrey, KT13 | £ 324,950 | BUY | 6 / 10 | 0.00 KM |
| Baker Street, Weybridge | £ 299,950 | BUY | 5 / 10 | 0.02 KM |
| Gower Road, Weybridge | £ 550,000 | BUY | 8 / 10 | 0.02 KM |
| Baker Street, Weybridge, Surrey, KT13 | £ 800,000 | BUY | Unknown | 0.03 KM |
| Parkside Court, Weybridge, Surrey | £ 350,000 | BUY | 7 / 10 | 0.05 KM |
Nearby Properties
| Address | Price | Distance |
|---|---|---|
| 17a Baker Street | £ 500,000 | 0.03 KM |
| 20 Parkside Court | £ 337,000 | 0.04 KM |
| 15 Parkside Court | £ 346,000 | 0.04 KM |
| 21 Parkside Court | £ 329,000 | 0.04 KM |
| 11 Parkside Court | £ 342,500 | 0.04 KM |