Maggs & Allen says ..
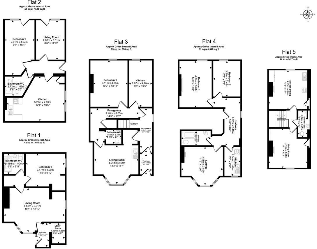
COMING SOON - SUBSTANTIAL BLOCK OF FLATS FOR AUCTION An attractive period semi-detached building arranged as five self contained flats, situated in a prime location on Newbridge Road in Bath. The flats are in need of refurbishment and offer and superb investment or break-up opportunity....
Property Oracle says ..
This is a block of apartments located on Newbridge Road, Bath. The property is a period property that requires extensive renovation. While the location is good, with proximity to schools, transport, and local amenities, the condition significantly detracts from its value. The property benefits from a garden, although it needs landscaping. Considering the condition and comparable property prices in the area, the asking price seems high.
Therefore, we give this property 5 / 10. *Disclaimer: This is our option and does constitute a recommendation or financial advice. Do your own research. *
- Price
- 5
- Condition
- 3
- Location
- 7
- Land
- 6
- Bedrooms
- 0
- Bathrooms
- 0
- Sqft (est)
- 2,397.23
The heatmap indicates the level of crime in the area. The color of the heatmap indicates the crime severity and recency.
Metrics Year-on-Year
- Average area value
- 318,211.00 £Decreased by 21.80 %
- Est sale value
- 676,018.86 £Decreased by 21.45 %
- Average area rental value
- 2,110.00 £/moIncreased by 60.46 %
- Est letting value
- 2,397.23 £/moUnchanged by 0.00 %
- Est rental Yield
- 7.96 %Increased by 105.15 %
- Crime Rate
- 6.00 %Unchanged by 0.00 %
Agent Activity
Maggs & Allen created the listing.
Nearby Schools
| Name | Type | Ofsted | Distance |
|---|---|---|---|
| Newbridge Primary School | Community School | Good | 0.79 KM |
| Oldfield Park Infant School | Academy Converter | Good | 1.19 KM |
| Oldfield Park Junior School | Academy Converter | Good | 1.29 KM |
| St Mary'S Catholic Primary School | Voluntary Aided School | Good | 1.35 KM |
| Weston Children'S Centre | Children's Centre | 1.35 KM |
Images
Nearby Streets
| Name | Average Price | Average Sqft | Distance |
|---|---|---|---|
| Windsor Court | £ 338,333 | 0 | 0.00 KM |
| Rosslyn Close | £ 0 | 0 | 0.00 KM |
| Mill Lane | £ 195,000 | 0 | 0.00 KM |
| Oakfield Close | £ 0 | 0 | 0.00 KM |
| Rackfield Place | £ 0 | 0 | 0.00 KM |
Nearby Transport
| Name | NLC | TLC | Distance |
|---|---|---|---|
| Oldfield Park | 3219 | OLF | 0.96 KM |
| Bath Spa | 3271 | BTH | 3.46 KM |
Nearby Listings
| Address | Price | Type | Score | Distance |
|---|---|---|---|---|
| Newbridge Road, Bath | £ 825,000 | BUY | 5 / 10 | 0.00 KM |
| Ashley Avenue, Bath | £ 550,000 | BUY | 5 / 10 | 0.07 KM |
| Newbridge Road, Bath, Somerset, BA1 | £ 325,000 | BUY | 6 / 10 | 0.07 KM |
| Ashley Avenue, Bath, Somerset, BA1 | £ 425,000 | BUY | 6 / 10 | 0.09 KM |
| Station Road, Lower Weston, BA1 | £ 500,000 | BUY | 5 / 10 | 0.10 KM |
Nearby Properties
| Address | Price | Distance |
|---|---|---|
| 23 Newbridge Road | £ 580,000 | 0.00 KM |
| 31 Newbridge Road | £ 675,000 | 0.00 KM |
| 9 Newbridge Road | £ 277,500 | 0.00 KM |
| 29 Newbridge Road | £ 310,000 | 0.01 KM |
| 25 Newbridge Road | £ 470,000 | 0.01 KM |