Lovelle says ..
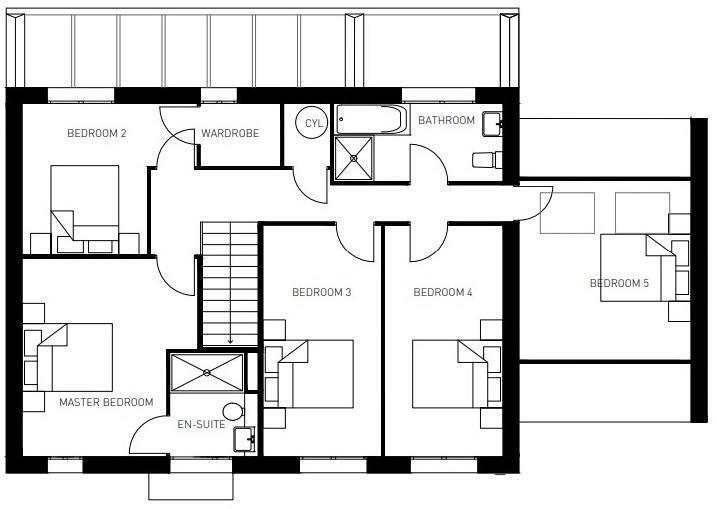
We are very excited to bring you this stunning contemporary home which forms part of a new and exclusive development 'The Riverbank' just off Eastfield Road, Louth. This five bedroom executive home is built to a high specification by local builders Linia Developments with the added benef...
Property Oracle says ..
Therefore, we give this property 7 / 10. *Disclaimer: This is our option and does constitute a recommendation or financial advice. Do your own research. *
- Price
- 6
- Condition
- 9
- Location
- 7
- Land
- 7
- Bedrooms
- 5
- Bathrooms
- 4
The heatmap indicates the level of crime in the area. The color of the heatmap indicates the crime severity and recency.
Metrics Year-on-Year
- Average area value
- 446,826.00 £Increased by 0.22 %
- Average area rental value
- 1,514.00 £/moDecreased by 8.57 %
- Est rental Yield
- 4.07 %Decreased by 8.74 %
- Crime Rate
- 2.00 %Unchanged by 0.00 %
from 445,846.00 £
from 1,656.00 £/mo
from 4.46 %
from 2.00 %
Agent Activity
Lovelle created the listing.
Nearby Schools
| Name | Type | Ofsted | Distance |
|---|---|---|---|
| Lacey Gardens Junior Academy | Academy Converter | 0.95 KM | |
| Louth And Holton-Le-Clay Children'S Centre | Children's Centre | 1.00 KM | |
| Eastfield Infants And Nursery Academy | Academy Converter | 1.09 KM | |
| St Bernard'S School | Academy Special Converter | Good | 1.09 KM |
| Louth Academy | Academy Sponsor Led | 1.58 KM |
Images
Nearby Streets
| Name | Average Price | Average Sqft | Distance |
|---|---|---|---|
| Kings Court | £ 0 | 0 | 0.00 KM |
| Walnut Close | £ 314,390 | 0 | 0.00 KM |
| Juniper Road | £ 0 | 0 | 0.00 KM |
| St Helens Drive | £ 53,250 | 0 | 0.00 KM |
| Alvingham Road | £ 375,000 | 0 | 0.00 KM |
Nearby Listings
| Address | Price | Type | Score | Distance |
|---|---|---|---|---|
| The Riverbank, Louth, LN11 | £ 499,950 | BUY | 7 / 10 | 0.00 KM |
| Eastfield Road, Louth, LN11 | £ 165,000 | BUY | 6 / 10 | 0.00 KM |
| Eastfield Road, Louth, LN11 | £ 239,995 | BUY | 7 / 10 | 0.03 KM |
| Eastfield Road, Louth, LN11 7AR | £ 235,000 | BUY | Unknown | 0.05 KM |
| The Riverbank, Off Eastfield Road, Louth, LN11 | £ 275,000 | BUY | 6 / 10 | 0.05 KM |
Nearby Properties
| Address | Price | Distance |
|---|---|---|
| 193 Eastfield Road | £ 197,000 | 0.00 KM |
| 205 Eastfield Road | £ 175,000 | 0.00 KM |
| 183 Eastfield Road | £ 70,000 | 0.00 KM |
| 169 Eastfield Road | £ 157,000 | 0.00 KM |
| 201 Eastfield Road | £ 182,000 | 0.00 KM |