SE
Bury St. Edmunds, Suffolk, IP28
By Sell My Group
£ 139,995
Reviews
3 out of 5 stars
Sell My Group says ..
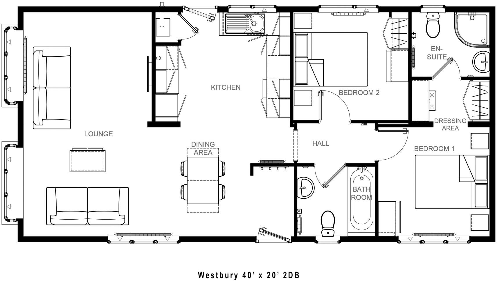
BRAND NEW Park Home (40'x20') | Residential Development | Fully furnished | Exclusive for the over 50s | Parking | Two double bedrooms | Fitted kitchen | Modern design | High specification | Gated entrance | Safe and Secure, Community Of LikeMinded People | Part Exchange Available
Property Oracle says ..
Therefore, we give this property 6 / 10. *Disclaimer: This is our option and does constitute a recommendation or financial advice. Do your own research. *
- Price
- 8
- Condition
- 9
- Location
- 6
- Land
- 3
- Bedrooms
- 2
- Bathrooms
- 2
- Sqft (est)
- 800.00
The heatmap indicates the level of crime in the area. The color of the heatmap indicates the crime severity and recency.
Metrics Year-on-Year
- Average area value
- 227,833.00 £Decreased by 31.54 %
- Est sale value
- 266,400.00 £Increased by 0.30 %
- Average area rental value
- 1,622.00 £/moIncreased by 15.61 %
- Est letting value
- 1,600.00 £/moIncreased by 100.00 %
- Est rental Yield
- 8.54 %Increased by 68.77 %
- Crime Rate
- 13.00 %Unchanged by 0.00 %
from 332,795.00 £
from 265,600.00 £
from 1,403.00 £/mo
from 800.00 £/mo
from 5.06 %
from 13.00 %
Agent Activity
Sell My Group created the listing.
Nearby Schools
| Name | Type | Ofsted | Distance |
|---|---|---|---|
| Beck Row Primary Academy | Academy Sponsor Led | Requires improvement | 1.43 KM |
| West Row Academy | Academy Sponsor Led | 3.39 KM | |
| On Track Education Centre (Mildenhall) | Other Independent Special School | Good | 3.41 KM |
| Great Heath Academy | Academy Sponsor Led | Good | 4.83 KM |
| St Mary'S Church Of England Academy | Academy Converter | Good | 5.00 KM |
Images
Nearby Streets
| Name | Average Price | Average Sqft | Distance |
|---|---|---|---|
| Beverley Close | £ 0 | 0 | 0.00 KM |
| Heather Court | £ 180,000 | 0 | 0.00 KM |
Nearby Transport
| Name | NLC | TLC | Distance |
|---|---|---|---|
| Shippea Hill | 7073 | SPP | 9.33 KM |
Nearby Listings
| Address | Price | Type | Score | Distance |
|---|---|---|---|---|
| Bury St. Edmunds, Suffolk, IP28 | £ 139,995 | BUY | 6 / 10 | 0.00 KM |
| Bury St. Edmunds, Suffolk, IP28 | £ 129,995 | BUY | 6 / 10 | 0.00 KM |
| Bury St. Edmunds, Suffolk, IP28 | £ 139,995 | BUY | 6 / 10 | 0.00 KM |
| Bury St. Edmunds, Suffolk, IP28 | £ 124,995 | BUY | 6 / 10 | 0.00 KM |
| Rookery Drove, Beck Row, Bury St. Edmunds, Suffolk, IP28 | £ 125,000 | BUY | 6 / 10 | 0.06 KM |
Nearby Properties
| Address | Price | Distance |
|---|---|---|
| 64 Linden Walk | £ 3,300,000 | 0.20 KM |
| 33 Linden Walk | £ 183,950 | 0.20 KM |
| 49 Linden Walk | £ 186,950 | 0.20 KM |
| 41 Linden Walk | £ 186,950 | 0.20 KM |
| 45 Linden Walk | £ 183,950 | 0.20 KM |