Lawson Rose says ..
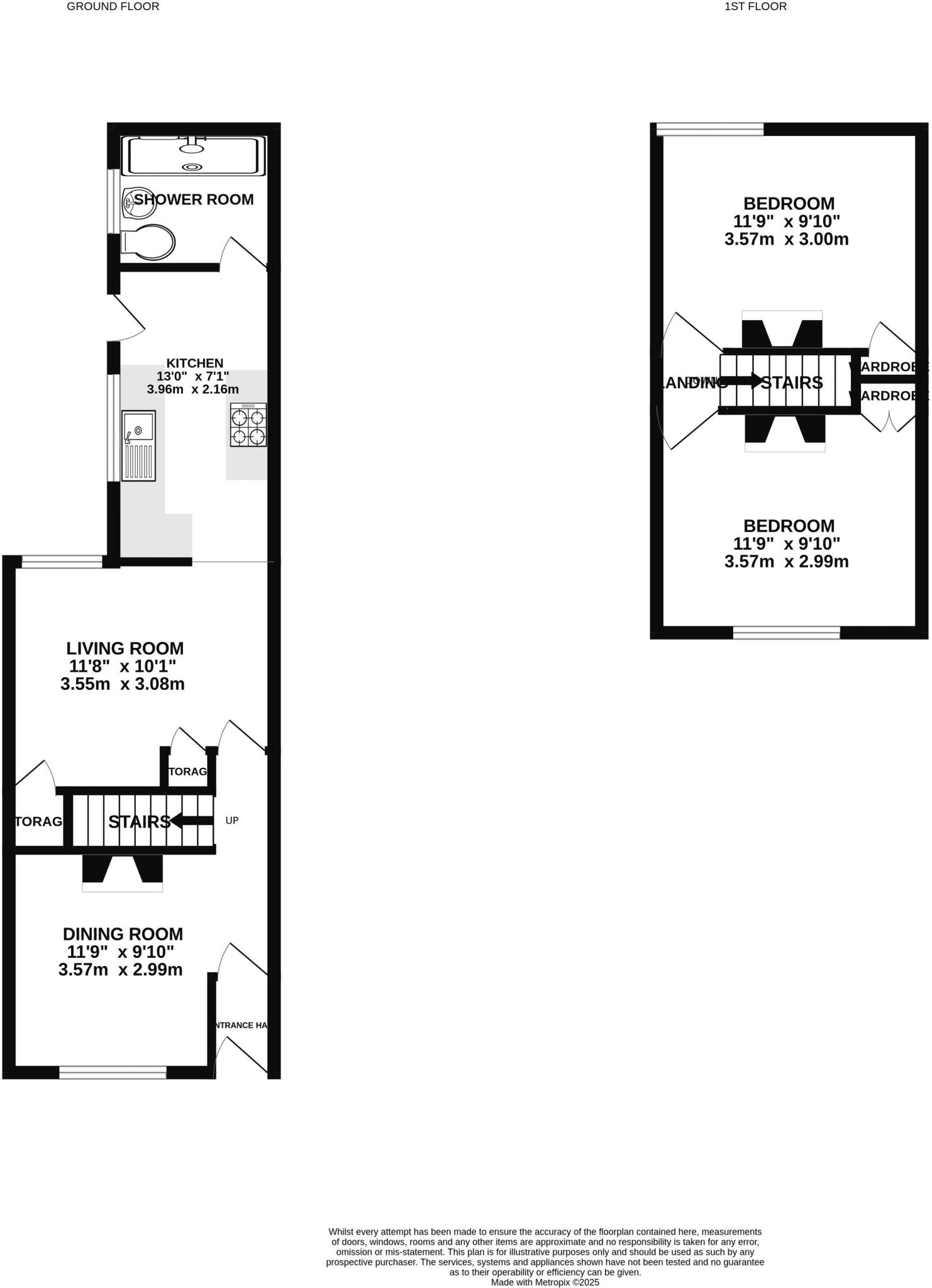
This charming two-bedroom terraced home in the heart of Southsea is full of character, retaining many of its original features while offering modern comfort and convenience. Offered to the market with no forward chain, this property on Londesborough Road presents an excellent opportunity for firs...
Property Oracle says ..
This is a two-bedroom terraced house in Central Southsea. The property is in a good location, close to local amenities, schools, and transport links. The property is in reasonable condition, but it could benefit from some modernisation. The property has a garden, which is a desirable feature. The property is listed at £227,500, which is below the average price for the area. Overall, this property represents a good opportunity for a first-time buyer or investor looking for a property in a popular location.
Therefore, we give this property 6 / 10. *Disclaimer: This is our option and does constitute a recommendation or financial advice. Do your own research. *
- Price
- 7
- Condition
- 6
- Location
- 7
- Land
- 5
- Bedrooms
- 2
- Bathrooms
- 1
- Sqft (est)
- 597.72
The heatmap indicates the level of crime in the area. The color of the heatmap indicates the crime severity and recency.
Metrics Year-on-Year
- Average area value
- 269,625.00 £Decreased by 6.52 %
- Est sale value
- 210,995.16 £Increased by 13.50 %
- Average area rental value
- 1,216.00 £/moDecreased by 16.14 %
- Est letting value
- 597.72 £/moUnchanged by 0.00 %
- Est rental Yield
- 5.41 %Decreased by 10.28 %
- Crime Rate
- 2.00 %Unchanged by 0.00 %
Agent Activity
Lawson Rose created the listing.
Nearby Schools
| Name | Type | Ofsted | Distance |
|---|---|---|---|
| Bramble Infant School And Nursery | Community School | Good | 0.22 KM |
| The Brambles Children'S Centre And Nursery School | Children's Centre Linked Site | 0.29 KM | |
| Devonshire Infant School | Community School | Good | 0.31 KM |
| Fernhurst Junior School | Community School | Good | 0.37 KM |
| Southsea And Brambles Children'S Centre | Children's Centre | 0.49 KM |
Images
Nearby Streets
| Name | Average Price | Average Sqft | Distance |
|---|---|---|---|
| Boulton Road | £ 0 | 0 | 0.00 KM |
| Beatrice Road | £ 270,000 | 0 | 0.00 KM |
| Fratton Way | £ 162,500 | 0 | 0.00 KM |
| Campbell Road | £ 0 | 0 | 0.00 KM |
| Proctor Lane | £ 0 | 0 | 0.00 KM |
Nearby Transport
| Name | NLC | TLC | Distance |
|---|---|---|---|
| Fratton | 5509 | FTN | 0.60 KM |
| Portsmouth And Southsea | 5537 | PMS | 2.20 KM |
| Portsmouth Harbour | 5540 | PMH | 3.97 KM |
| Hilsea | 5539 | HLS | 4.39 KM |
| Cosham | 5896 | CSA | 5.67 KM |
Nearby Listings
| Address | Price | Type | Score | Distance |
|---|---|---|---|---|
| Londesborough Road, Southsea | £ 245,000 | BUY | 6 / 10 | 0.00 KM |
| Londesborough Road, Southsea | £ 227,500 | BUY | 6 / 10 | 0.00 KM |
| Londesborough Road, Southsea, Hampshire, PO4 | £ 240,000 | BUY | Unknown | 0.01 KM |
| Londesborough Road, Southsea | £ 235,000 | BUY | 6 / 10 | 0.01 KM |
| Londesborough Road, Southsea | £ 230,000 | BUY | 6 / 10 | 0.03 KM |
Nearby Properties
| Address | Price | Distance |
|---|---|---|
| 46 Londesborough Road | £ 102,000 | 0.01 KM |
| 80 Londesborough Road | £ 68,500 | 0.01 KM |
| 34 Londesborough Road | £ 250,000 | 0.01 KM |
| 66 Londesborough Road | £ 239,250 | 0.01 KM |
| 56 Londesborough Road | £ 139,995 | 0.01 KM |