Stephensons says ..
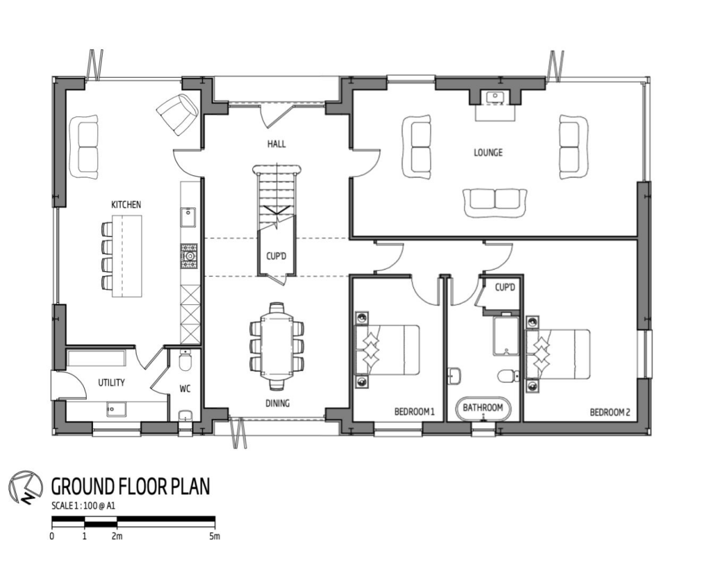
An exciting residential development opportunity in an idyllic rural setting less than 7 miles north of York to convert a modern portal framed agricultural barn with a 200 sq m/2,160 sq ft footprint into a substantial new 263 sq m/2,830 sq ft dwelling set in around 2 acres. For sale by way of Info...
Property Oracle says ..
Therefore, we give this property 6 / 10. *Disclaimer: This is our option and does constitute a recommendation or financial advice. Do your own research. *
- Price
- 3
- Condition
- 7
- Location
- 7
- Land
- 9
- Bedrooms
- 0
- Bathrooms
- 0
- Sqft (est)
- 114.72
The heatmap indicates the level of crime in the area. The color of the heatmap indicates the crime severity and recency.
Metrics Year-on-Year
- Average area value
- 235,000.00 £Increased by 13.70 %
- Est sale value
- 33,154.08 £Increased by 30.18 %
- Average area rental value
- 1,100.00 £/moDecreased by 0.99 %
- Est letting value
- 114.72 £/moUnchanged by 0.00 %
- Est rental Yield
- 5.62 %Decreased by 12.87 %
- Crime Rate
- 0.00 %
from 206,683.00 £
from 25,467.84 £
from 1,111.00 £/mo
from 114.72 £/mo
from 6.45 %
from 0.00 %
Agent Activity
Stephensons created the listing.
Nearby Schools
| Name | Type | Ofsted | Distance |
|---|---|---|---|
| Sutton On The Forest Church Of England Voluntary Controlled Primary School | Voluntary Controlled School | Good | 1.61 KM |
| Stillington Primary School | Community School | Requires improvement | 2.27 KM |
| Huby Cofe Primary School | Voluntary Controlled School | Good | 2.42 KM |
| Crayke Church Of England Voluntary Controlled Primary School | Voluntary Controlled School | Outstanding | 5.50 KM |
| Wigginton Primary School | Community School | Good | 8.27 KM |
Images
Nearby Streets
| Name | Average Price | Average Sqft | Distance |
|---|---|---|---|
| Oxclose Lane | £ 0 | 0 | 0.00 KM |
| Coombs Close | £ 0 | 0 | 0.00 KM |
| Maple Croft | £ 0 | 0 | 0.00 KM |
Nearby Listings
| Address | Price | Type | Score | Distance |
|---|---|---|---|---|
| Sutton On The Forest, York | £ 350,000 | BUY | 6 / 10 | 0.00 KM |
| Land At Stillington, York, North Yorkshire, YO61 | £ 105,000 | BUY | Unknown | 0.68 KM |
| Skates Lane, Sutton-on-the-Forest | £ 385,000 | BUY | Unknown | 1.15 KM |
| Coombes Close, Sutton-On-The-Forest, York | £ 285,000 | BUY | 7 / 10 | 1.15 KM |
| Stillington Road, Sutton-on-the-Forest, York | £ 799,000 | BUY | 7 / 10 | 1.29 KM |
Nearby Properties
| Address | Price | Distance |
|---|---|---|
| 13 Coombes Close | £ 198,000 | 1.14 KM |
| 1 Grey Close | £ 324,000 | 1.18 KM |
| 4 Grey Close | £ 410,000 | 1.18 KM |
| 5 Grey Close | £ 290,000 | 1.18 KM |
| 6 Grey Close | £ 240,000 | 1.18 KM |