Hunters says ..
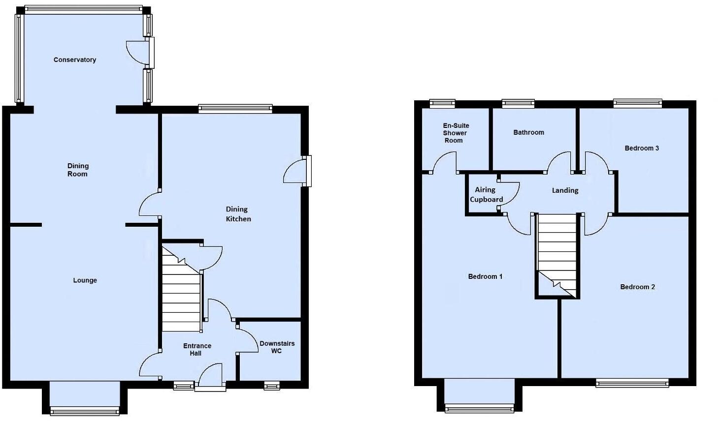
**IMMACULATE DETACHED HOUSE IN A GREAT LOCATION WITH 3 DOUBLE BEDROOMS & NO ONWARD CHAIN** Immaculate Detached House comprising Entrance Hallway, Lounge, Dining Room, Kitchen, Orangery, Downstairs WC, Landing, 3 Double Bedrooms, Ensuite Shower Room to Master, 3 Piece Bathroom, Enclosed West Facin...
Property Oracle says ..
The property is a detached house located on Moss Way, Blackpool. It features 3 bedrooms, 2 bathrooms, and a well-maintained garden. The interior appears to be in good condition with a modern kitchen and bathrooms.
Therefore, we give this property 7 / 10. *Disclaimer: This is our option and does constitute a recommendation or financial advice. Do your own research. *
- Price
- 9
- Condition
- 8
- Location
- 7
- Land
- 7
- Bedrooms
- 3
- Bathrooms
- 2
- Sqft (est)
- 1,267.00
The heatmap indicates the level of crime in the area. The color of the heatmap indicates the crime severity and recency.
Metrics Year-on-Year
- Average area value
- 1,230,783.00 £Decreased by 28.62 %
- Est sale value
- 1,463,385.00 £Decreased by 15.07 %
- Average area rental value
- 2,056.00 £/moDecreased by 2.00 %
- Est letting value
- 1,267.00 £/moUnchanged by 0.00 %
- Est rental Yield
- 2.00 %Increased by 36.99 %
- Crime Rate
- 2.00 %Unchanged by 0.00 %
Agent Activity
Hunters created the listing.
Nearby Schools
| Name | Type | Ofsted | Distance |
|---|---|---|---|
| Marton Primary Academy And Nursery | Academy Sponsor Led | Good | 0.34 KM |
| Our Lady Of The Assumption Catholic Primary School | Voluntary Aided School | Good | 0.64 KM |
| Highfield Leadership Academy | Academy Sponsor Led | Requires improvement | 0.87 KM |
| Hawes Side Academy | Academy Converter | Good | 1.13 KM |
| St George'S School A Church Of England Academy | Academy Converter | Good | 1.19 KM |
Images
Nearby Streets
| Name | Average Price | Average Sqft | Distance |
|---|---|---|---|
| Millfield Road | £ 0 | 0 | 0.00 KM |
| Regal Avenue | £ 110,000 | 0 | 0.00 KM |
| Laundry Road North | £ 0 | 0 | 0.00 KM |
| The Nurseries | £ 0 | 0 | 0.00 KM |
| Jasmine Close | £ 0 | 0 | 0.00 KM |
Nearby Transport
| Name | NLC | TLC | Distance |
|---|---|---|---|
| Blackpool South | 2740 | BPS | 3.20 KM |
| Squires Gate | 2666 | SQU | 3.46 KM |
| Blackpool Pleasure Beach | 2738 | BPB | 3.58 KM |
| St Annes-On-The-Sea | 2672 | SAS | 4.13 KM |
| Blackpool North | 2739 | BPN | 4.74 KM |
Nearby Listings
| Address | Price | Type | Score | Distance |
|---|---|---|---|---|
| Moss Way, Blackpool, Lancashire, FY4 | £ 254,995 | BUY | 7 / 10 | 0.00 KM |
| Moss Way, Blackpool | £ 254,995 | BUY | 7 / 10 | 0.00 KM |
| Moss Way, Blackpool | £ 250,000 | BUY | 7 / 10 | 0.00 KM |
| Avondale Crescent, Blackpool, FY4 | £ 375,000 | BUY | 7 / 10 | 0.11 KM |
| Blossom Avenue, Blackpool | £ 275,000 | BUY | 6 / 10 | 0.15 KM |
Nearby Properties
| Address | Price | Distance |
|---|---|---|
| 6 Moss Way | £ 260,000 | 0.02 KM |
| 8 Moss Way | £ 335,000 | 0.02 KM |
| 4 Moss Way | £ 263,500 | 0.02 KM |
| 2 Moss Way | £ 189,950 | 0.02 KM |
| 3 Moss Way | £ 190,000 | 0.02 KM |