Lower Haysden Lane, Tonbridge, TN11 9BD
By Bracketts Chartered Surveyors
£ 525,000
Reviews
3 out of 5 stars
Bracketts Chartered Surveyors says ..
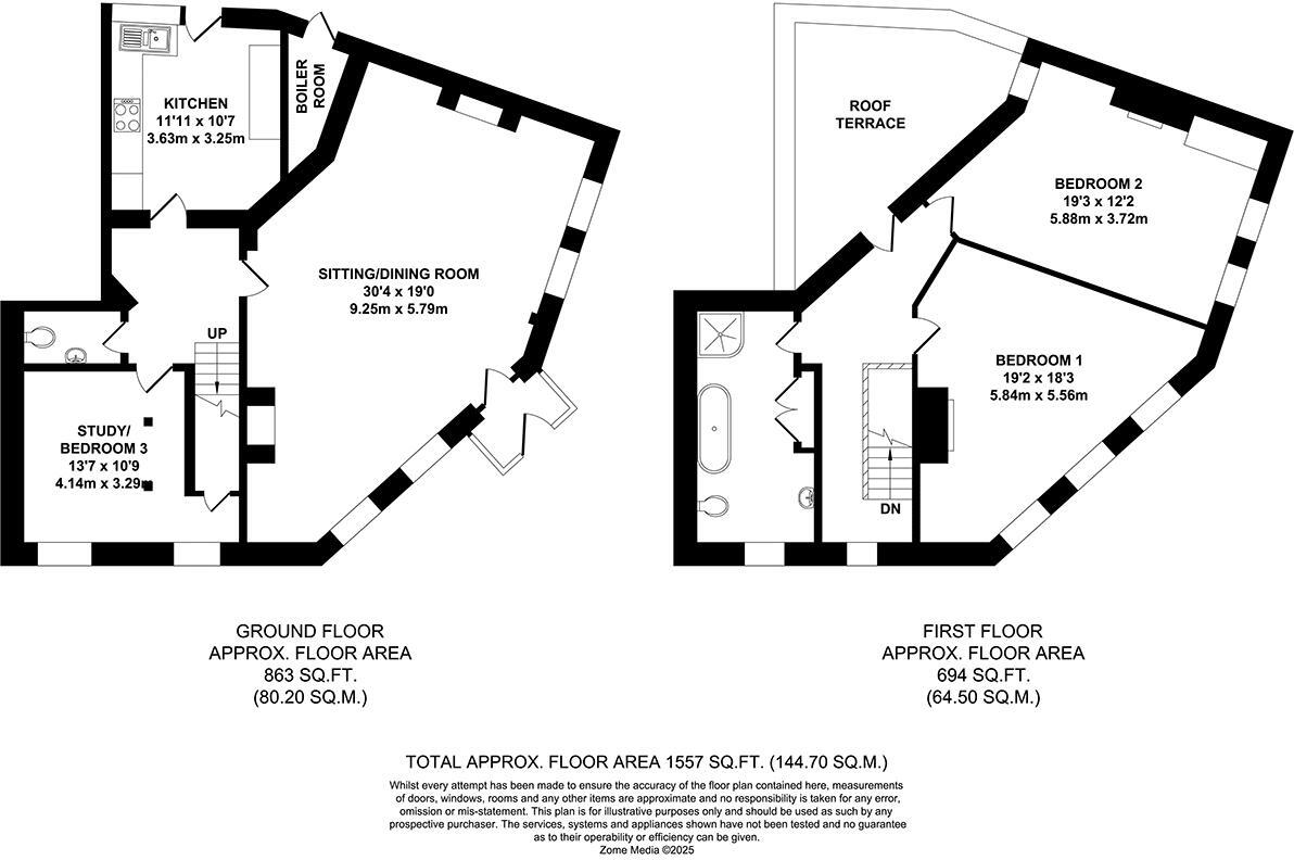
Bracketts are delighted to offer for sale this beautifully presented two-bedroom attached house situated in a picturesque, semi-rural setting on Lower Haysden Lane. Formally forming part of the Royal Oak Public House, which was converted back in 2010, the property boasts a wealth of period featur...
Property Oracle says ..
This semi-detached property on Lower Haysden Lane in Tonbridge presents a blend of traditional charm and modern living. The interior features exposed beams and brick fireplaces, adding character to the living spaces. The property includes a garden and patio, offering outdoor space. While generally well-maintained, some areas could benefit from further updates. Located in a semi-rural setting, it provides a balance between countryside living and accessibility to local amenities and transport links. The nearby schools and transport links make it a suitable location for families and commuters.
Therefore, we give this property 6 / 10. *Disclaimer: This is our option and does constitute a recommendation or financial advice. Do your own research. *
- Price
- 6
- Condition
- 7
- Location
- 7
- Land
- 6
- Bedrooms
- 2
- Bathrooms
- 1
- Sqft (est)
- 1,428.11
The heatmap indicates the level of crime in the area. The color of the heatmap indicates the crime severity and recency.
Metrics Year-on-Year
- Average area value
- 454,908.00 £Decreased by 1.21 %
- Est sale value
- 939,696.38 £Increased by 34.29 %
- Average area rental value
- 1,150.00 £/moDecreased by 30.30 %
- Est letting value
- 1,428.11 £/moUnchanged by 0.00 %
- Est rental Yield
- 3.03 %Decreased by 29.53 %
- Crime Rate
- 22.00 %Unchanged by 0.00 %
Agent Activity
Bracketts Chartered Surveyors created the listing.
Nearby Schools
| Name | Type | Ofsted | Distance |
|---|---|---|---|
| Nexus Foundation Special School | Foundation Special School | Requires improvement | 0.71 KM |
| The Hayesbrook School | Academy Converter | Good | 1.76 KM |
| Sussex Road Community Primary School | Community School | Good | 2.06 KM |
| West Kent And Ashford College | Further Education | Requires improvement | 2.12 KM |
| The Judd School | Voluntary Aided School | Outstanding | 2.18 KM |
Images
Nearby Streets
| Name | Average Price | Average Sqft | Distance |
|---|---|---|---|
| Weald Way MU53 | £ 0 | 0 | 0.00 KM |
| Tonbridge Bypass | £ 0 | 0 | 0.00 KM |
| Lockington Close | £ 525,000 | 0 | 0.00 KM |
| Scott Road | £ 0 | 0 | 0.00 KM |
| Clare Avenue | £ 0 | 0 | 0.00 KM |
Nearby Transport
| Name | NLC | TLC | Distance |
|---|---|---|---|
| Tonbridge | 5229 | TON | 2.94 KM |
| Hildenborough | 5236 | HLB | 3.45 KM |
| Leigh (Kent) | 5294 | LIH | 3.81 KM |
| High Brooms | 5235 | HIB | 5.66 KM |
| Tunbridge Wells | 5230 | TBW | 6.79 KM |
Nearby Listings
| Address | Price | Type | Score | Distance |
|---|---|---|---|---|
| Lower Haysden Lane, Tonbridge, TN11 9BD | £ 525,000 | BUY | 6 / 10 | 0.00 KM |
| Lower Haysden Lane, Tonbridge | £ 369,000 | BUY | 7 / 10 | 0.00 KM |
| Lower Haysden Lane, Tonbridge, Kent, TN11 | £ 475,000 | BUY | 6 / 10 | 0.01 KM |
| Lower Haysden Lane, Tonbridge, Kent, TN11 | £ 409,950 | BUY | 7 / 10 | 0.01 KM |
| Lower Haysden Lane, Tonbridge, TN11 | £ 360,000 | BUY | 7 / 10 | 0.01 KM |
Nearby Properties
| Address | Price | Distance |
|---|---|---|
| Brook Cottage | £ 630,000 | 0.01 KM |
| Rowan Cottage | £ 348,000 | 0.01 KM |
| Acorn House | £ 475,000 | 0.01 KM |
| Acorn Cottage | £ 350,000 | 0.01 KM |
| Manor Farm House | £ 670,000 | 0.21 KM |