Duke Street, Burton-on-Trent, DE14
By Newton Fallowell
£ 170,000
Reviews
3 out of 5 stars
Newton Fallowell says ..
Newton Fallowell are please to offer this completely renovated three bedroom traditional mid terraced home located in an excellent position close to the town. The home has been finished to a high standard & features new central heating, double glazing and rewiring. The internal walls have been...
Property Oracle says ..
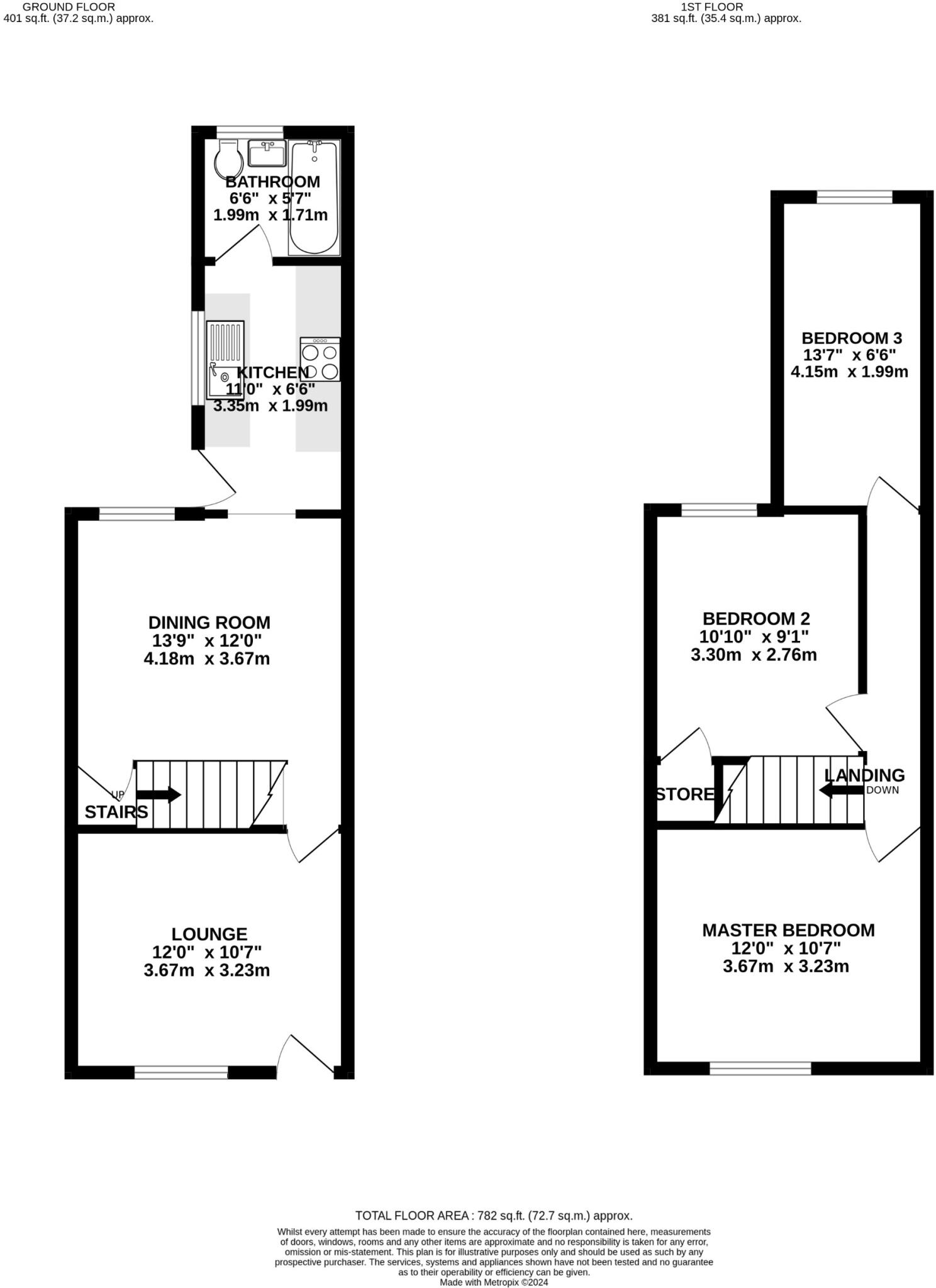
This three-bedroom terraced house on Duke Street, Burton-on-Trent, presents as a well-renovated property in a reasonably convenient location. The interior photos display a modern, updated aesthetic with new flooring, kitchen, and bathroom fixtures. This suggests a property suitable for a family or young professionals seeking a move-in ready home. The close proximity to highly rated primary schools (Christ Church and Anglesey), along with the train station, enhance the property’s appeal to families and commuters. The small rear garden provides a limited outdoor space. While the property is listed at £170,000, the lack of detailed square footage data for comparative properties in the immediate vicinity restricts precise evaluation of the price relative to market value. However, considering the nearby street average property prices and the renovation, this price seems competitive for the Burton-on-Trent market, assuming the listed 782.54 sqft figure accurately reflects the usable living space.
Therefore, we give this property 6 / 10. *Disclaimer: This is our option and does constitute a recommendation or financial advice. Do your own research. *
- Price
- 7
- Condition
- 8
- Location
- 7
- Land
- 3
- Bedrooms
- 3
- Bathrooms
- 1
- Sqft (est)
- 782.54
The heatmap indicates the level of crime in the area. The color of the heatmap indicates the crime severity and recency.
Metrics Year-on-Year
- Average area value
- 160,167.00 £Decreased by 35.09 %
- Est sale value
- 158,073.08 £Decreased by 10.62 %
- Average area rental value
- 934.00 £/moIncreased by 22.89 %
- Est letting value
- 782.54 £/mo
- Est rental Yield
- 7.00 %Increased by 89.19 %
- Crime Rate
- 3.00 %Unchanged by 0.00 %
Agent Activity
Newton Fallowell created the listing.
Nearby Schools
| Name | Type | Ofsted | Distance |
|---|---|---|---|
| Christ Church Primary School | Community School | Good | 0.20 KM |
| Anglesey Primary Academy | Academy Sponsor Led | Good | 0.70 KM |
| Queen Street Children'S Centre | Children's Centre Linked Site | 0.72 KM | |
| East Staffordshire Children'S Centre | Children's Centre | 0.73 KM | |
| Victoria Community School | Community School | Good | 0.95 KM |
Images
Nearby Streets
| Name | Average Price | Average Sqft | Distance |
|---|---|---|---|
| Dale Street | £ 200,000 | 0 | 0.00 KM |
| Park Mews | £ 0 | 0 | 0.00 KM |
| Borough Road | £ 0 | 0 | 0.00 KM |
| Marston Close | £ 0 | 0 | 0.00 KM |
| Sheffield Street | £ 0 | 0 | 0.00 KM |
Nearby Transport
| Name | NLC | TLC | Distance |
|---|---|---|---|
| Burton-On-Trent | 1658 | BUT | 0.37 KM |
| Tutbury And Hatton | 1783 | TUT | 8.20 KM |
Nearby Listings
| Address | Price | Type | Score | Distance |
|---|---|---|---|---|
| Duke Street, Burton-on-Trent, DE14 | £ 170,000 | BUY | 6 / 10 | 0.00 KM |
| Finings Court, Burton-On-Trent | £ 109,000 | BUY | 6 / 10 | 0.09 KM |
| 10 Catherine Court, Moor Street, Burton-On-Trent DE14 3TJ | £ 85,000 | BUY | Unknown | 0.09 KM |
| Grants Yard, Burton-On-Trent, Staffordshire, DE14 1BW | £ 170,000 | BUY | 6 / 10 | 0.09 KM |
| Moor Street, Burton-on-Trent, Staffordshire, DE14 | £ 110,000 | BUY | 5 / 10 | 0.10 KM |
Nearby Properties
| Address | Price | Distance |
|---|---|---|
| 25 Duke Street | £ 85,000 | 0.00 KM |
| 6 Duke Street | £ 121,000 | 0.00 KM |
| 22 Duke Street | £ 115,000 | 0.00 KM |
| 13 Duke Street | £ 77,500 | 0.00 KM |
| 19 Duke Street | £ 118,000 | 0.00 KM |