Masons says ..
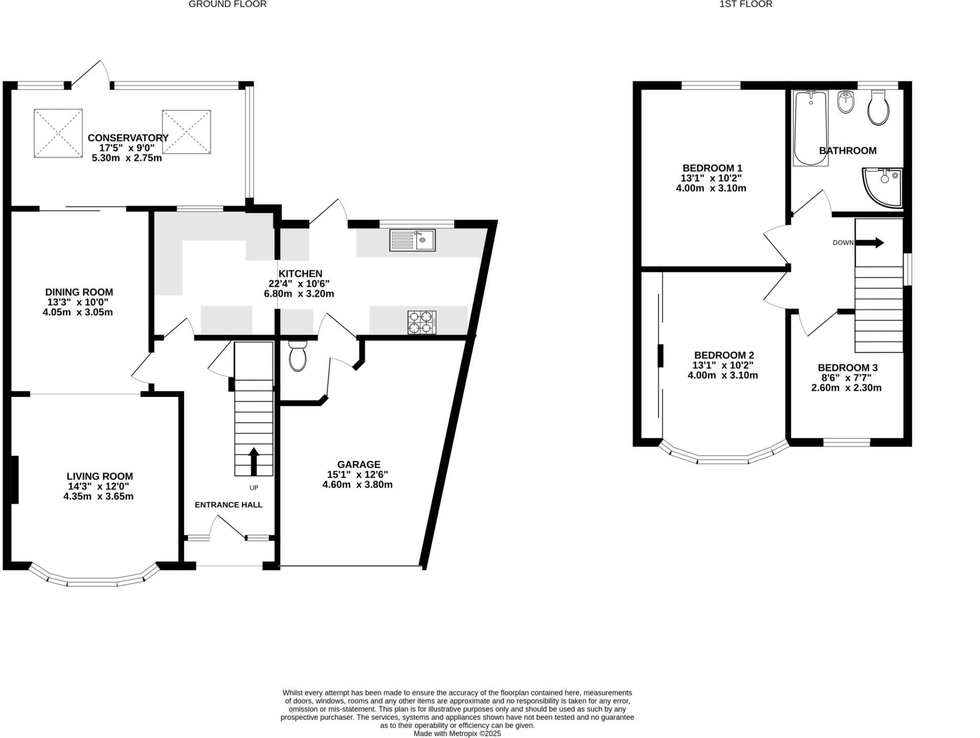
Masons are proud to offer to the market this extended & well presented three bedroom semi-detached family house, located in a sought-after Caversham location, within walking distance to Caversham & Reading centres, along with Reading mainline station.
Property Oracle says ..
Therefore, we give this property 7 / 10. *Disclaimer: This is our option and does constitute a recommendation or financial advice. Do your own research. *
- Price
- 6
- Condition
- 7
- Location
- 8
- Land
- 8
- Bedrooms
- 3
- Bathrooms
- 1
The heatmap indicates the level of crime in the area. The color of the heatmap indicates the crime severity and recency.
Metrics Year-on-Year
- Average area value
- 557,608.00 £Increased by 11.45 %
- Average area rental value
- 2,301.00 £/moIncreased by 13.07 %
- Est rental Yield
- 4.95 %Increased by 1.43 %
- Crime Rate
- 4.00 %Unchanged by 0.00 %
from 500,322.00 £
from 2,035.00 £/mo
from 4.88 %
from 4.00 %
Agent Activity
Masons created the listing.
Nearby Schools
| Name | Type | Ofsted | Distance |
|---|---|---|---|
| Highdown School And Sixth Form Centre | Academy Converter | Good | 0.53 KM |
| Caversham Primary School | Community School | Outstanding | 0.71 KM |
| Hemdean House School | Other Independent School | 0.96 KM | |
| Emmer Green Primary School | Community School | Outstanding | 1.22 KM |
| Caversham Preparatory School | Other Independent School | 1.36 KM |
Images
Nearby Streets
| Name | Average Price | Average Sqft | Distance |
|---|---|---|---|
| Briar Close | £ 0 | 0 | 0.00 KM |
| Cherwell Road | £ 0 | 0 | 0.00 KM |
| Knighton Close | £ 0 | 0 | 0.00 KM |
| Old Barn Close | £ 0 | 0 | 0.00 KM |
| Sheepwalk | £ 0 | 0 | 0.00 KM |
Nearby Transport
| Name | NLC | TLC | Distance |
|---|---|---|---|
| Reading | 3149 | RDG | 2.31 KM |
| Reading West | 3160 | RDW | 2.83 KM |
| Tilehurst | 3154 | TLH | 5.67 KM |
| Earley | 5694 | EAR | 7.92 KM |
Nearby Listings
| Address | Price | Type | Score | Distance |
|---|---|---|---|---|
| Woodberry Close, Caversham | £ 695,000 | BUY | 7 / 10 | 0.00 KM |
| Woodberry Close, Caversham | £ 640,000 | BUY | 7 / 10 | 0.00 KM |
| Sheridan Avenue, Caversham, Reading | £ 365,000 | BUY | 6 / 10 | 0.10 KM |
| Valley Close, Caversham | £ 680,000 | BUY | 7 / 10 | 0.11 KM |
| Wrenfield Drive, Caversham, Reading | £ 268,500 | BUY | 6 / 10 | 0.11 KM |
Nearby Properties
| Address | Price | Distance |
|---|---|---|
| 2 Woodberry Close | £ 440,000 | 0.01 KM |
| 4 Woodberry Close | £ 348,000 | 0.01 KM |
| 376 Hemdean Road | £ 163,000 | 0.07 KM |
| 372 Hemdean Road | £ 164,950 | 0.07 KM |
| 378 Hemdean Road | £ 216,000 | 0.07 KM |