Links Estate Agents says ..
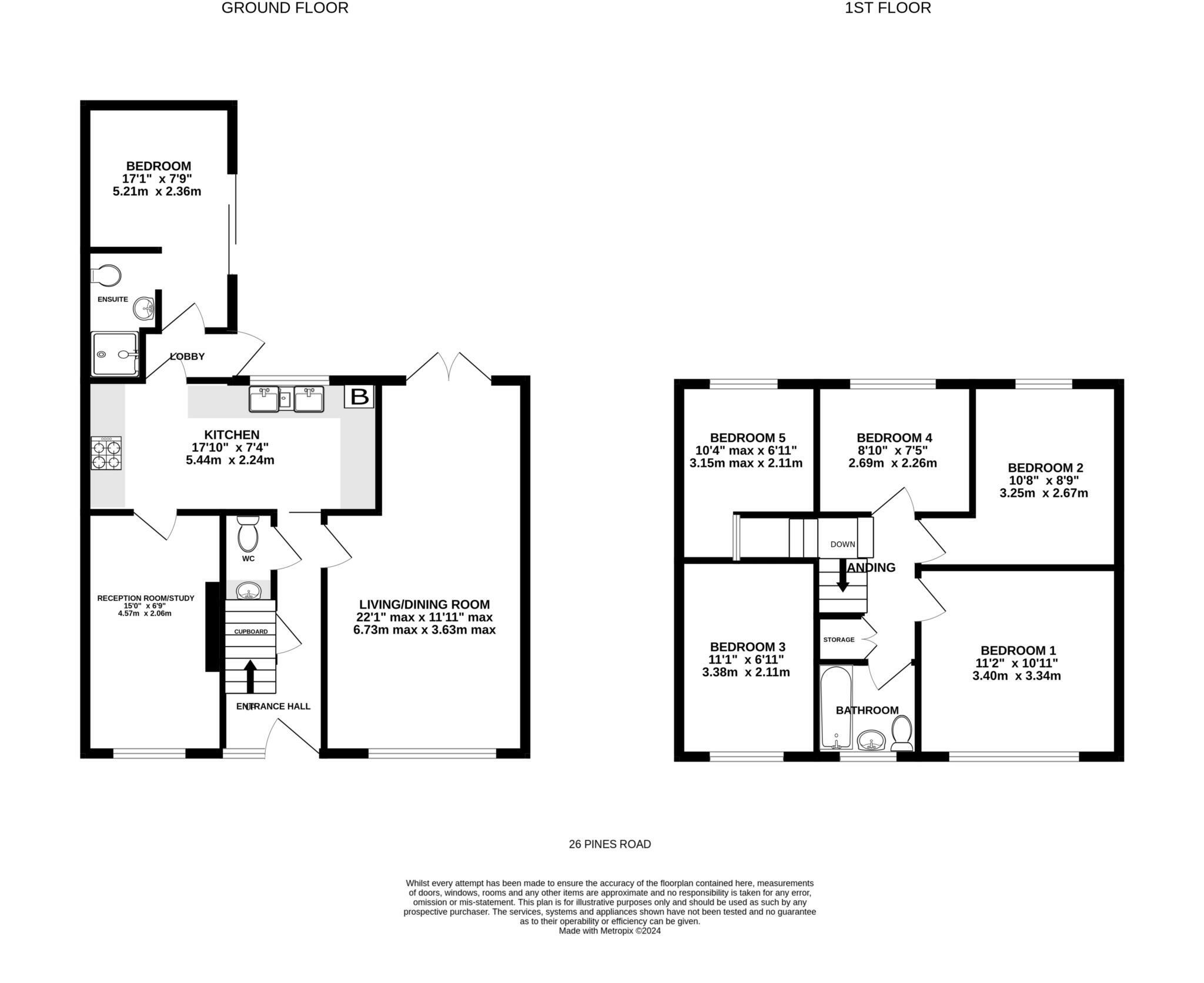
Located in a popular residential location that is within easy walking distance of a primary school, shops, doctor surgery and on a main bus route is this extended five/six bedroom semi detached property that could suit a large family
Property Oracle says ..
This six-bedroom semi-detached house in Exmouth, Devon, presents an interesting opportunity for a large family or those seeking potential for rental income. The property’s key strength is its location, which offers convenient access to local amenities including a primary school and bus routes. The interior appears largely in good condition, but the kitchen and bathrooms could likely benefit from modernizing. The property includes a patio and garden which offers some outdoor space, though not exceptionally large.
The list price appears reasonably priced compared to limited other local listings; however, the absence of precise square footage data for many comparable properties makes a definitive assessment challenging. Potential buyers should undertake thorough checks and inspections, paying particular attention to the potential costs of kitchen and bathroom updates. The six bedrooms present a good opportunity, especially for families or those considering multi-generational living or renting out rooms. Overall, this is a solid family home in a practical location, but buyers should factor in potential renovation costs into their budget.
Therefore, we give this property 6 / 10. *Disclaimer: This is our option and does constitute a recommendation or financial advice. Do your own research. *
- Price
- 7
- Condition
- 6
- Location
- 7
- Land
- 4
- Bedrooms
- 6
- Bathrooms
- 2
- Sqft (est)
- 1,158.95
The heatmap indicates the level of crime in the area. The color of the heatmap indicates the crime severity and recency.
Metrics Year-on-Year
- Average area value
- 412,759.00 £Increased by 3.22 %
- Est sale value
- 462,421.05 £Increased by 2.31 %
- Average area rental value
- 1,432.00 £/moDecreased by 13.89 %
- Est letting value
- 1,158.95 £/moUnchanged by 0.00 %
- Est rental Yield
- 4.16 %Decreased by 16.63 %
- Crime Rate
- 10.00 %Unchanged by 0.00 %
Agent Activity
Links Estate Agents created the listing.
Nearby Schools
| Name | Type | Ofsted | Distance |
|---|---|---|---|
| Brixington Primary Academy | Academy Sponsor Led | Requires improvement | 0.22 KM |
| Bassetts Farm Primary School | Foundation School | Good | 1.18 KM |
| Withycombe Raleigh Church Of England Primary School | Voluntary Controlled School | Good | 1.25 KM |
| Marpool Primary School | Foundation School | Good | 1.28 KM |
| Exmouth & District Children'S Centre | Children's Centre | 1.37 KM |
Images
Nearby Streets
| Name | Average Price | Average Sqft | Distance |
|---|---|---|---|
| Chestnut Close | £ 385,000 | 0 | 0.00 KM |
| Goldcrest Road | £ 400,000 | 0 | 0.00 KM |
| Fieldfare Crescent | £ 369,950 | 0 | 0.00 KM |
| Gorse Lane | £ 835,000 | 0 | 0.00 KM |
| Linden Close | £ 289,950 | 0 | 0.00 KM |
Nearby Transport
| Name | NLC | TLC | Distance |
|---|---|---|---|
| Exmouth | 5756 | EXM | 3.10 KM |
| Lympstone Village | 5761 | LYM | 4.18 KM |
| Lympstone Commando | 5762 | LYC | 5.72 KM |
| Starcross | 3413 | SCS | 6.09 KM |
| Exton | 5760 | EXN | 6.35 KM |
Nearby Listings
| Address | Price | Type | Score | Distance |
|---|---|---|---|---|
| Pines Road, Exmouth | £ 389,950 | BUY | 6 / 10 | 0.00 KM |
| Pines Road, Exmouth, EX8 | £ 320,000 | BUY | 6 / 10 | 0.02 KM |
| Maple Drive, Exmouth, EX8 5NR | £ 385,000 | BUY | 7 / 10 | 0.06 KM |
| Lime Grove, Exmouth, EX8 | £ 250,000 | BUY | 7 / 10 | 0.07 KM |
| Cedar Close, Exmouth, Devon, EX8 | £ 350,000 | BUY | 7 / 10 | 0.08 KM |
Nearby Properties
| Address | Price | Distance |
|---|---|---|
| 31 Pines Road | £ 302,000 | 0.01 KM |
| 22 Pines Road | £ 315,000 | 0.01 KM |
| 23 Pines Road | £ 262,500 | 0.01 KM |
| 25 Pines Road | £ 185,000 | 0.02 KM |
| 30 Pines Road | £ 257,500 | 0.02 KM |